|
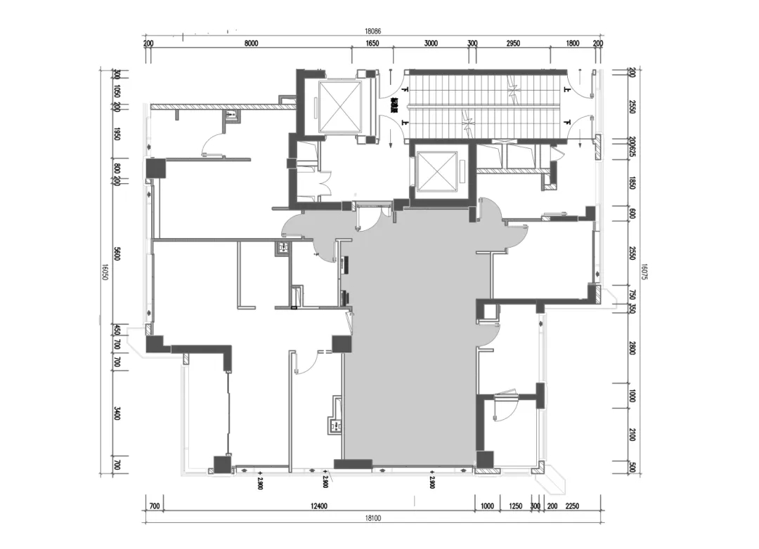
原始结构 The original structure
这是一个240㎡,三室两厅的户型,精装修的项目,一家三代居住,原始户型东西向的客餐厅,通透性比较差,采光也也一般,业主55岁左右,性格热情开朗,平时也有阅读和收藏的习惯,喜欢这种三代同堂的家庭氛围,希望整个空间能通透一点,显示大平层的气度。 空间改造 Space transformation
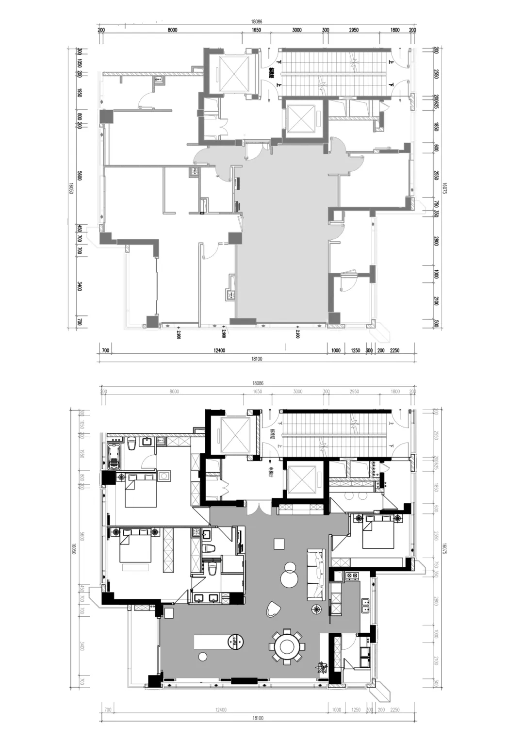
根据业主的生活习惯以及需求,在户型改造上面,我们拆除了客厅卫生间,主卧书房等,让东南向完全打开,开放一定的尺度,让整体的光线穿透进来。原有卫生间的管道设计个造型,与书房联通,这样空间就显得格外大气。 空间效果 Space effects
沉稳的调子 松弛的氛围 每一处细节 散发着温馨的气息 色彩是轻奢的细腻表达,我们选用柔和的色彩和高级的材质,让整个空间散发着温馨也不失奢华的氛围,胡桃木复古浓郁的色彩,代表着生活品质的烟火气,内敛低调的黑与白色的点缀,沉稳的大气,松弛的温暖,光线穿越格栅的纱帘,洒下朦胧的剪影,感知着整个空间,家的温馨与气息。
宛若现代诗篇 轻启空间之韵 轻抚眼帘 送给自己一份生活的低语和雅致 空间以高品质的材质选择,原木、金属与织物等自然元素的结合,不仅提升了空间的层次感,也传递出一种优雅的生活态度。 木材的温润,带着岁月的痕迹,每一道纹理都是生命成长的故事;金属的坚毅,承载着智慧的语言,那线条的质感传递着坚韧的气息;棉麻的柔软,如同轻柔的微风,抚摸间是对肌肤的呵护。
虚与实 整与多 轻与奢的交界 诠释张弛有度的高级美 弧形的立柱造型在空间中展现出虚实相间的效果,面向客厅的一侧采用实体圆弧,流畅优雅;而面向书房的一面则以金属立柱和层板装饰,展现出独特的现代感。内部的立板被镜面包裹,反射出周围的空间,使视线变得更加开阔,营造出一种无尽延伸的视觉体验。
沉淀内心 放慢脚步 享受至简、至诚的纯粹 与客厅相连的书房区域,简洁的线条勾勒出独特的质感与氛围;一幅抽象画悬挂于墙面,与空间巧妙呼应,艺术的几何造型和色彩搭配为整个环境注入了生动的线条感与张力,整个空间添加了线条感与艺术的张力,沉浸式的时刻,让我们卸下所有烦恼与琐碎,与家对话,与自我对话。 设计服务咨询 Design Service Consultation 设计主创:范超 新媒体账号:苏州远上建筑设计 联系电话:17300590939 电子邮箱:543479318@qq.com
|
精华推荐
换一换



发表评论0