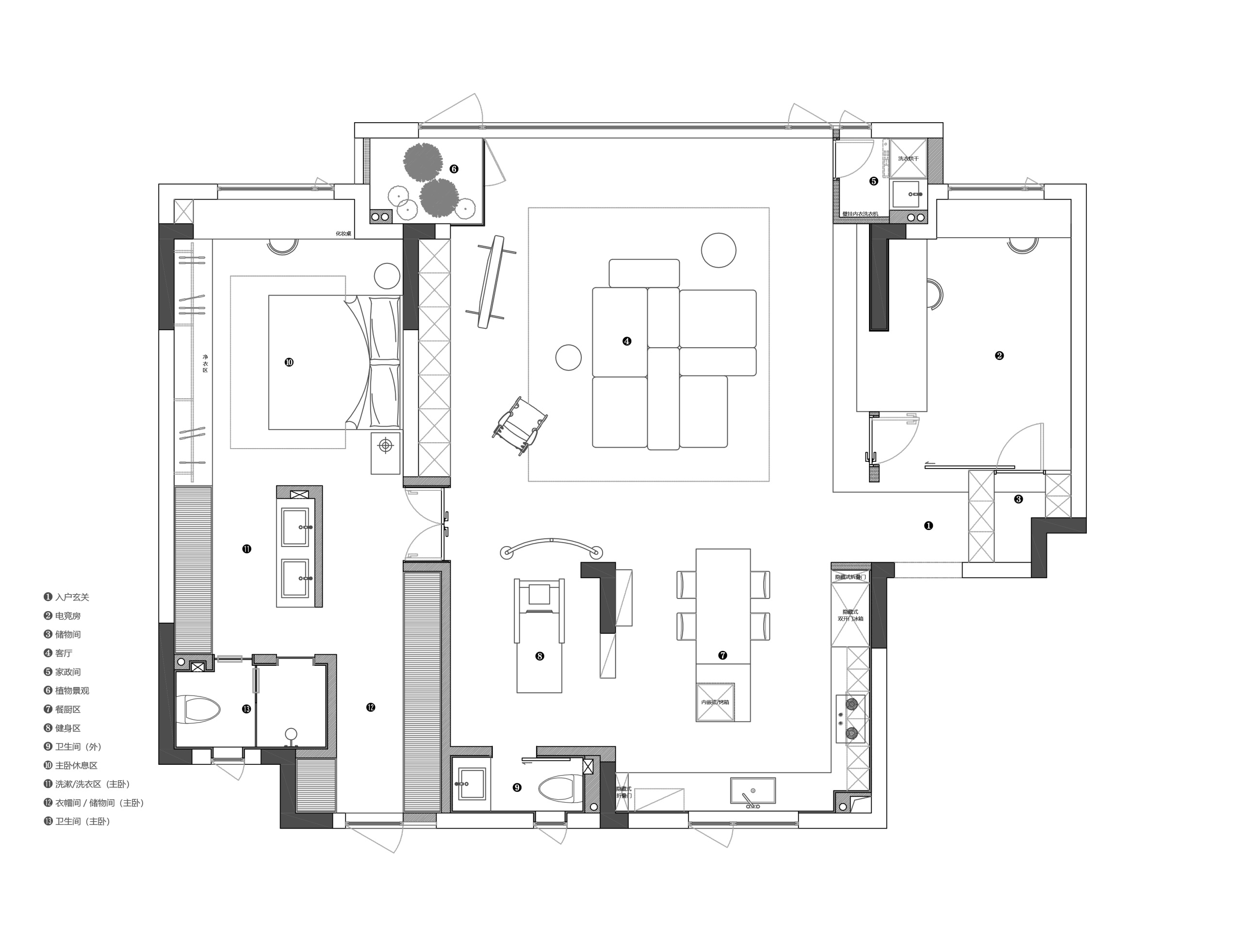
本项目位于江阴,是给一对00后小两口打造的婚房。 我们和业主一起,把 140㎡的空间,做成了一个能装下所有生活热爱的「无界容器」 没有繁复的装饰,只有原木的温润、混凝土的粗粝,还有满室的自然光,把日子过成了最舒服的样子。
拿到原始户型的时候,我们发现原本的空间被太多封闭的隔墙分割得零碎又局促,采光被挡住,公共区域的互动感也很差。 业主的需求很简单:想要一个通透的、一家人能随时互动的空间,同时还要能有工作加游戏的书房空间、双方的健身需求,还有两个人想要的小花园角落。 于是我们做了最大胆的改动:拆掉了所有非承重的隔墙,把客、餐、厨还有休闲区完全打通,做成了一个开放式的无界公共空间。
整个空间一下子就亮了起来,南向的整面落地窗的光,能毫无遮挡地洒进房间的每一个角落。不管是在厨房做饭,还是在客厅沙发上休息,或是在餐厅办公,一家人都能随时聊天互动,不会被墙隔开。
我们还做了两个很灵活的 “可移动” 设计,让这个家的场景适配性拉满:第一个就是可移动的电视墙。 这个电视不是固定在墙上的,而是带了可移动的底座,平时可以推到客厅的位置,一家人窝在沙发上看电影;朋友来聚会的时候,还能推到餐厅那边,变成投影幕一样的存在,边吃饭边看球赛,完全适配不同的生活场景。 第二个就是可移动的木质屏风。双方需要一个独立的健身区,我们没有把它做成封闭的房间,而是用了这个可移动的屏风:健身的时候,把屏风移过来,就隔出了一个独立的小空间,不会被打扰;平时不用的时候,就把屏风移开,整个空间又恢复了完全的通透,一点都不浪费空间,灵活又好用。 入户玄关的位置我们通过地面材质的分割划分区域。 业主希望玄关有遮挡但又能透光,我们便在书房区域设一移门,这扇移门一门两用, 磨砂玻璃的材质也解决了上面的问题。 粗粝与温柔 是材质的浪漫碰撞 很多人说清水混凝土太冰冷,但是在这个家里,我们把它和原木做了碰撞,反而揉出了最舒服的质感。 我们没有把原始的混凝土梁柱包起来,反而保留了它最原始的样子 —— 那些浇筑留下的螺栓孔、水泥的肌理,都是建筑最真实的痕迹,带着一点工业风的粗粝感。 我们还选了模块式的豆腐块沙发,没有固定的靠背,业主可以根据自己的需求随便组合:有时候是躺平看剧的大沙发,有时候是朋友聚会的围坐区,怎么舒服怎么来。 南向的整面落地窗,把整个城市的采光都引了进来,整个客厅的空间,在阳光里都变得温柔了起来。罗马帘的氛围也是有非常好的氛围,阳光透过帘子洒进来的时候,会在地上投下斑驳的光影,随着时间慢慢移动,整个家都有了呼吸感。 客厅的整面柜体里,我们还做了隐藏式的房间门,用和柜体同材质的百叶设计,关上的时候完全和柜体融为一体,根本看不出门的痕迹,让整个墙面干净又整齐。 藏起来的功能区 把所有爱好都装起来 这个书房做了一个盒子的形式,搭配巧妙的可推拉磨砂移门设计,让这个空间可藏可露。 书房的内部我们也做了细致的设计,整面的原木书桌,还有靠窗的小操作台,业主可以在这里办公、打游戏,都很舒服。 从移门的缝隙看出去,整个客厅的样子都清晰可见,通透又舒服。不管是休息还是工作,都能随时感受到家人的陪伴。 打开移门的时候,整个空间的连通感更强,电竞房和公共区域完全融为一体。 白色的柜门后有个小储物间把所有的设备、杂物都藏了起来,干净又整齐,哪怕是小小的空间,也不会显得杂乱。 角落的小景观 把自然搬进家 在公共区域的角落,我们留了一个小小的室内景观区,业主可以在这里养养花、种种草,哪怕是下雨天,也能在这里和自然亲近。 小小的一方天地,用玻璃隔断和公共区域分开,既不会让浇水的水渍弄乱客厅,又能把绿植的生机带进整个空间,给整个家添了满满的生机,也成了业主夫妻俩放松的小角落。 餐厅的温柔角落 餐厅的区域,我们选了一个野口勇的纸灯,暖黄的光洒在木桌上,吃饭的时候,氛围感一下子就出来了。 厨房的区域我们也做了统一的原木设计,整面的橱柜把所有的厨具、杂物都藏了起来,干净又整齐,和整个空间的风格完全统一。 平时一家人在这里吃饭,或者朋友来小聚,这个小小的空间,总能装下所有的烟火气。 主卧 是只属于两个人的私密角落 主卧我们用了黑与木的碰撞,中间的黑色水泥墙,刚好把休息区和洗漱区分隔开来,一下子就把私密的氛围感拉满了,进去之后,就能瞬间从公共区域的热闹里抽离,安静下来。 卧室的窗边我们做了一整排的原木梳妆台,刚好嵌在窗下,业主可以在这里化妆,阳光洒进来的时候,光线刚好,化妆的时候不用额外打光都很清楚。 卧室的床我们选了最简单的款式,没有多余的装饰,小床头柜刚好放下手机和台灯,简单又舒服。 卫生间的区域我们也做了统一的黑与木的设计。双台盆的设计,两个人早上不用抢,洗漱都很方便。 从洗漱区看进去,就是整个卧室,通透又舒服,没有多余的隔断,整个空间的动线很流畅。 项目名称:澄静 项目类型:住宅设计 项目地址:江苏 江阴 完成时间:2026年1月 空间设计:東亼设计事务所 主案设计:成森 建筑面积:140㎡ 项目摄影:生辉 成森 设计师 |
精华推荐
换一换


发表评论0