|
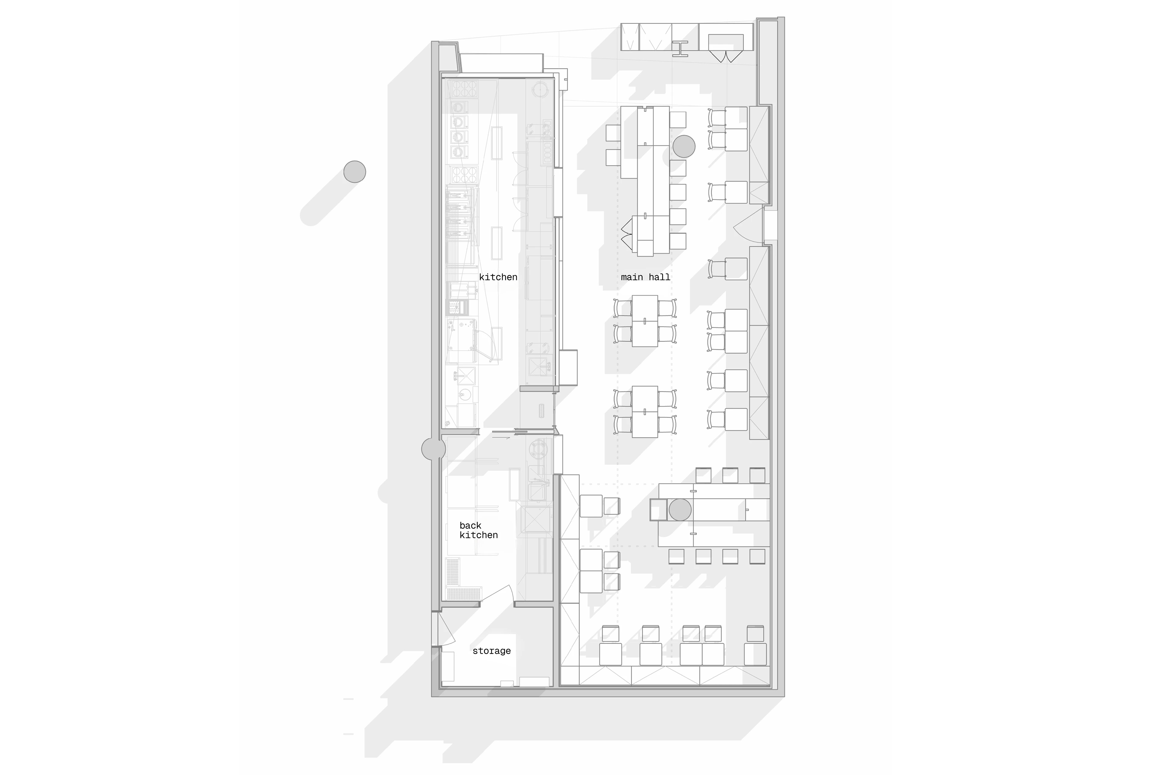
Daikan | RAMEN eatery DFC, Dubai, the UAE | 2025 | 165 sq.m + 65 terrace Team: Egor Bogomolov, Valerii Egorov, Valeria Dzhigil, Dmitry Ivanov, Ekaterina Tarasova, Polina Dyachenko Photographer: Sergey Nekrasov
我们在传统的日本木工系统中发现了它:具有特征性的凹槽和榫卯结构,这些在项目中成为了一个大规模的构建套件,不仅定义了家具,还定义了整个室内逻辑。 在入口处,一个关键的木质连接件悬挂在取件站上方,为室内定下节奏,并延续到天花板的构成,将立面与室内视觉上连接起来。 另一个概念层是街头小吃的感觉。它通过昏暗的灯光、品牌的导航标志和镜子天花板板有意扭曲光反射——就像水坑中摇曳着街灯的倒影。
这个连接原则定义了布局并在组合中清晰可读:元素似乎“卡”在一起,在建筑尺度上形成了空间积木。 空间的几何形状被设计成正交的,由胶合板和不锈钢的搭配构成。 材料的质感和严格的形状强化了品牌的 bold 性格,而现场的特征——混凝土柱、结构梁——并未被隐藏而是被整合到视觉结构中。 |
精华推荐
换一换


发表评论0