|
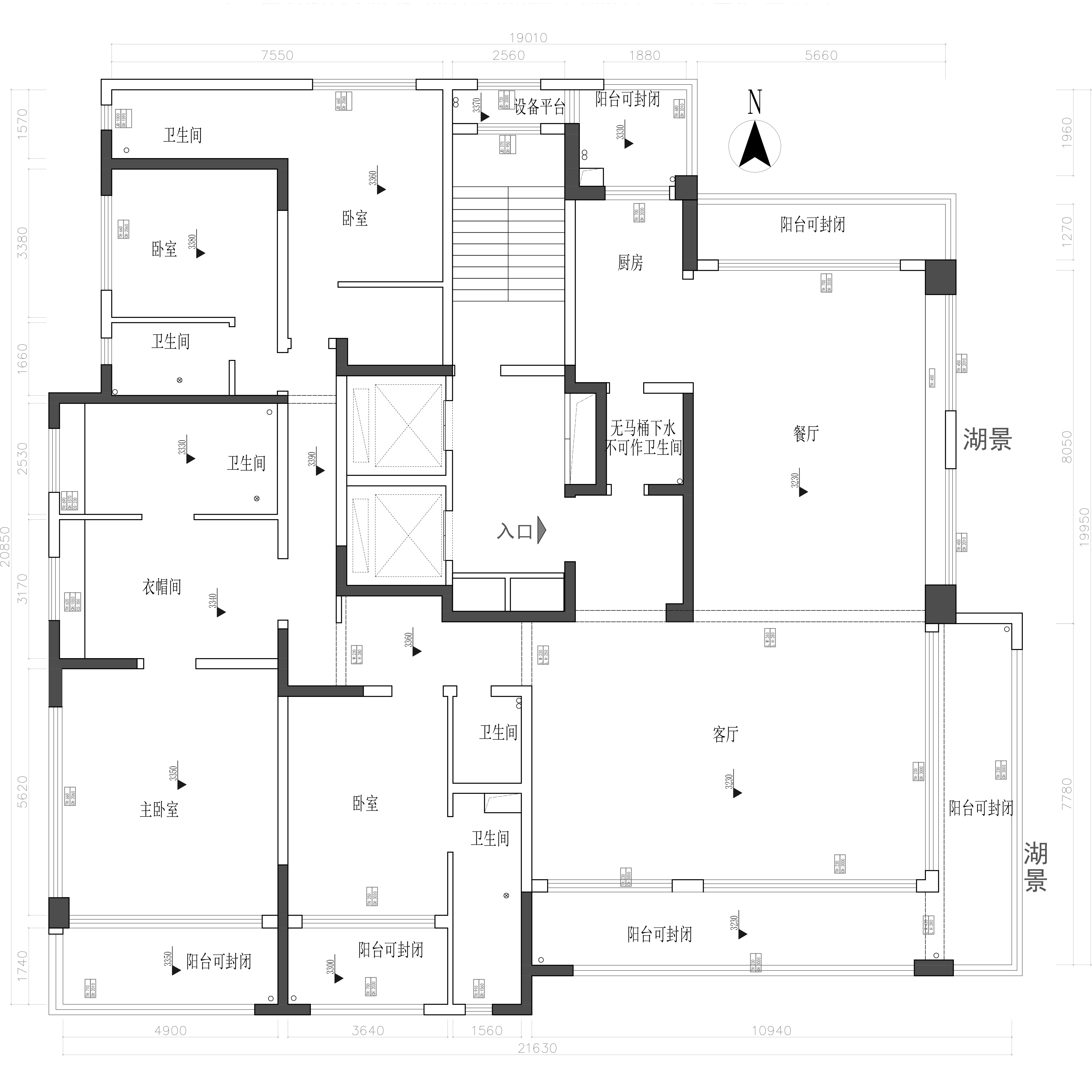
“关注i Go,每周学习一个户型改造小技巧” 项目属性/大平层/毛坯 项目套内面积/400㎡ 执行设计/i Go空间设计事务所 原始户型 Party A's demand.
甲方需求- Demand of Party A. 1、业主80年两孩,女儿十五岁需要一个浴缸,男孩十岁 2、厨房配套要齐全,封闭式,需要大吧台,圆桌 3、主人房需要大衣帽间 大浴缸 4、需要一个独立的书房,收藏了一些自己的收藏品 5、偶尔会有朋友来聚会 6、独立的家政空间 7、比较讲究风水,现在的西侧走廊过长,并且没有采光 优化方案 Optimization scheme.
细节展示 Detail display
细节展示 Detail display
细节展示 Detail display
细节展示 Detail display
i Go 业务合作 -官方抖音:iGo户型优化(关注抖音 看最新案例) -官方抖音:i Go户型优化 -官方小红书:i Go户型优化 微信公众号:iGo户型优化 *本文以及方案均为i Go原创 禁止转载 分享至其他平台 |
精华推荐
换一换


发表评论0