|
光、材质与感官引导的空间实践
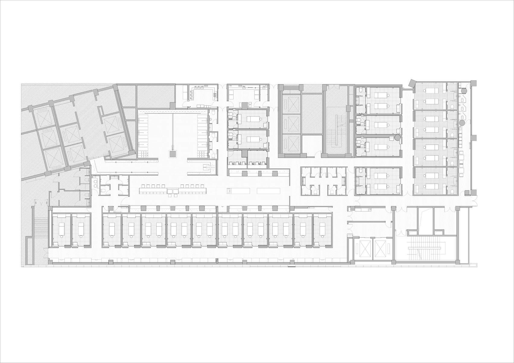
▲平面布置图 本项目位于北京三里屯核心商圈,是品牌旗舰级高端SPA空间。设计以“疗愈”为核心命题,通过光线、材质和动线的渐进变化, 引导使用者逐步进入松弛和沉浸状态,目标不是营造表层的“安静场所”,而是构建一个多感官参与、节奏清晰的空间体验系统。
▲空间入口
空间布局以一条纵向通道串联各功能分区。尽端设小型水景,水声成为首个情绪信号。
▲串联空间的纵向通道 左侧发光展示墙陈列产品,右侧为接待吧台和登记区,展示区与休息区结合,客人可停留、试用、茶歇。 ▲ 展示区&休息区 ▲ 展示墙 ▲视线相互串联的接待区与休息区 此处灯光较亮,强调对产品的感知。 ▲休息区的发光装置墙 ▲发光装置墙细部 ▲装置墙拆解图 沿通道深入,空间逐渐收敛,光线降低,最终通过仅脚部打亮的暗廊进入核心SPA区,使心理和生理节奏自然放慢。 ▲闻香区 核心区采用独立动线确保私密性,不同顾客流线分隔,避免干扰。房间紧凑清晰,按护理流程布置换鞋、更衣、淋浴和理疗单元,便于顺畅切换。 ▲SPA客房走廊 门帘、电动移门及纱帘用于分隔视线与控制光线,既保证私密,又避免封闭感。 ▲SPA客房入口 ▲SPA客房内部 收纳、灯具、镜面和置物台细部均精细设计,便利且具有仪感。 ▲SPA客房内部细节 ▲SPA客房换鞋凳 ▲SPA客房更衣柜 光是主要设计的手段。公共区光线明亮,便于展示与交流;过渡空间通过局部装置墙和下照灯放 缓视觉节奏;理疗区降低色温, 采用低位与点状照明形成暗背景,突出操作面,强化放松与专注。 整体光环境通过亮暗梯度和空间收放,引导情绪从外部的警觉过渡到内部沉浸。 ▲空间轴测图 材质强调冷暖平衡。水泥基底提供连续背景,铜点缀形成高光节点,木材用于家具与隔断,缓和空间气质,石材用于水景和闻香台,带来自然的触感。 整体克制中性,避免过度的装饰刺激感官干扰体验。 ▲空间内的材质对比 ▲空间内的材质对比 水景与香气系统是感官设计的另一组成部分。循环水景成为稳定声源,帮助快速放松。 闻香台结合品牌精油,随时段调整香气:晨间清新,午后沉稳,晚间促进放松。视觉、听觉、嗅觉叠加,使疗愈体验贯穿整个停留过程。 ▲空间内的材质对比 本案通过精确的空间控制,将“疗愈”从概念转化为具体体验,为高端 SPA 提供可验证、可复制的设计路径。 项目名称:愈舍 YUSPA 北京三里屯店 项目位置:北京 建筑面积:1200平 设计单位:F.O.G.建筑事务所 设计团队:张弛、张智睿、唐墨、谢嶷、熊爱杰、邹德静、詹迪、郑宇 灯光顾问:立本社、张旭 摄影:Wen Studio、 言隅 F.O.G.建筑事务所成⽴于 2019 年,⽬前设有上海、重庆两处⼯作室。 我们关注结构、材料、光 、⼟地等现实条件,审视、思考空间背后的运作逻辑。我们相信好的空间富有情绪,可以穿透 时间的屏障,与⼈产⽣连接。 |
精华推荐
换一换


发表评论0