|
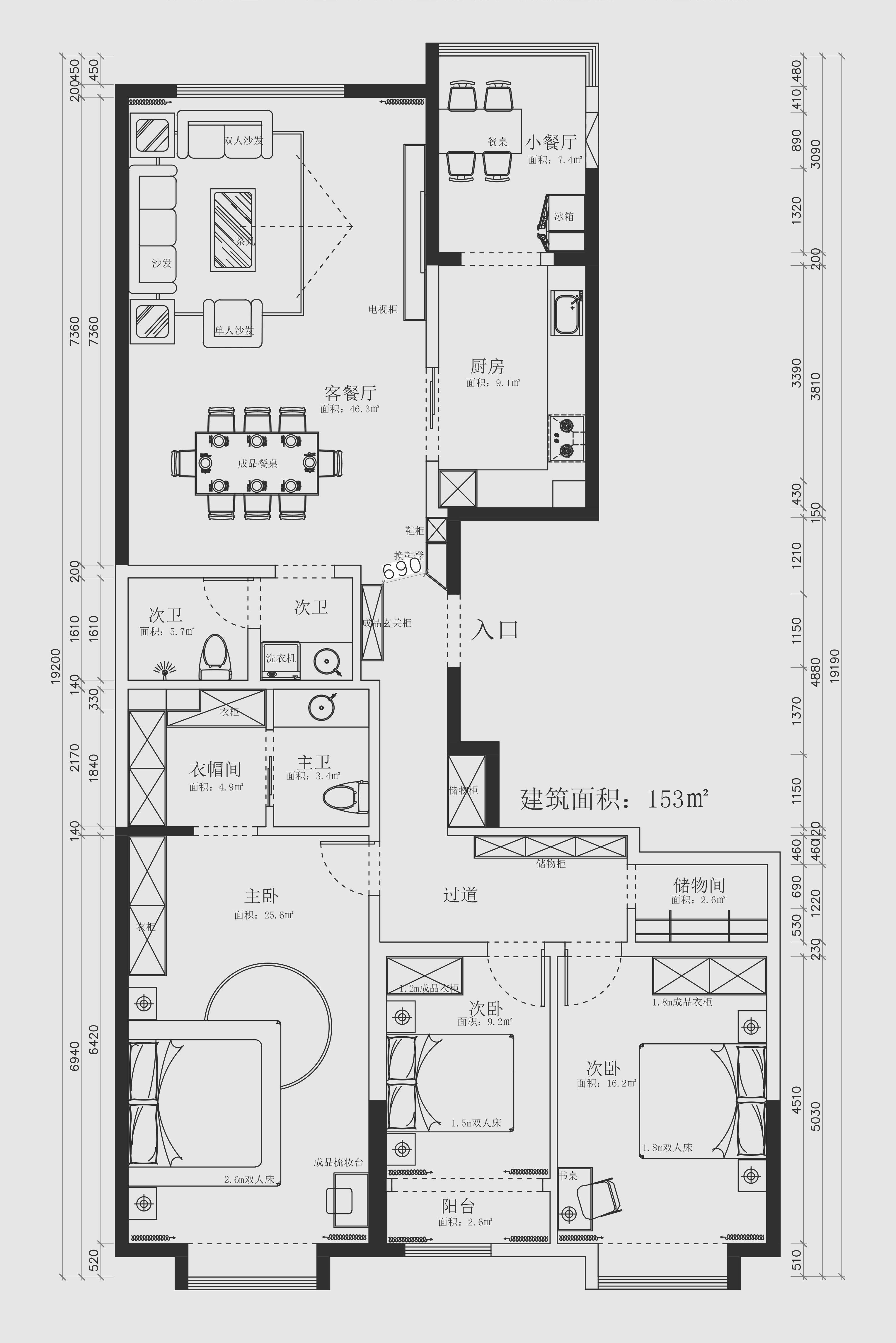
“关注i Go,每周学习一个户型改造小技巧” 项目属性/二手房/平层 项目套内面积/153㎡ 执行设计/i Go空间设计事务所 原始方案 Party A's demand.
甲方需求- Demand of Party A. 1:两间卧室+一个客房(满足临时住人) 2:厨房需要封闭式,阳台扩进来,洗衣机放公卫 3:两个卫生间(主卫不需要淋浴),储物要多,需要储物间 优化方案 Optimization scheme.
i Go 业务合作 -官方抖音:iGo户型优化(关注抖音 看最新案例) -官方抖音:i Go户型优化 -官方小红书:i Go户型优化 微信公众号:iGo户型优化
*本文以及方案均为i Go原创 禁止转载 分享至其他平台 |
精华推荐
换一换


发表评论0