成都绿城凤起兰庭极简东方售楼处会所精装室内深化设计方案

昨天 22:08/ 方案概念/ 售楼处/ 只看大图 阅读模式
仅供分享不做任何商业用途,版权归原作者所有,谢谢配合。

马上注册,结交更多好友,享用更多功能,让你轻松玩转社区。

您需要 登录 才可以下载或查看,没有帐号? 注册

x
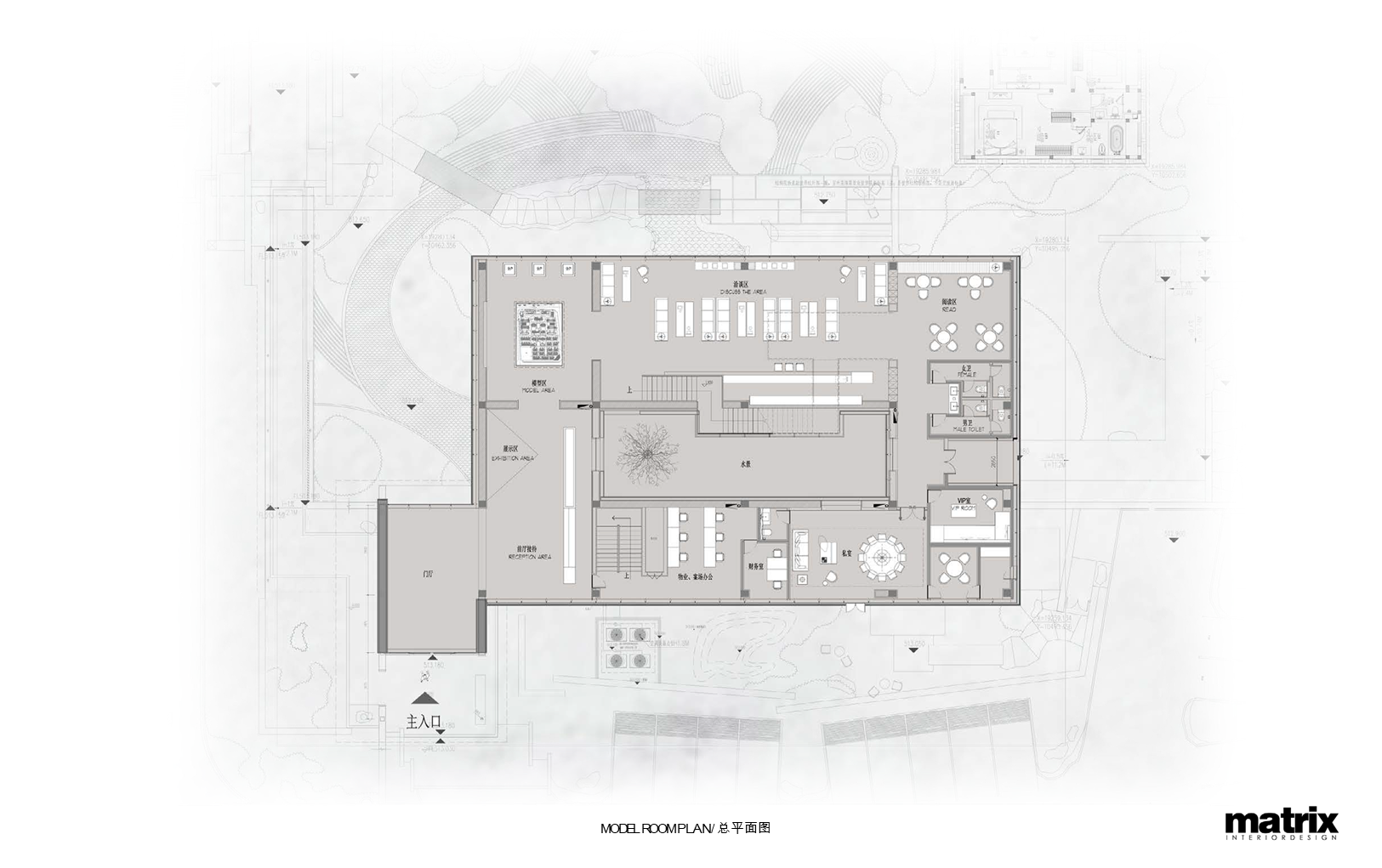
成都绿城凤起蘭庭项目

极简东方售楼处会所精装室内深化设计方案

幻灯片44.PNG
幻灯片34.PNG
幻灯片37.PNG
幻灯片33.PNG
幻灯片32.PNG
幻灯片31.PNG
幻灯片28.PNG
幻灯片25.PNG
幻灯片24.PNG
幻灯片15.PNG
幻灯片14.PNG
幻灯片13.PNG
幻灯片10.PNG
幻灯片9.PNG
幻灯片8.PNG

 

绿城成都凤起兰庭极简东方售楼处会所精装设计方案.rar

102.59 MB, 下载次数: 0

售价: 10 交易币  [购买]

精华推荐
换一换

发表评论0

成都绿城凤起兰庭极简东方售楼处会所精装室内深化设计方案
拓者推荐
  • 重庆站】精工课(5月27-28日)
  • 琚宾-杭州保亿观云钱塘城
  • 召禾设计-上海汤臣君品
  • CCD-华润置地南通澐璟
  • 朴悦-华润小径湾-悦海白兰墅
  • CCD-华润 CCBD 889㎡设计方案
  • 【召禾设计]天际江景超大平层方案
  • 【WSD世尊】建发·云启玉诸
  • CCD-华润玺宸上院中叠样板间
  • CCD-武汉绿城外滩玫瑰园别墅
  • 2025拓者年费+案例Vip会员说明!
  • 【 拓者年费--CAD图纸】
  • 【 拓者年费--户型方案】
  • 【 拓者年费--豪宅视频】
  • 【 拓者年费--灵感图库】