新手发图,多指导!

仅供分享不做任何商业用途,版权归原作者所有,谢谢配合。

马上注册,结交更多好友,享用更多功能,让你轻松玩转社区。

您需要 登录 才可以下载或查看,没有帐号?注册

x
本帖最后由 裱糊临场 于 2013-6-6 14:41 编辑

01-Model.plt.jpg 021-Model.jpg
重新调了下
我三星的液晶显示器。
好像一直存在偏亮问题
cc.jpg aa.jpg bb.jpg

2013年5.10日
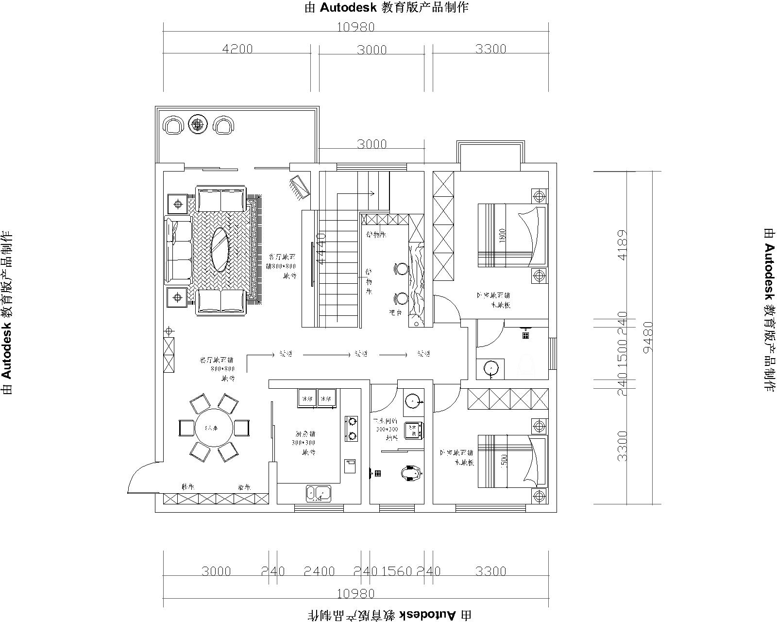
一套很变态的小户型,
客户要求两个卧室
一个小孩房,
空间诊断后,就产生了这个······上图
003.jpg 004.jpg
3.jpg 1.jpg 2.jpg 张总黑白-Model.pngf副本.jpg 张总黑白-Model.jpg a.jpg b.jpg c.jpg

标签: 指导
精华推荐
换一换

发表评论10

  • 裱糊临场 2013-5-21 21:53:33

    zhuwangmumu1410 发表于 2013-5-15 12:00
    灯光要是在亮一点就会更好的

    我用的三星显示器一直都存在偏亮问题。

  • ___try_thank 2013-5-21 22:49:46

    用飘影更自信 发表于 2013-5-15 11:26
    难道是你电脑屏幕太亮?感觉黑呼呼的

    你没明白他的意思。。。他说他平明太亮。。所以以他屏幕觉得亮的亮度  我们正常电脑看的话 就会觉得暗    他后面不是PS后期处理了么

  • 斯文ぃ痞子 2013-6-6 14:29:14

    第一套那方案 通过了? 怎么首先进门就被餐桌给挡了路。每次回家都得绕着走?电视机都不是在沙发视觉线的中心,坐在上面人还得偏着看电视。平面布局上面有很多需要精确的地方。

新手发图,多指导!
拓者推荐
  • 2026拓者 CAD户型方案 发布
  • 【武汉站—“樱”你而来】获客实操
  • 【武汉站—“樱”你而来】户型优化
  • 【武汉站—“樱”你而来】风水
  • 【梁志天】西安曲江·九曲松间
  • 无间-上海汤臣君品合院方案
  • 君品-汤臣金桥花园项目方案
  • 无间-上海大宁中建玖上琅宸
  • HWCD-烟台洲際酒店深化方案图册
  • 琚宾新作-资兴东江湖度假酒店
  • 2025拓者年费+案例Vip会员说明!
  • 【 拓者年费--CAD图纸】
  • 【 拓者年费--户型方案】
  • 【 拓者年费--豪宅视频】
  • 【 拓者年费--灵感图库】