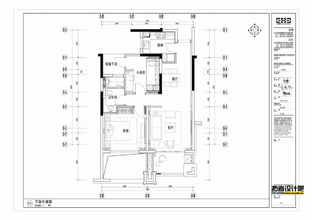
李扬设计_保利城市果岭A户型

2013-10-31/ 家居实景/ 现代风/ 只看大图 阅读模式
仅供分享不做任何商业用途,版权归原作者所有,谢谢配合。

马上注册,结交更多好友,享用更多功能,让你轻松玩转社区。

您需要 登录 才可以下载或查看,没有帐号? 注册

x


1.jpg



2.jpg

3.jpg

4.jpg

5.jpg




精华推荐
换一换

发表评论41

  • 青蛙BOY 2013-11-4 16:40:07

    卫生间和卧室那块玻璃挺不错的,还有小孩房的床和书桌,不错。整个色调我也喜欢……。学习了

  • 不在服务区... 2013-11-7 16:37:10

    貌似只有一个卫生间,又貌似唯一的一个卫生间和卧室又是玻璃隔开的,这样貌似卧室就没私密可言......

李扬设计_保利城市果岭A户型
拓者推荐
  • 重庆站】精工课(5月27-28日)
  • 琚宾-杭州保亿观云钱塘城
  • 召禾设计-上海汤臣君品
  • CCD-华润置地南通澐璟
  • 朴悦-华润小径湾-悦海白兰墅
  • CCD-华润 CCBD 889㎡设计方案
  • 【召禾设计]天际江景超大平层方案
  • 【WSD世尊】建发·云启玉诸
  • CCD-华润玺宸上院中叠样板间
  • CCD-武汉绿城外滩玫瑰园别墅
  • 2025拓者年费+案例Vip会员说明!
  • 【 拓者年费--CAD图纸】
  • 【 拓者年费--户型方案】
  • 【 拓者年费--豪宅视频】
  • 【 拓者年费--灵感图库】