首页推荐
编辑精选
评论最多
查看最多
【武汉站—“樱”你而来】户型优化总监内训课【时间:4月8-10日】
【武汉站—“樱”你而来】抖音/小红书/视频号同城获客实操训练营【时间:4...
求大神指点
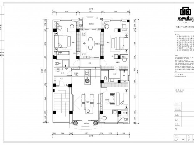
请大神路过踩踩
还有没有更好的玩法
200平 户型交流
100平超方正户型
记录100个户型优化第21套(第二季)一路向西行——许
《户型优化案例记录》
有没有大神挑战一下
户型优化
传统户型,施工落地细节化
以拣尽脑汁 还是没做出来 满意的 大神门求 提炼提炼 方案 要有眼前一亮的赶脚4
苦瓜优化设计
自己家的户型,求大神们帮帮忙!
请各位大神给看看这个户型,我改的总觉得太别扭了
新人求大神么帮忙看看这个怎么改三房
新人求助各位大佬。
求大神 优化下方案
粉丝投稿九,如何3房变5房
户型优化案例分享-33
大神帮忙研究一个更合理的方案
100多平 需要三房 内部称重墙多 求大神优化!
每天进步一点点,欢迎拓者大神大佬爆改学习。
[求助】叠上三层别墅求大佬给意见
【求助】三层叠拼别墅,叠上
求大佬帮忙看一下,多多指点!
设计小白求大佬优化
售楼部平面布置图,请指点优化
方案深化,求大神指导!
我是个新手小白刚做不久,不知道这样布局合理不合理,麻烦前辈们给点宝贵意见,
业主是一位女性,想三室改为两室
大佬们看看户型 厨房这里不会弄了
如果这是你的设计工作室,你会这样布置吗?
跪求大神指点
没有思路请大神指点
180平方新中式、主卧书房做套房大空间,大神指点。
请教大师帮忙看下,有没有更好的方案。
山湖景色,现代风
总感觉缺了点什么,有没有大佬提点意见
这样的奇葩点赞户型,见过吗
户型优化案例分享-32
俩房,要一个休闲空间,储物空间强
保留三房,一男一女孩,客厅的背景太小,厨房不够放置电器,求各位设计大咖帮帮忙
每天进步一点点,欢迎拓者大神爆改。
150平米旧房改造
求大神看看这个无界的公寓
大神指教
烧脑,求解
学过一点设计,转业了,自家房子,请教大佬有没有更好的办法
奇葩户型 各位大神支支招
记录100个户型优化第20套(第二季)一路向西行——许
求大神帮忙出点住主意
设计小白 求帮看看我这样还可以再怎么优化呢
270户型大改造, 总统套间
三房两卫,入户大门对着卫生间,求大神帮忙,小弟感激不尽
求大神优化,谢谢
四房就一家三口住 客户说感觉客厅太小了 还想要个衣帽间 复室和一层面积一样
请大神帮忙
设计方案交流
设计方案讨论中导台方案
小复式楼,方案优化
自建房改造,四周都是柱子,但是不清楚中间有没有柱子,请各位大佬帮忙提提意见。
双拼别墅两套打通,考虑了几个方案一直没有找到太好的方案,和各位大神一起探讨下
保留三房 凸显生活品质
求助餐厅方案设计
年轻夫妻公寓
业主需要入户处理,现代风格,有大神指点吗?
各位大佬求指导
大神来研讨下户型
跪求路过的各位指点江山帮忙想想方案
跪求大神指点,多次被业主驳回,实在是黔驴技穷了。
两房无客厅老房,请大家帮忙优化
求助各位大神,帮我看看这户型该怎么做
60平的复式,求前辈们指导一下,开通一下思路
没思路了
求大神帮我想想,自己家里的房子
大佬们,来提供一下思路吧,感谢
户主2个小孩要三个房间,带一个书房 求大神指点
406158
工作日:早9点--晚5点
客服QQ微信:406158
关注拓者设计吧让设计更有范