首页推荐
编辑精选
评论最多
查看最多
考验大神们时刻来了
爆改3房
年轻人 买这个房子不易,最近要装才发现 哪哪哪都不能打, 求帮忙,
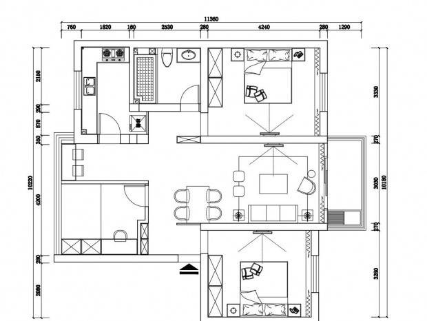
詹贺钧设计机构辰星一力创设计~~第二十三季室内平面方案分享
户型拐角有点多请求大神来指点指点
帮忙看看这个户型
吕小布三房求助,头脑风暴正式开启
吕小布三房新家求装修,驾,让我们策马奔腾。
求各位大佬指点
小2室,卫生间区域跟厨房跟餐厅位置求各位看看,怎么操作合理
要求:一家五口,两个老人,一对夫妻,一个三岁女儿,二楼全部归夫妻使用。极简风格
急急急!!!平面优化,大神们有不同的方案吗,一起研究研究。
求大神们给点修改的建议!
请各位大神来指导一下,帮忙优化一下,实在找不出好的办法了
求助客厅采光方案改造
大神进来看看, 求个完美布局
各位大神麻烦看一下,有点挠头
没有承重墙的户型图,这是现场量房,客户2个大人2个小孩,求大佬们支支招
各路大神进来看看,有没有什么好的构思
别墅三楼。。进起居室还有好的方案么求救
户型优化 求大神指点
求一个两房的方案,年轻姑娘,需衣帽间!!
各位大神们,帮忙出出主意,房子很方正,但是总感觉不是很满意,空间很多没有利用
求大神优化方案
求大神看看能不能帮我优化出更好方案
求大神看看这个方正户型,怎么装比较有亮点,一家6口 2个孙女都才一两岁
疑难户型求挑战
来大神帮忙优化一下空间
户型求助
难搞的户型,琢磨好久了。没有头绪。请教老师们
这个户型有人能做吗
这个磨人的方案有人能优化吗
请各位大佬帮忙看看这个户型,给点建议。 回复有金币~
来大师们挑战下这个户型!!!
业主需要一个水吧台,餐厅总感觉差点感觉,求大神赐教,
是时候大干一场了
望大神给建议,
请求各位大神给我看看,实在不知道怎么修改了
500多平方大平层,请大佬请教下,感激。
请大家给点思路呀><
方案求思路><
求助大神优化户型!
一套3层独栋别墅,请大神帮忙看看。我已经布了一套方案!
求大神指点
这个户型还有没有更好的改进方式 感谢各路大神!!!
求设计大神们给点摆布意见
老师帮忙看一下这个户型,小设计有幸接到能力有限希望可以提点建议
求眼前一亮的方案(拿笔草画一下即可)
平面优化,大神们有不同的方案吗,一起研究研究
业主嫌餐厅小不四齐,可接受开放式厨房,求各位大神支招
大神求设计
自建房
户型
大神们过来过过目
求大神给点建议
小复式楼方案优化来大神
来个大神指导一下
一起探讨下这个方案,能不能有些比较新意的想法,不想做的中规中举
各位设计前辈,看看这个户型还有哪里需要改善的。保留3个房间
求助,自建房空间太大不知道怎么布局更适合
小联排 感觉好难啊!有没有大神给指个路
方案没有亮点,烦请大佬们提点一波
求大神 急
求大神,帮划分功能区,太难了!!!
客户要求2个房间,干湿分离,西厨,餐厅大一些
有难度的平面、请给点建议
求指点。 想改善下鞋柜和客卫干区
平层两套搞成一套!求指教!
跪求哥位大神给点改造建议
平面优化
求大神指点指点,一家四口,主卧要卫生间和衣帽间,要新思路,
记录100个户型优化第07套(第二季)一路向西行——许
100平方的卧室空间 怎么分布
大神们看看这户型怎么优化
限制很多 不好设计
loft迷你小户型,求大神指点这个户型,万分感谢
最新绘制的数字手绘作品——元智教育(不断更新发布。。。。。)
115平方的三室,各位大神有没有好的方案和想法,谢谢啦
3个卧室1个书房主卧要衣帽间
406158
工作日:早9点--晚5点
客服QQ微信:406158
关注拓者设计吧让设计更有范