首页推荐
编辑精选
评论最多
查看最多
求地下室方案布局优化
自己想的方案没有什么亮点,求优化!!!求指点!!!!
求指导 请大佬帮忙优化一下
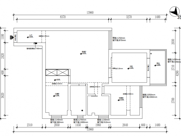
四室改三室,大伙给点建议~~
一个艺术培训中心琴行没做过这种一点思路没有,有偿寻方案
求大神指导,毕业设计交流
两户打通 求大神指导
想要两个卫生间 卧室带一个
改三个民宿房间,请各位头脑风暴一下
求助大神
200平方平层,求大神给个方案,
平面优化,大神们有不同的方案吗
求大佬来帮优化。自用婚房
大神们看看这个户型怎么优化?
请大神帮忙看看这个户型,还有救吗?
套内56平,改造三房
求大神指导,异性98年老房
有没有大佬帮我看看,还需要哪里改进,特别是这个进门玄关柜,怎么设计比较好
求大神指点一下!!!
求大佬支招,第一次见那么大的烟道
求助大佬,第一次看到那么大的烟道
员工活动室 求指导 请大神老师帮忙优化一下
求各位大师指点一下这个户型怎么布局!
北面小房间的门洞太小了还不好拆改,初步做了个方案,自己还是不太满意,求大神指....
自己的一些初稿,求各位大神指点.
設計徒 |学习交流群 方案交流 27
小菜上来学习
求大神帮忙,脑袋要炸了。
头脑风暴,一个小户型废了无数的脑细胞只想到这一个方案,求大神帮忙看看还有别的f...
【設計村户型优化】第三十九期住宅平面优化比赛优秀方案
别墅一楼
奇葩户型 太难了 求大神们帮帮忙
旧房改造
各路大神帮忙优化一下这个房间
求助大神帮助
求指导,阳台不能放洗衣机,洗衣机的位置很头疼
瑜伽馆的方案,大佬帮忙看看还能改动不
求助,大户型缺很难受
求助各位前辈!
听说这里大神挺多,人贼好,希望给个好的方案
求助,户型优化,需要三卧室两卫一书房一活动室,3楼不要卫生间,
116别墅3楼
急急急 求大神解答
一个小公寓,请各位大神给点意见。
紧急求助,业主需要三房,一时没有比较好的方案
正在基础装修,找个su设计师,小白也行,有偿设计
有没有哪位神仙设计师大佬能帮设计一下。
新手第一次遇到这种要层式,帮忙看下这么做
大老板们看看咋做好
三室一厅三世同堂,怎样能做到空间利用最大,看起来又霸气呢?去大神指教
求大佬指教细化一下
求大神指教一下
头大
请各位大佬帮我看看这个户型怎么该,谢谢啦,只要是厨房好餐厅这一块。
各位大神看看,楼梯位置和布局怎么再完善一点,拜托了。
上个世纪90年代的房子,两房改三房,做了一个,感觉不是很满意。
这个户型改动的不多,除了普通的布局,求大神开导一下
105m2做美式田园风格,大神们帮忙想想
求助各位大神帮忙看看,小户型还能优化吗
农村自建房,不知如何应对求赐教
求大神给指点一下不足之处
求大神户型优化
有没有大佬帮忙提下建议,这个户型特难受,需要三个房间,一个书房
大神们有没好的主意
一个小公寓遇到一个小麻烦 有大神帮忙出下主意吗
跃层负一楼
户型交流 自己做的感觉差点意思 开拓下思维
小白一个,求各位大神一个方案
这种卫生间,怎么搞得定呀?开发商坑啊。
有没有大佬能帮忙优化方案!回帖有奖
户型交流 总感觉差点意思
户型比较方正,我做的比较简单,希望大佬能优化优化
100平小三室 求大神好的方案规划。
求大佬户型优化,一起交流
有没有大佬稍微提一下建议,衣帽间要怎么加合适
做成三房,求创意
大平层 ,求设计 厨房那边七米长,。。。见都没见过啊
帮忙玩一玩呀
406158
工作日:早9点--晚5点
客服QQ微信:406158
关注拓者设计吧让设计更有范