首页推荐
编辑精选
评论最多
查看最多
简中,大师们给提点提点
3d渲染了一晚上到现在 可是一张图都没宣出来,怎么办?
拉萨瑞吉酒店之方案概念
济南山东奥润建筑安装工程有限公司 唐旭 希望大家能给点建议
2层的中式茶楼,建筑面积817,自己手工做的,不是网上的图,+立面共有51张,
卢小刚作品敬请期待
租了个门面准备自己干,这户型好纠结啊~~~
纯粹手绘---导师景观手绘作品
小工具,简单实用。可以节省很多时间。不要过于依赖哦!
纯粹手绘--学员室内手绘作品
来看看此户型 希望有创新的设计 回帖有奖励 上图的话打赏
大学四年手绘作品------(二)
纯粹手绘导师--景观手绘作品欣赏
纯粹手绘导师--建筑设计手绘欣赏
大学四年手绘作品(一)
设计师软配色彩方案Pdf 无法错过,无法抵抗。
纯粹手绘导师---室内手绘作品欣赏2
纯粹手绘--室内手绘作品
精品家装设计案例
3dmax快捷键 大全
3dmax渲染技巧精彩问答100例
(高见项目)中国石油天津滨海新区大厦
一个平面30个方案
实习没多久。进来这个吧逛,也是实习的时候带我的师傅介绍的。
3d2012
自家美式小屋时隔一年完工,经历太多波折心酸,发几张小样解解闷了。
对素描的几点认识
温馨小居
减面插件
做了一星期的平面方案,然后我经理设计了
沧州·天成明月洲235平新中式
芬兰经典黑白灰LOFT风格公寓
售楼部食堂要求高大上
完美石膏线路径
沉淀-2015
已删
小小插件一枚
收集的节点、样图
大师来帮帮忙,业主要就储物空间多。主我有电脑桌化妆台小,卧室儿童双层床。
你还在为电脑怎么作图这么慢烦恼?今天说说电脑各大硬件在做3D效果图时起到的作用 。
工业风系列之三———巴塞罗那Umo Japanese餐厅设计Estudi Josep Cortina
工业风系列之二———英国Nando餐厅
工业风系列之一———伦敦的工业风格餐厅
海龙工具箱
英格兰LOFT公寓
分享14年做的一个日本餐厅
别墅
小客厅设计技巧有哪些?
一键清理场景变大小插件-只针对max2012
软包建模视频教程,让你学会自己建家具
2015我的室内设计工作室
CAD杀毒工具,来吧伙伴们
各种图片转为CAD格式
不再为了没有图块而烦恼。。。
凡谷大地办公空间设计
快速手绘中混合技法的技巧
求意见,求改进
2014 —— 我怀疑 是不是只有我的明天没有变得更好
杭州桃花源别墅转(共享)
COCO时尚主题酒店 《寒枫设计》
批量渲染神器-不用熬夜,不用加班---批量出图---工具
帮忙考虑下鞋柜怎样做满
意空间早教中心学院--陈建春室内设计事务所
意空间教育科技有限公司--陈建春室内设计事务所
如何布置比较完整,感觉有点瓶颈,求教(第一次发帖)
渲染技巧,色溢的解决方法
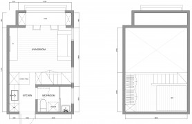
一种表达 80平方小户型
吕行 2015、01.28
现代简约清新。
巴黎春天
皇城故梦一闲人 Imperial Vision
3D2009常遇到的问题--卡多整理
64位莫莫批量渲染_Adv_2.40.08
小房子也可以这么美
绝对牛逼的 分色通道脚本 含泪奉送!有图有真像,后期处理小菜一碟!
小户型改造大师?请问这个户型如何设计!尽量功能化
15的max打开一两次模型后不能再打开模型了
论坛新人求大神指教
各位大神们进来瞧瞧看看有什么好点子
空间改造样板间户型
406158
工作日:早9点--晚5点
客服QQ微信:406158
关注拓者设计吧让设计更有范