首页推荐
编辑精选
评论最多
查看最多
V8空间表现 | 客餐厅
健身房设计中色彩的具体应用
极简办公公共空间
现代简约
喜讯!吕莉女士荣膺"HDA她设计奖" 2019年度优秀空间设计奖!
现代简约客餐厅
香港九龙3802现代别墅
人物访谈 /// 吕莉Kelly Lv : 商业设计于我生命是一个重要的混合体
治未病中心 龙绍凯月设计
背景墙
极简风
欧式,将优雅与尊贵融入骨子里
近期做的几张卧室
珠海一帆深化设计---办公室空间表现
面朝青山湖,春暖花又开的度假风大宅--LD设计!
新中式风格
别墅外观
两种方案的新中式别墅
艺尚名筑作品“枫林晚”
现代欧式邂逅“花样年华”
现代黑白灰极简风格
九度设计 | 春暖花开,我们期待与你相遇
现代客餐厅
惊喜总在不经意处
V8空间表现 | 新中式客餐厅
室外真石漆案例(鸟瞰 透视 景观)
Coexistence | 生活深处,艺术与人文如影随形
[高傲汉化]VRay 4.30 4.31 for max 全版本 免费汉化破解 更新时间:20200329
简约,现代,黑白灰混搭呀
北欧~~总给你不一样的惊喜
高级灰,现代
名宿设计出图啦---LD设计
拿铁
那一抹红-服装店
中式整木定制
大家好 这是疫情后的第一单 方案有点难做 大家帮帮忙 指导一下 谢谢
欧式厨房设计表现
新中式客餐厅加卧室
多功能室
新人求各位大神指导
2020最新效果图作品
新中式客餐厅
商店
工装表现|消防队
北欧风格
微光
实木简约风
Top real 家装小现代表现
48㎡清新LOFT,全能百变、时尚个性!
河南志洋空间设计----口腔门诊
两套东方雅韵样板间,巧妙配色清隽温馨
餐饮设计中装饰织物的具体种类
新中式别墅庭院
家装工装
艺尚名筑作品“暖阳”
求大佬baba指点一下
求指导!过路的大神哥哥姐姐,来给指导下,看看这户型该怎么布局下!
V8空间表现 | 家装客餐厅
绝美中式,最中国!--LD设计
电视背景参考设计 //以柜体做背景实用美观
高颜值西餐厅
极简客餐厅
法式客餐厅,卧室
好久没做设计了,近来没事再试一试
现代简约风格
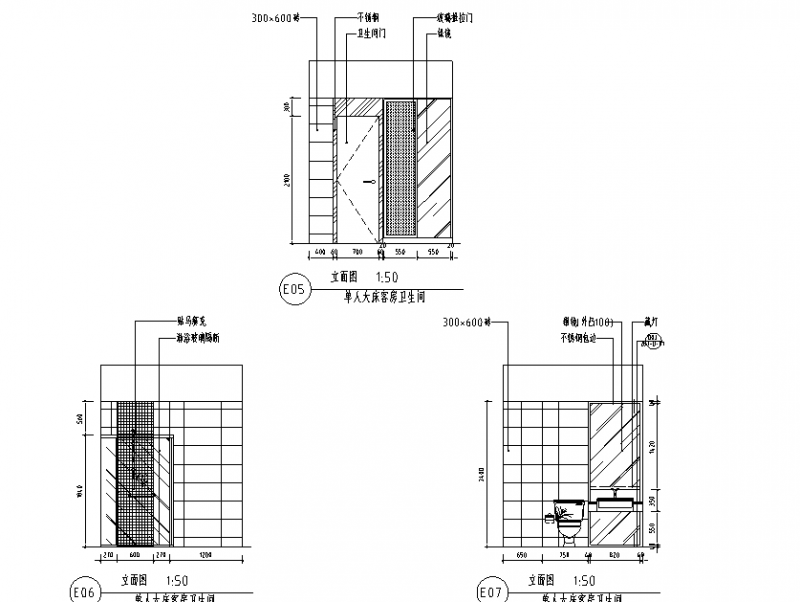
客房大床房施工图案例
名宿 田园感
餐厅
售楼部
V8空间表现 | 工装效果图赏析
新中式办公室
沙与海见证你的到来
宁静致远
现代客厅
朱允作品-成都中南海棠集194(ZHUYUN STUDIO)
雨·曾来过
现代轻奢
哪位大神帮忙想下这个方案要怎么做啊,头痛,要求三房2卫一个阳台老家住
406158
工作日:早9点--晚5点
客服QQ微信:406158
关注拓者设计吧让设计更有范