首页推荐
编辑精选
评论最多
查看最多
别墅平面设计CAD彩平
2026年新版设计工作室图库
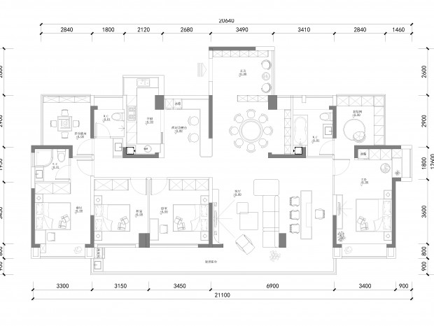
拓者年费平面方案:296㎡3房大平层【3稿方案】
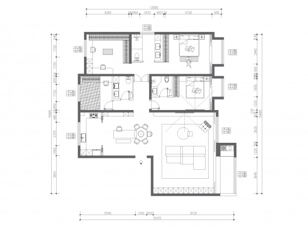
拓者年费平面方案:250㎡3+1房两户打通大平层!
拓者年费平面方案:231㎡4+1房两户打通大平层!
2026拓者 CAD户型方案 发布!
各位老师看看再有好的方案吗
(王一户型改造300期)3600㎡合院别墅两版方案分享!
大佬们可以帮帮忙吗,头脑风暴了
户型方案平面图
梟景平面方案优化I第433期【150平雪茄会所如何改造出高级感】
梟景平面方案优化I第432期【114平方如何设计出160平方既视感】
设计师马工【户型优化第九期】
主卧套房微优化 Joker biao 322期更新
自装平面户型交流
600平别墅平面设计彩平+psd文件
奇怪户型年年有,年年不一样
梟景平面方案优化I第430期【166平方如何设计出196平方既视感】
小白上路,自家房屋装修请大神帮忙优化优化
|成分制作|------方案录像29
设计师马工【户型优化第八期】
梟景平面方案优化I第428期【83平方如何设计出140平方既视感】
设计师马工【户型优化第七期】
优化案例分享-887
梟景平面方案优化I第427期【150平方如何设计出190平方既视感】
设计师马工【户型优化第五期】
梟景平面方案优化I第426期【134平方如何设计出170平方既视感】
设计师马工【户型优化第四期】
设计师马工【户型优化第三期】
梟景平面方案优化I第423期【151平方如何设计出170平方既视感】
设计师马工【户型优化第二期】
220m²户型改造
(王一户型改造299期)680㎡独栋别墅三版方案分享!
设计师马工【户型优化第一期】
梟景平面方案优化I第422期【145平方如何设计出160平方既视感】
请老师们抽空帮忙看看怎么做合理
梟景平面方案优化I第420期【145平方如何设计出180平方既视感】
优化案例分享-885
梟景平面方案优化I第419期【98平方如何设计出140平方既视感】
优化案例分享-884
梟景平面方案优化I第417期【220平复试如何设计出300平方既视感】
优化案例分享-883
梟景平面方案优化I第414期【250平方如何设计出300平方既视感】
梟景平面方案优化I第410期【190平两套打通设计出300平即视感】
求户型优化方案
梟景平面方案优化I第408期【68平方如何设计出100平方即视感】
梟景平面方案优化I第407期【168平方如何设计出280平方即视感】
优化案例分享l 两个人的居住空间
拓者年费平面方案:116㎡平层3房 【1稿方案】
拓者年费平面方案:117㎡平层3房 【3稿方案】
拓者年费平面方案:113㎡平层3房 【2稿方案】
拓者年费平面方案:112㎡平层1房
拓者年费平面方案:111㎡平层2+1房 【3稿方案】
拓者年费平面方案:110㎡平层3房 【1稿方案】
拓者年费平面方案:100㎡平层3房 【1稿方案】
拓者年费平面方案:100㎡平层2+1房 【2稿方案】
拓者年费平面方案:100㎡平层1房 【1稿方案】
拓者年费平面方案:100㎡平层1+1房
i Go·平面方案户型优化周刊247期 ▏00后体制内的大平层业主该如何设计方案
拓者年费平面方案:97㎡平层2+1房 【4稿方案】
拓者年费平面方案:88㎡平层1+1房 【2稿方案】
拓者年费平面方案:87㎡平层2+1房
梟景平面方案优化I第404期【95平方如何设计出150平方即视感】
梟景平面方案优化I第403期【166平方设计公司如何设计出高级感】
【800平度假民宿-户型优化案例记录-70】
优化案例分享-879
拓者年费平面方案:200㎡3+1房大平层【4稿方案】
拓者年费平面方案:185㎡3+1房大平层
求助!需要一个有设计感的方案
梟景平面方案优化I第399期【180平方复试如何设计出280平方高级感】
(王一户型改造298期)250㎡两版方案分享!
梟景平面方案优化I第398期【700平别墅如何设计出千平高级感】
KB 设计霖啊案例分析-随笔50
(王一户型改造297期)500㎡自建别墅两版方案分享!
东余户型优化57期 l 小中见大——让96平住宅充分服务于空间使用者
(王一户型改造296期)225㎡两版方案分享!
KB 设计霖啊案例分析-随笔43
KB 设计霖啊案例分析-随笔42
KB 设计霖啊案例分析-随笔41
东余户型优化56期 l 年轻客户不要传统横厅如何设计?
406158
工作日:早9点--晚5点
客服QQ微信:406158
关注拓者设计吧让设计更有范