-
赞·宏天 2015-11-5 15:34:01
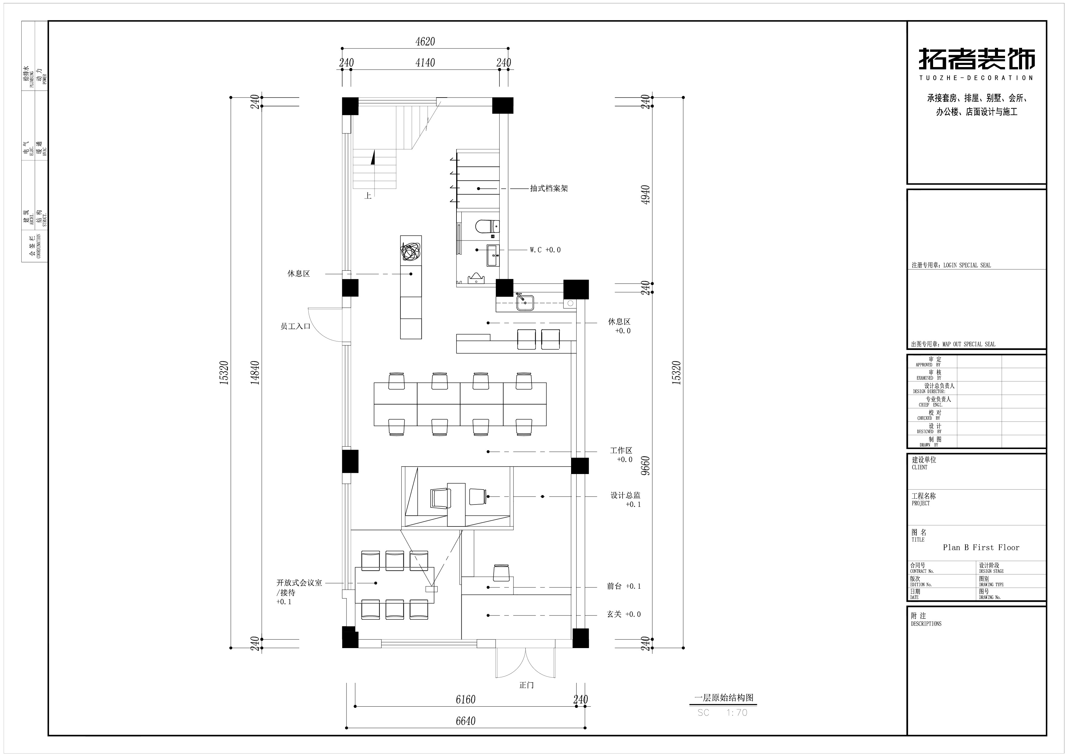
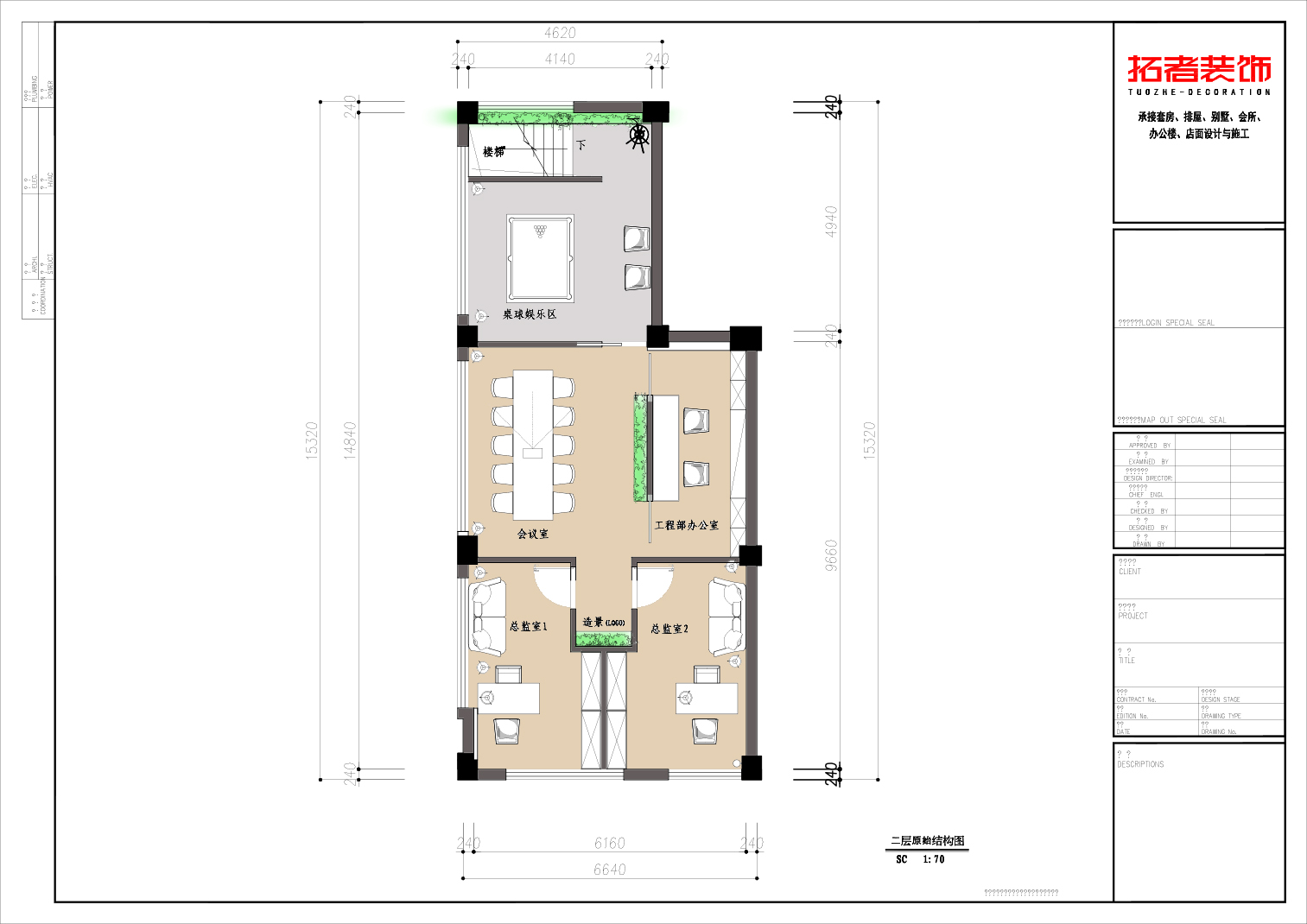
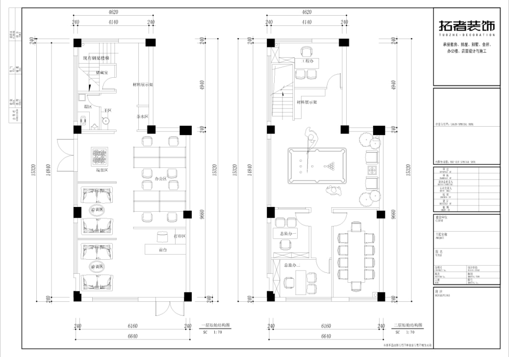
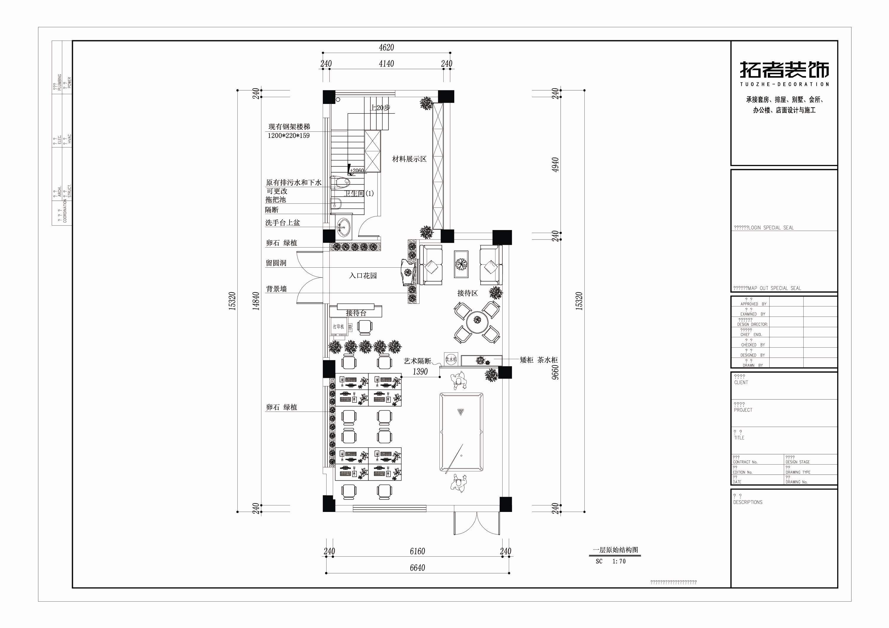
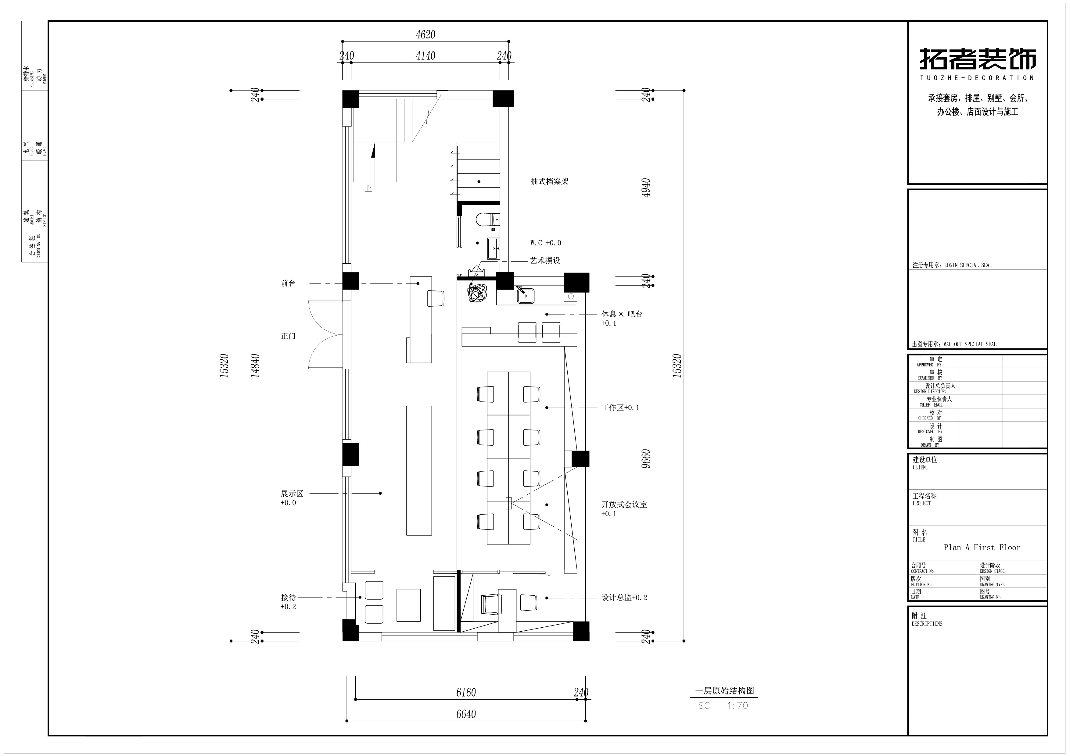
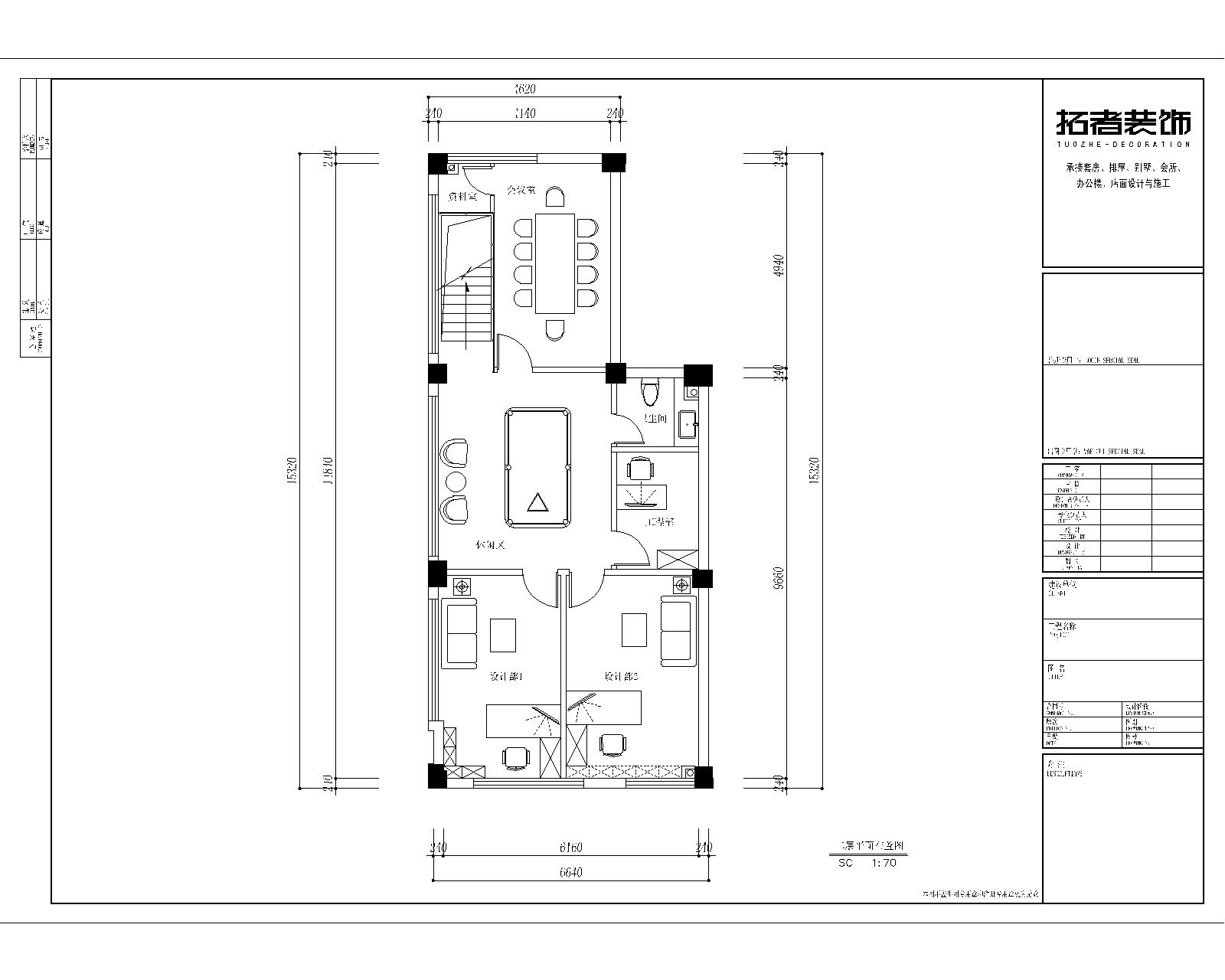
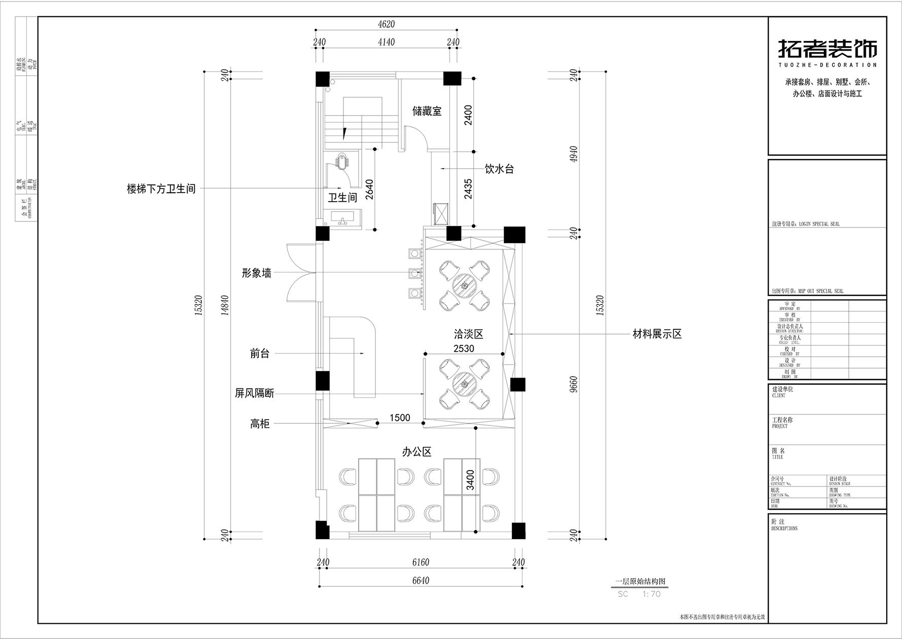
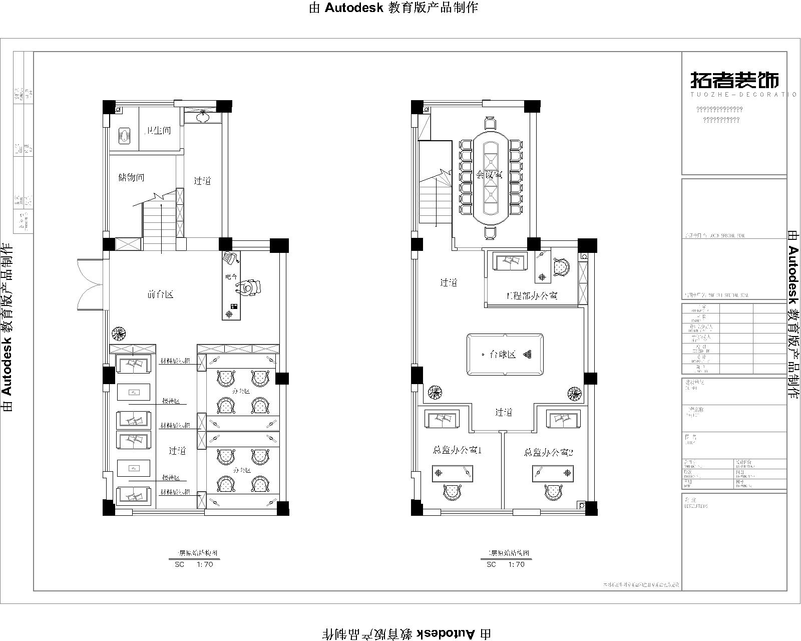
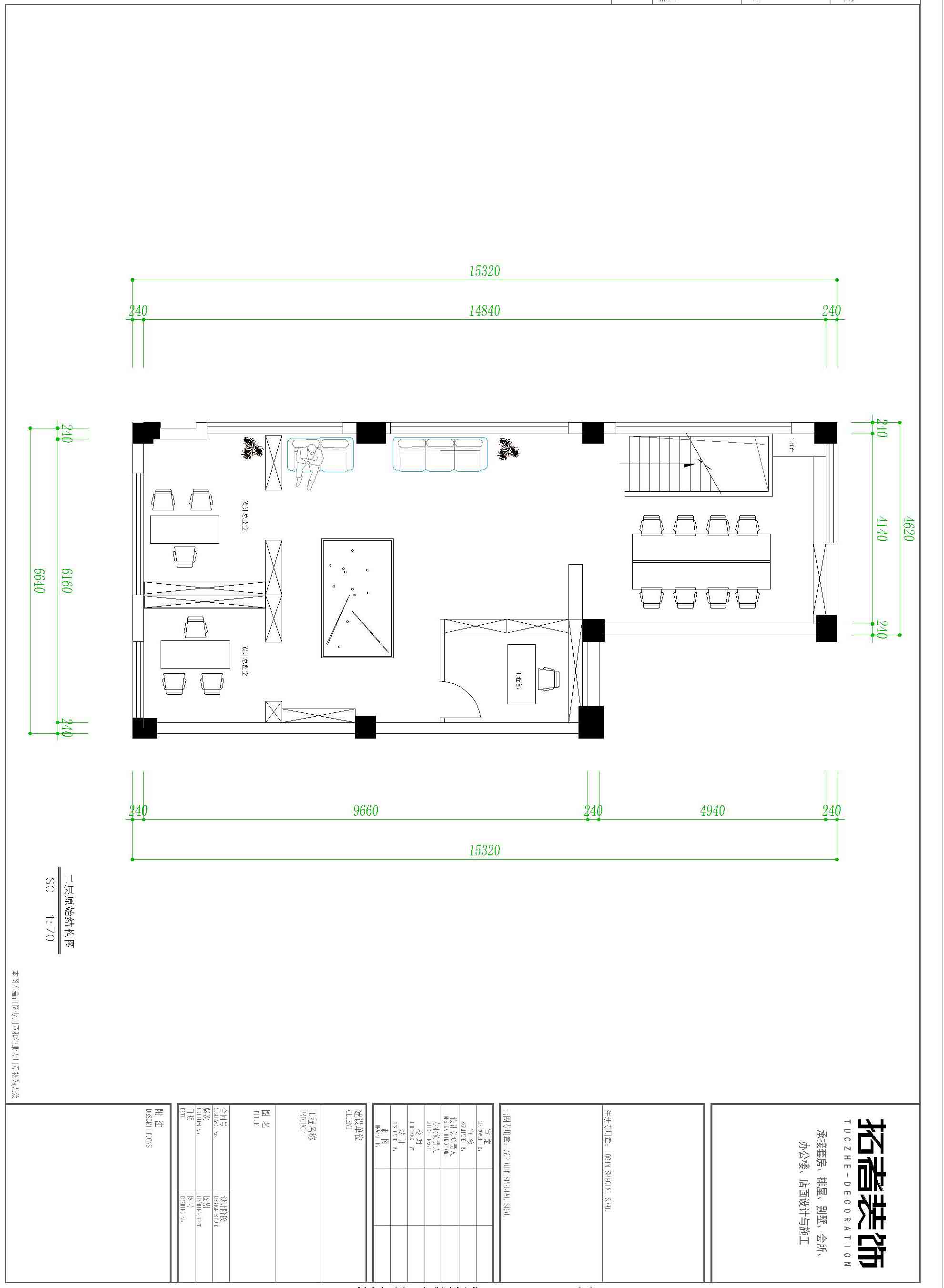
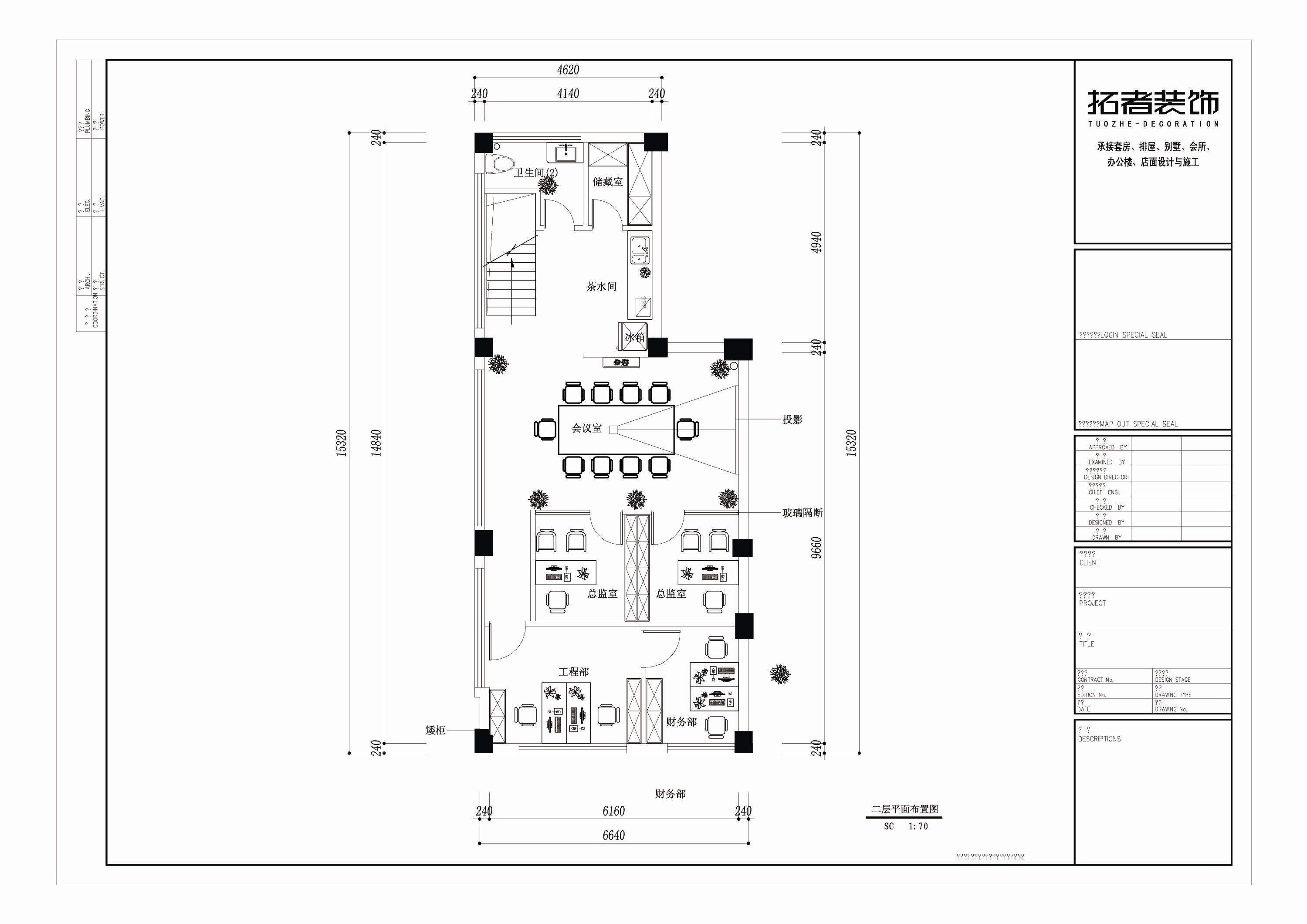
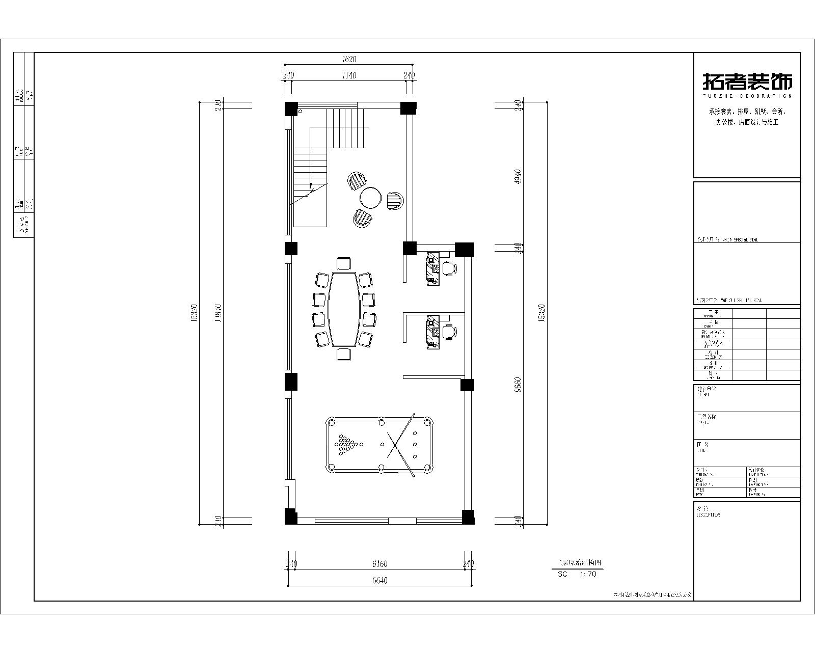
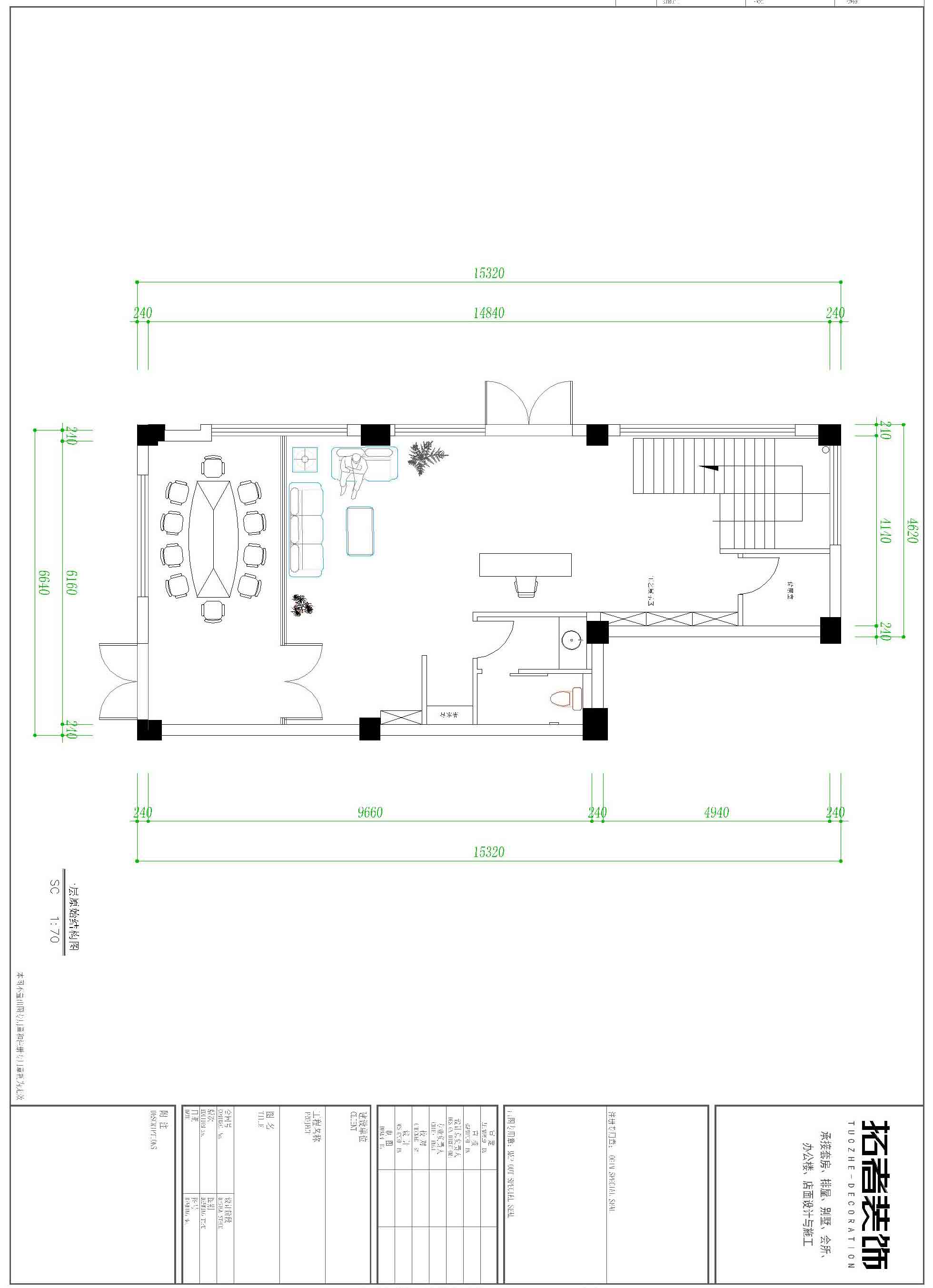
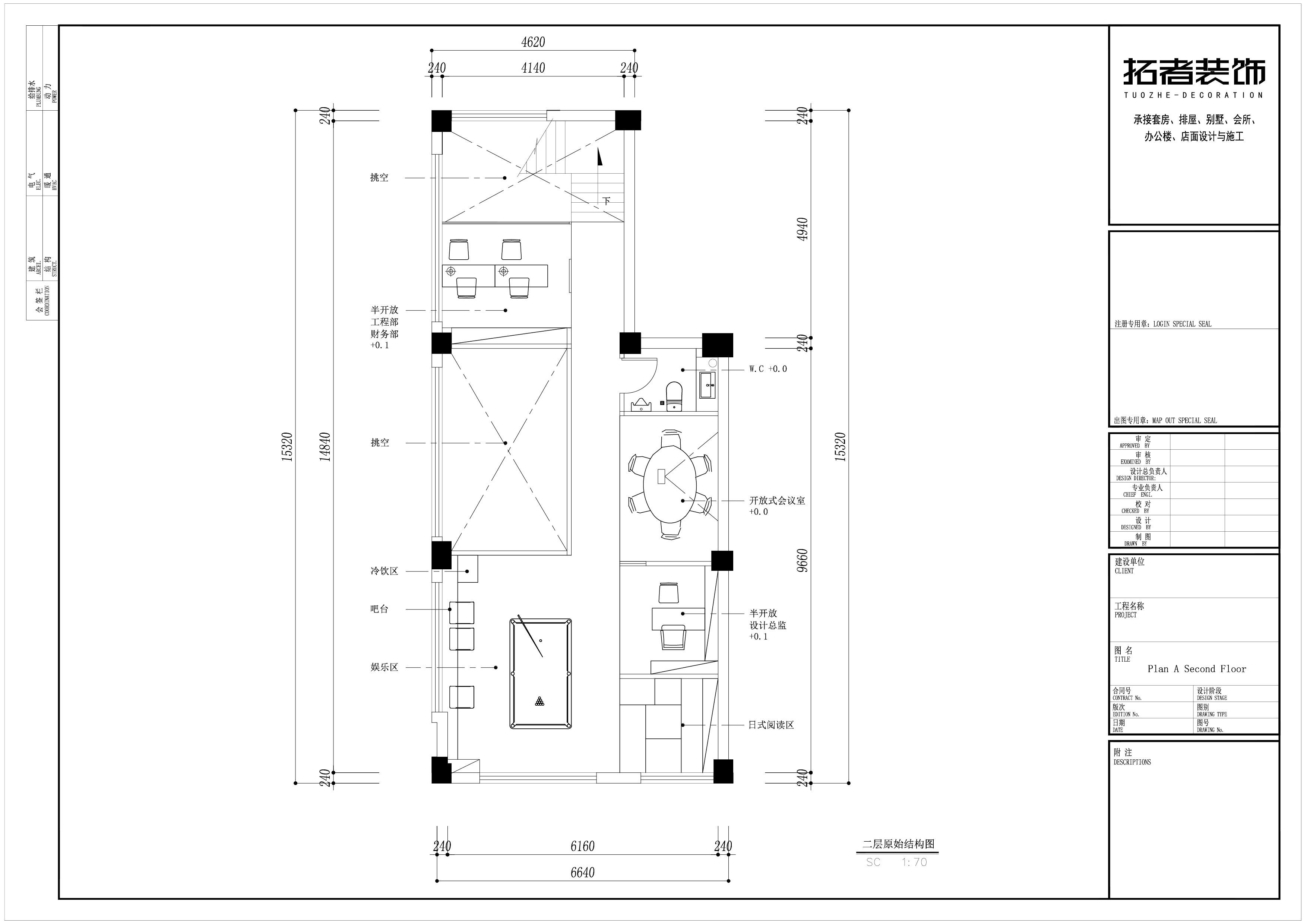
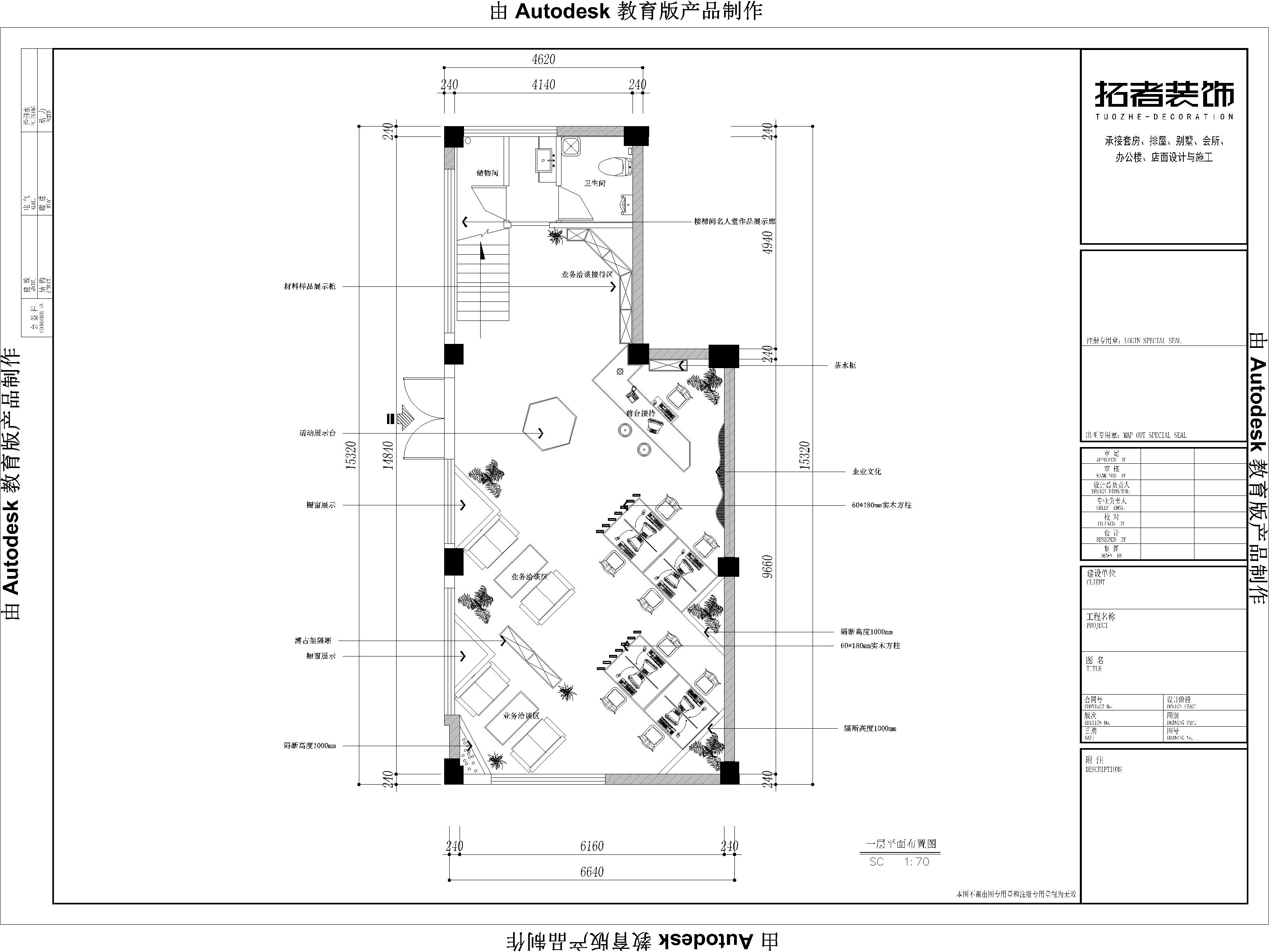
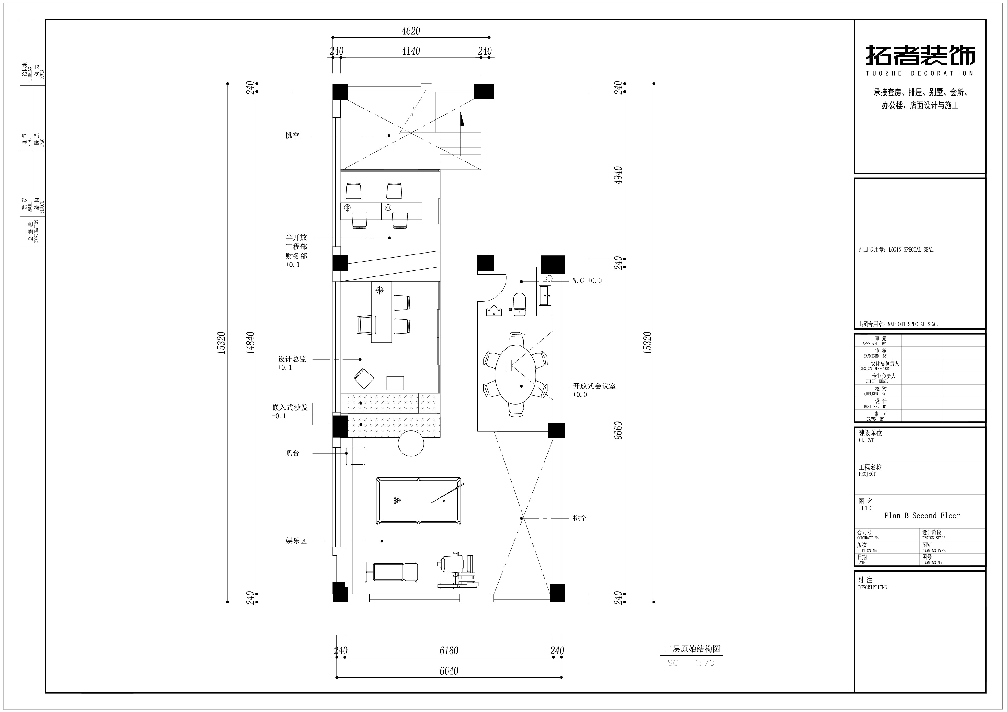
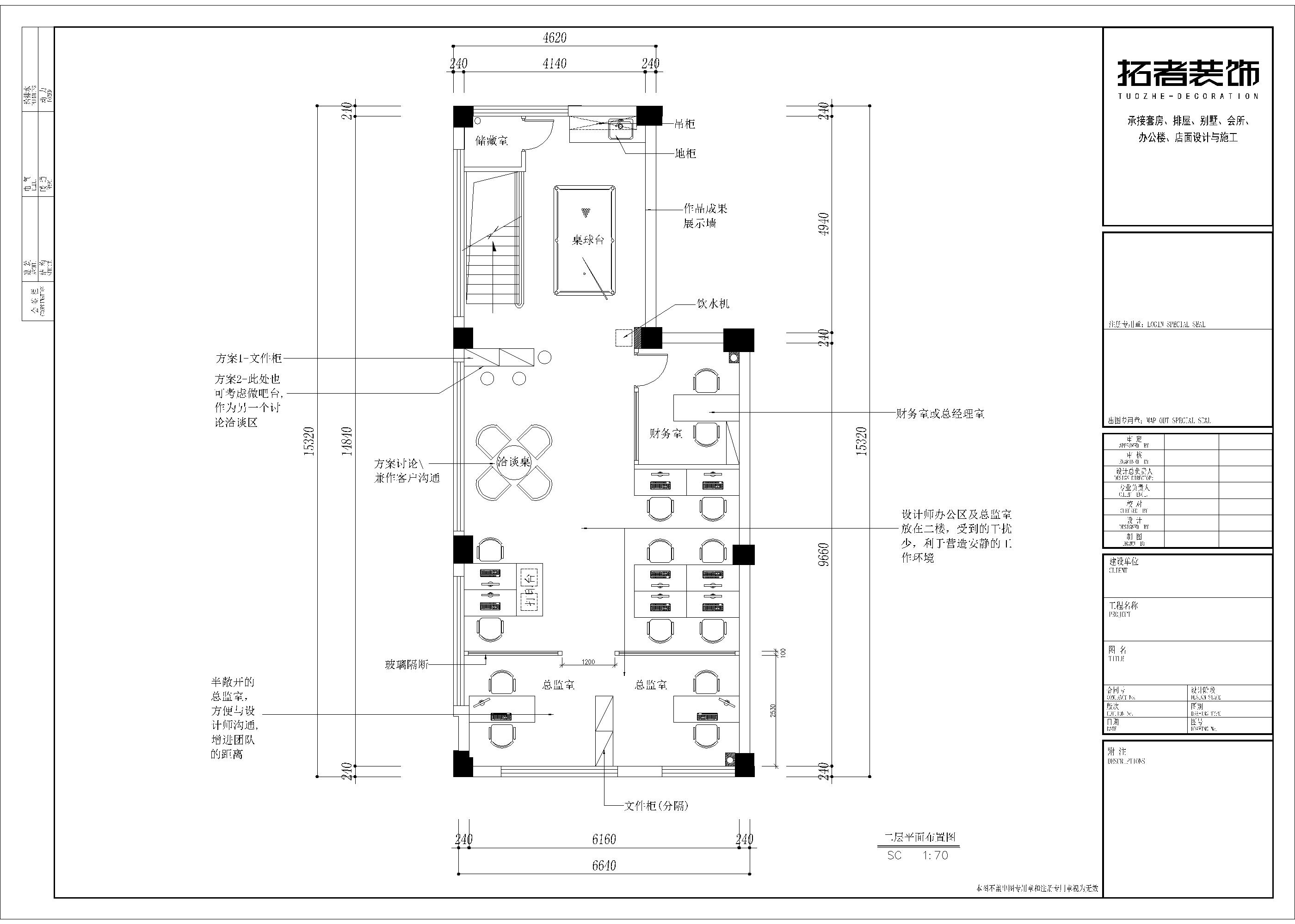
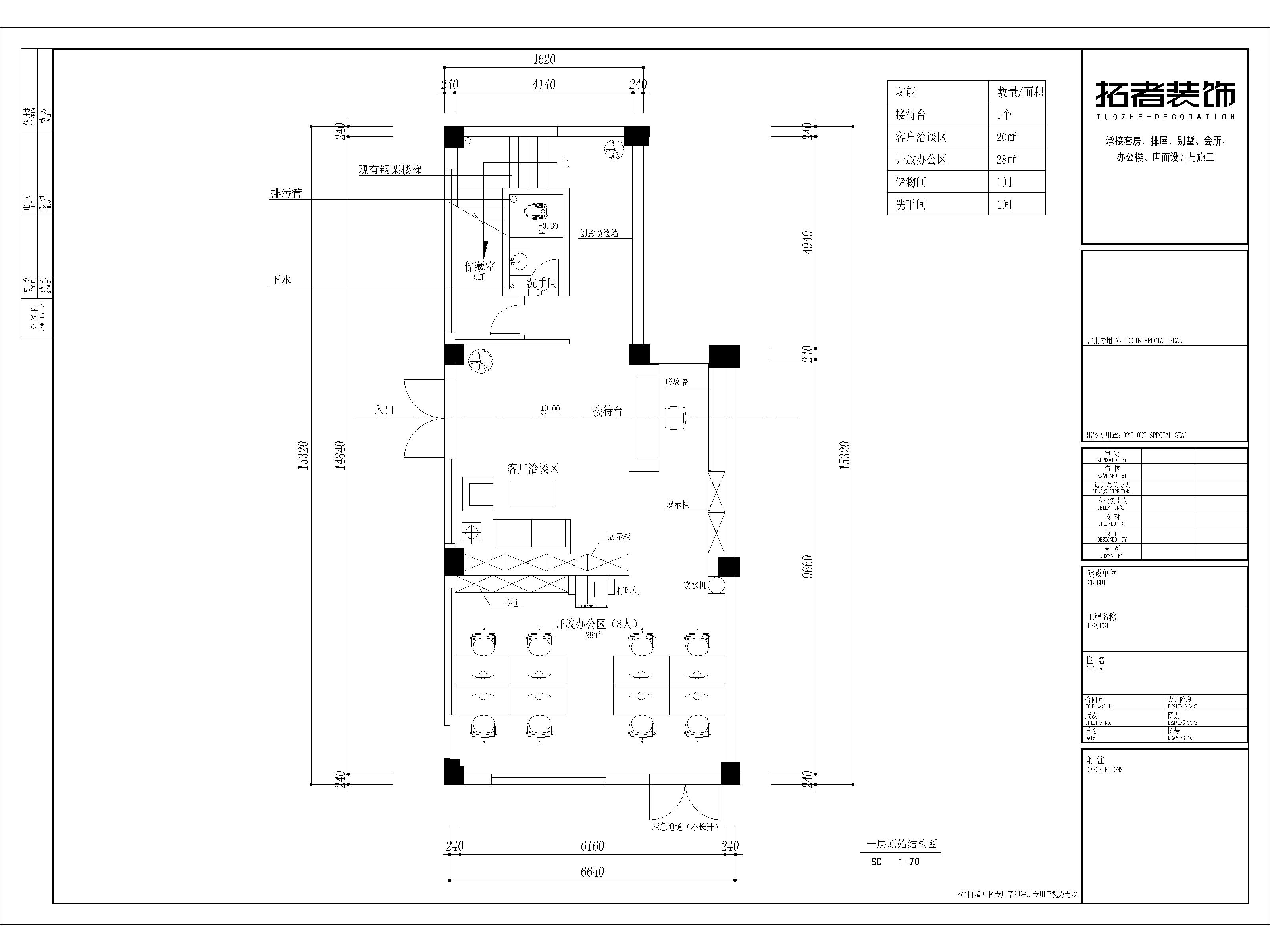
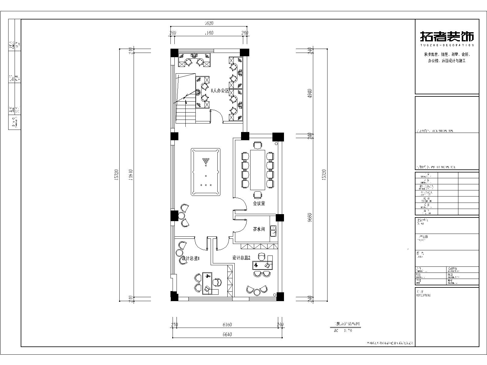
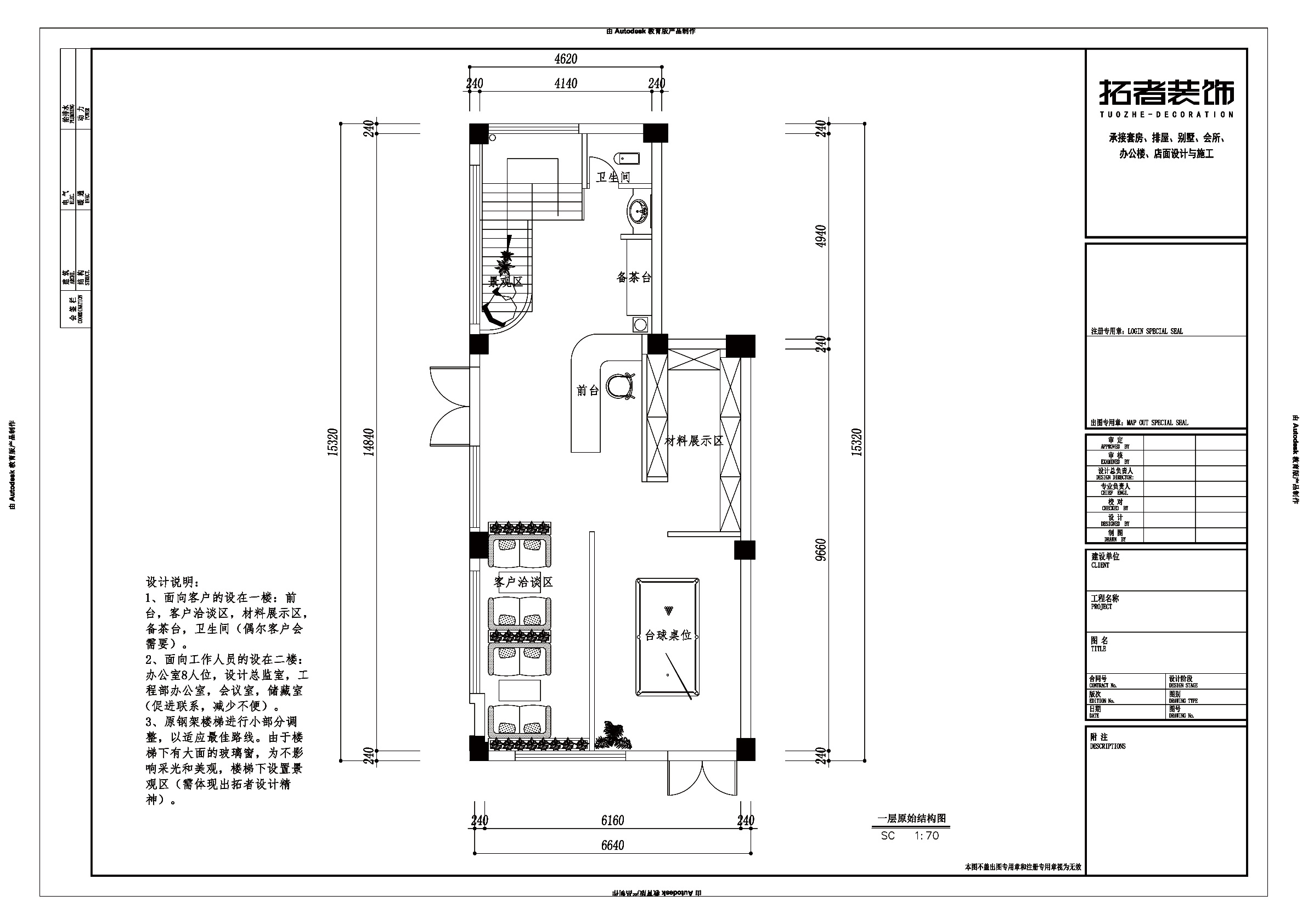
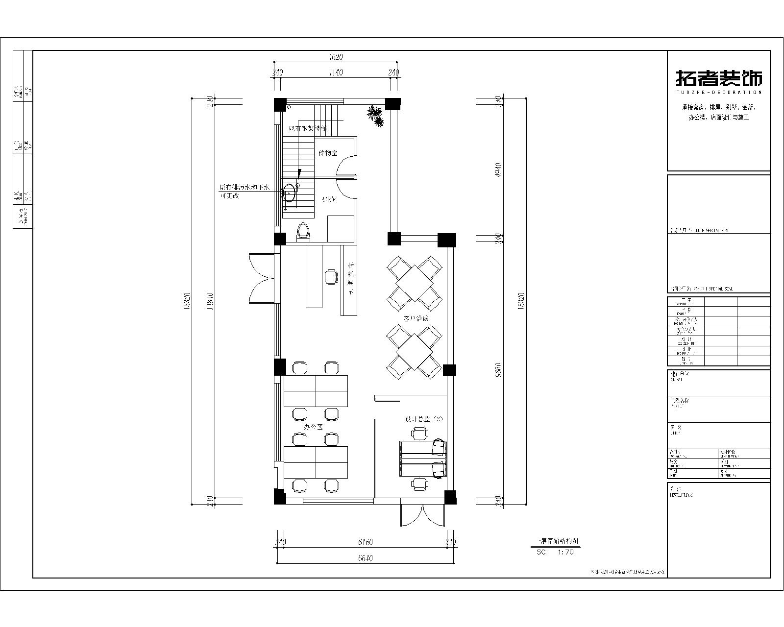
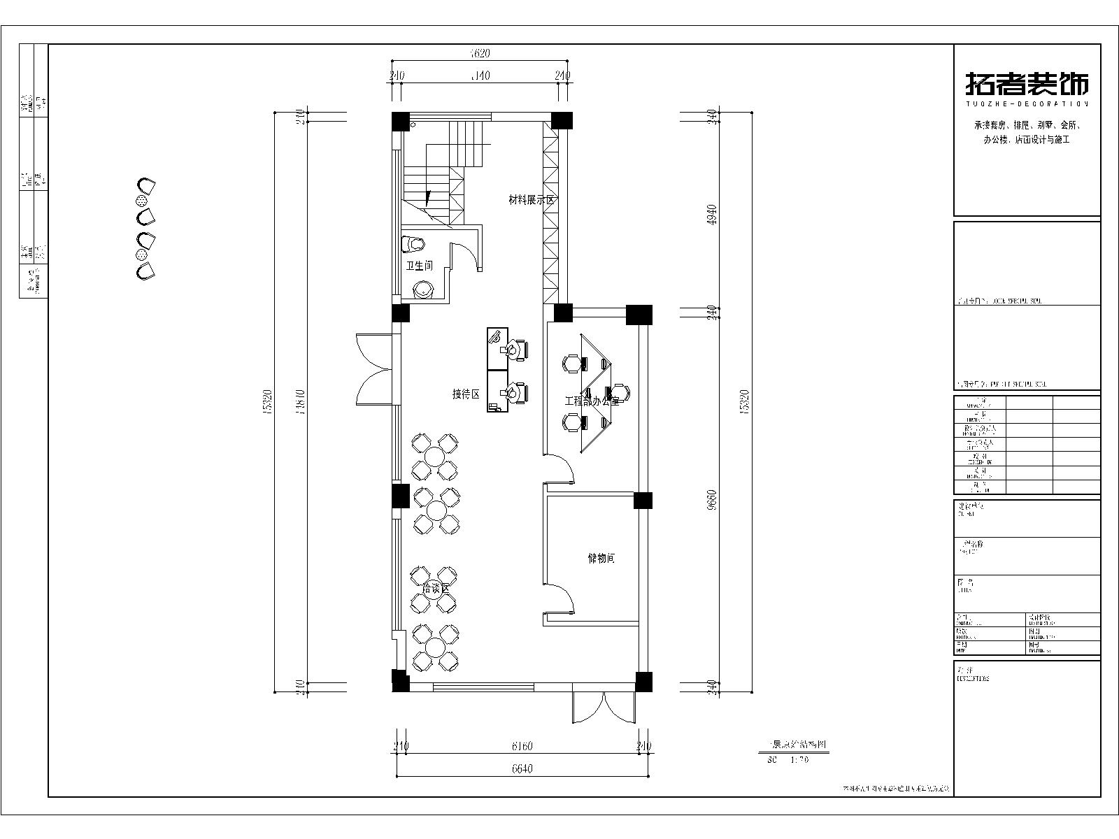
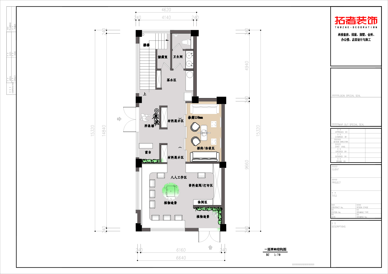
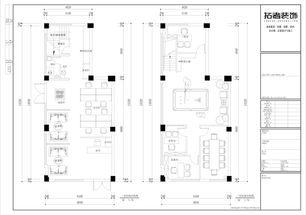
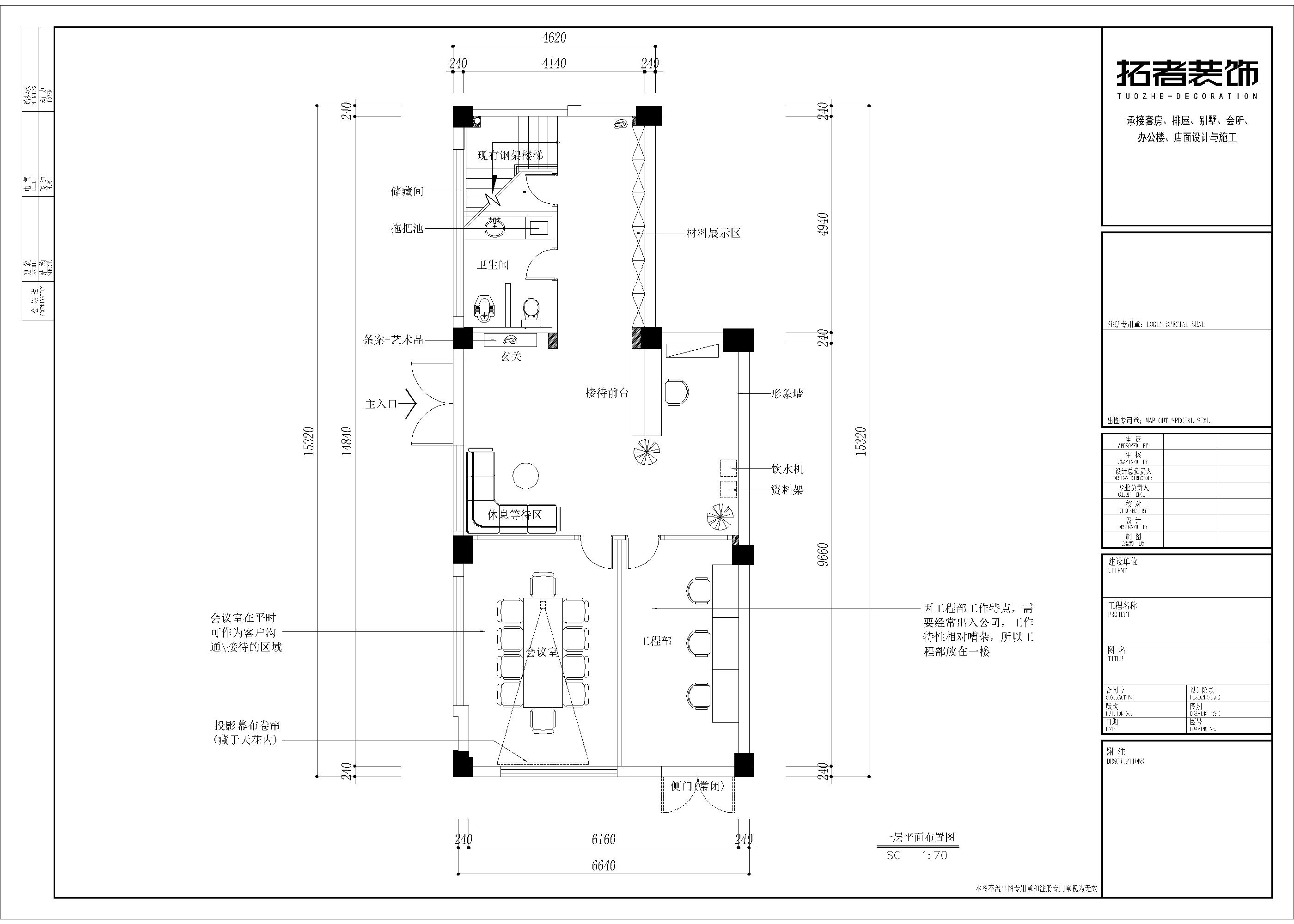
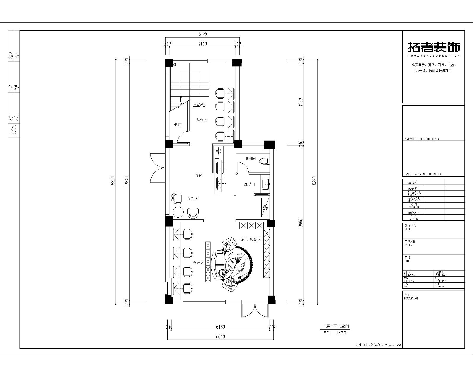
本次设计以顾客为上的设计理念。将洽谈区设置在一楼,隔壁为设计师和一个设计总监办公室,便于设计师和客户交流。便于总监解决一些设计师和客户遇到的疑难杂症!然后还将楼梯下设计了一个拓者设计文化端景区,端景区的对面是茶水区,还设置了一个吧台,坐吧台喝水的时候还可以看看端景区的景观,在水吧与厕所之间做了一个装饰隔断加以隔开。然后将楼梯的第一阶段的阶梯朝向换了个方向,更方便上下楼和更好地设计,厕所做了一个干湿分离的厕所。然后再二楼设置了材料展示区和第二个总监办公室还有工程部办公室和会议室和台球桌子,考虑到装饰材料的多样性和新装饰材料的更替性,所以把把材料展区做得比较大,然后还设置了最新材料的一个样品区。在二楼还设置一个总监办公室是因为,客户上来看材料时能通过总监更好的了解材料的价格以及材料属性方面的一些知识。可以更好的服务客户。而工程部 的办公室就在总监隔壁,所以也能配合好设计总监和设计师更好地为客户服务解答疑难。把储物间设置在那的原因是因为那里不是经常有人去,感觉有偏僻,所以就把储物区设置在了那里。
-
1
-
2
-
-
设计已成习惯 2015-11-6 12:06:19
本帖最后由 设计已成习惯 于 2015-11-7 11:45 编辑
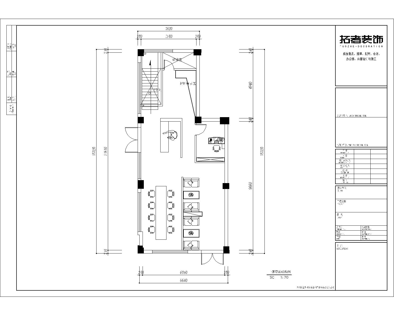
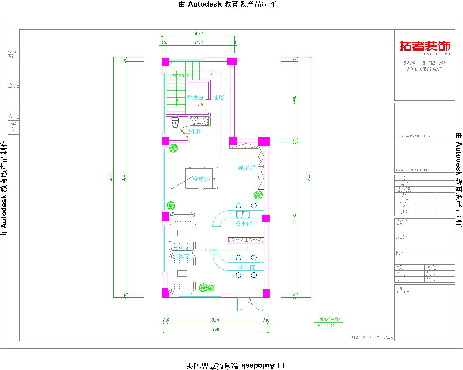
从几个亮点出发,来简略说明一下我的方案:1.进门处摆放了鱼池,有水有鱼,给人制造生动自然的第一感觉,而且大厅布置面积摆放的比例适中,够大气;
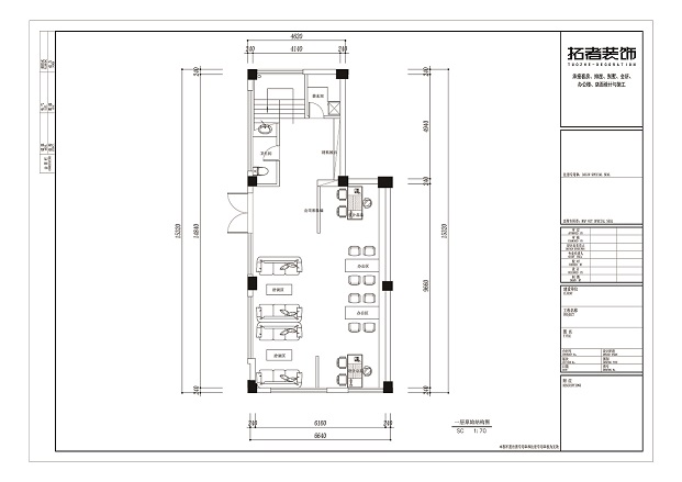
2.空间利用最大化,一楼功能区包括有:前台、大厅通道、10人办公区、茶水间、材料展示区、卫生间;
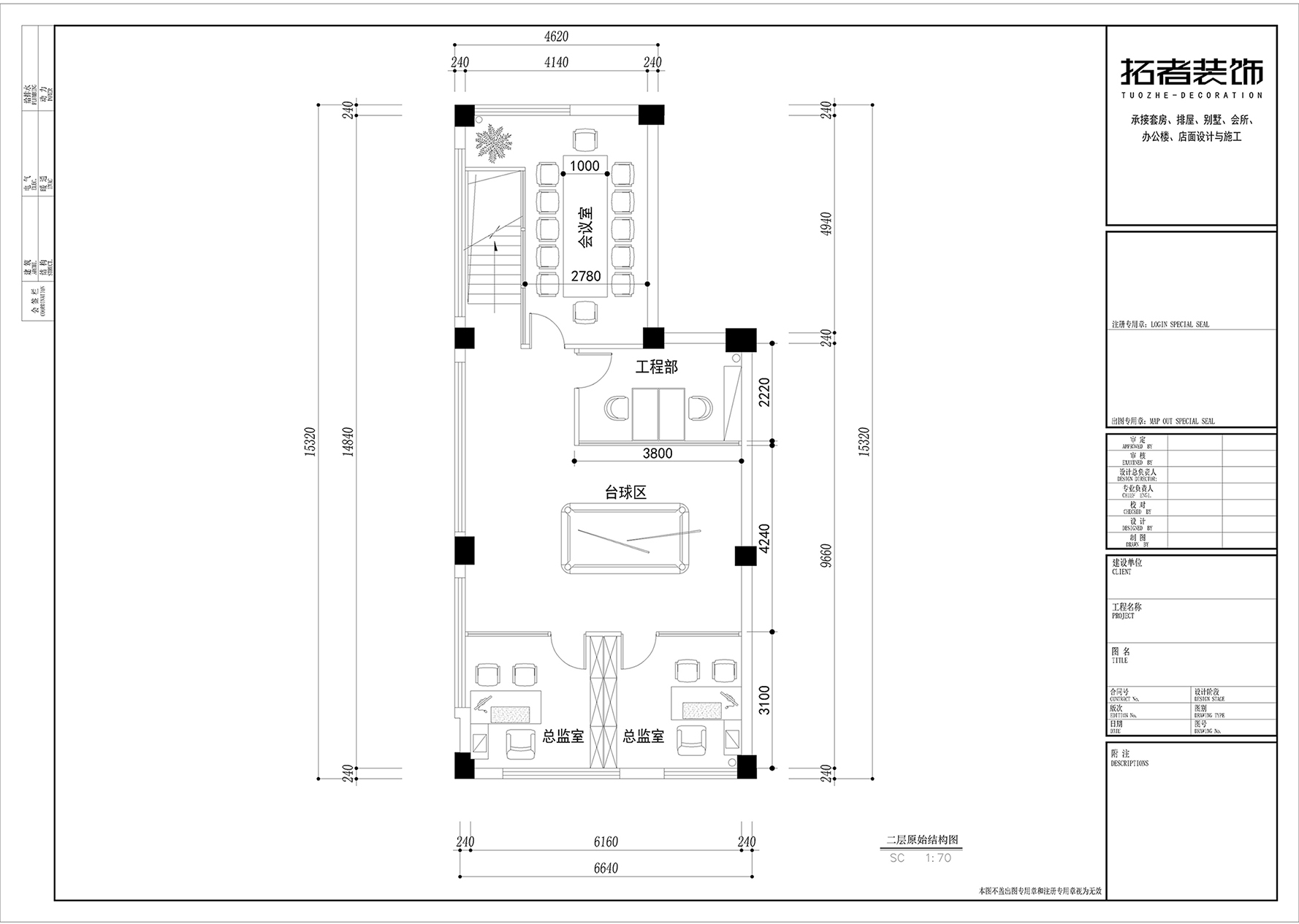
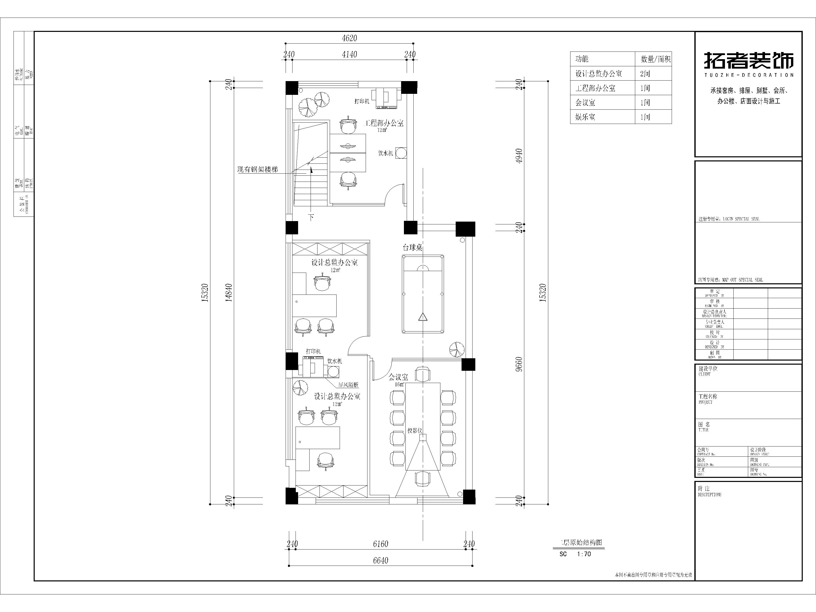
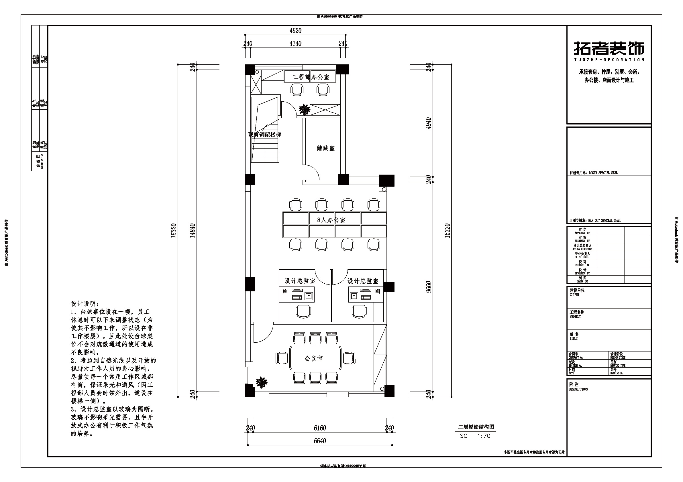
二楼功能区包括有:娱乐区、接待洽谈区、二位设计总监的办公室,约16m2的会议室、还有工程部。
3.利用楼梯间作为材料储物室,将空间尽可能不浪费;
4,动态流线舒畅;
5,基本功能区足以满足一个公司的运营。
重在参与,谢谢!若是有什么建议或者了解可以联系我,相互交流一下,最只要相互学习进步xiexie
-
-
香草蛋糕冰淇淋 2015-11-6 15:23:09
一层平面布置
二层平面布置
以下是造型示意图
以下是造型效果参考图
会议室吊顶参考
前台造型参考
装饰储物柜参考
局部吊顶参考
可旋转木门装饰参考
可旋转铁网装饰隔断参考
木方条吊饰装饰隔断参考
前台背景墙参考
竹子装饰隔断参考
设计说明:
本方案风格意向简约工业风,造型参考本人所在室内设计工作室装饰方案,这样的设计能让设计工作者在轻松的工作空间工作,整体工程造价不会很高,却能达到想要的效果,谢谢指导。典筑空间装饰QQ:578178393联系方式:18589989416设计师:植焱
以下是文件压缩包
绍兴拓者装饰新设计工作室平面布局大赛.rar
(656.97 KB, 下载次数: )
那么多图纸,真用心
-
逸清影 2015-11-6 16:21:51
12287406 发表于 2015-11-6 13:17
有些方案确实是.............,哎,不说了.........
大家重在参与,你很厉害你的贴出来看那看啊



我也来闹闹,求指教