|
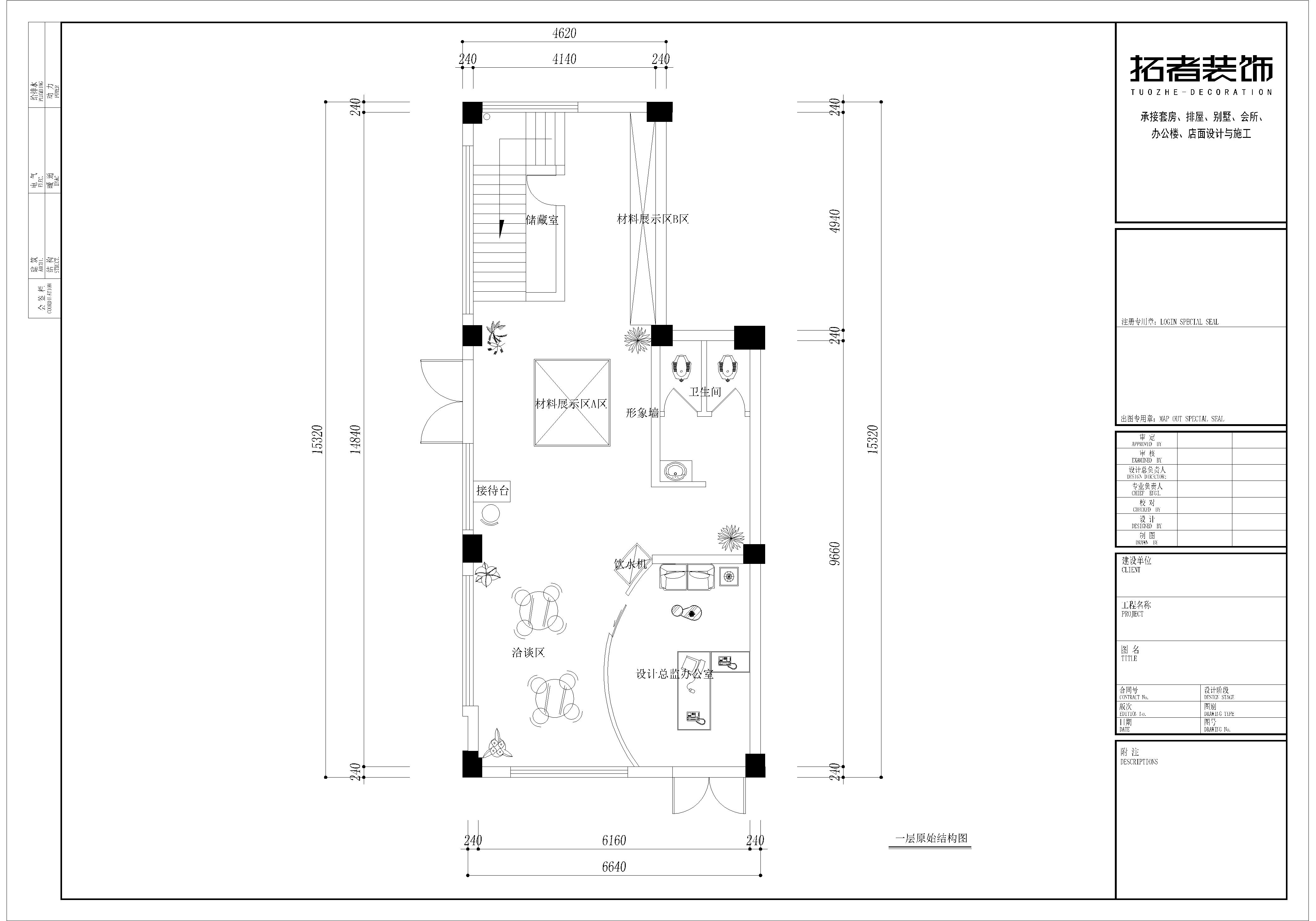
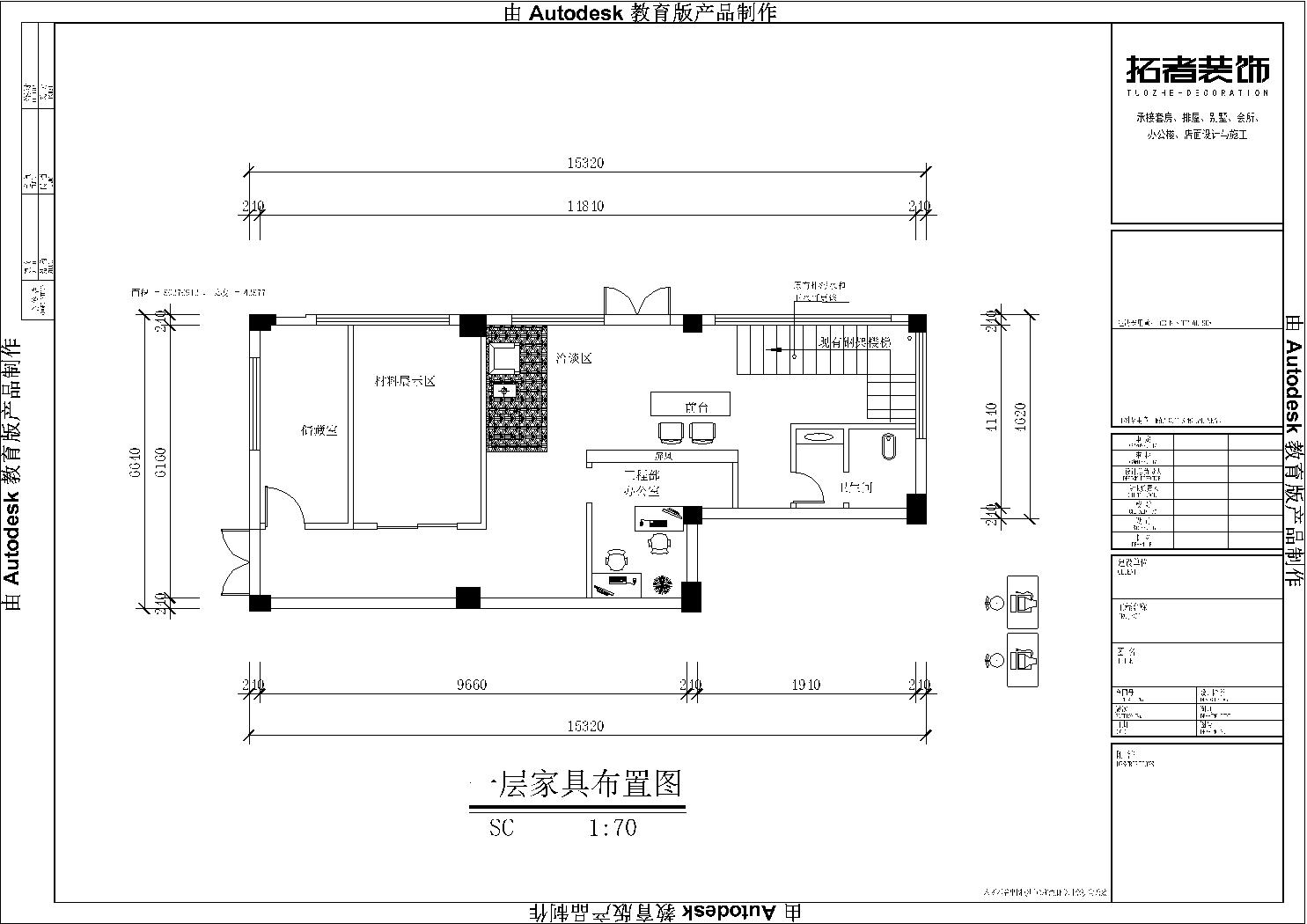
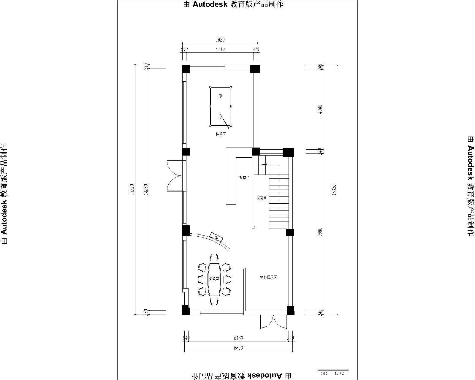
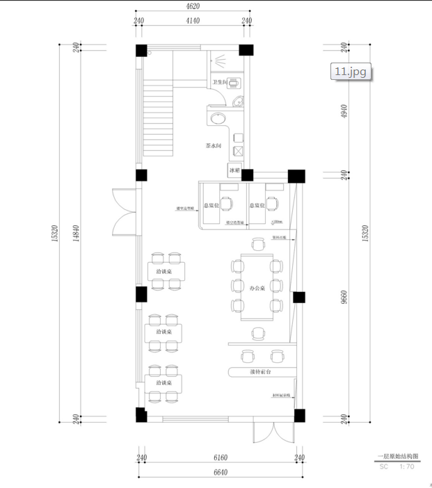
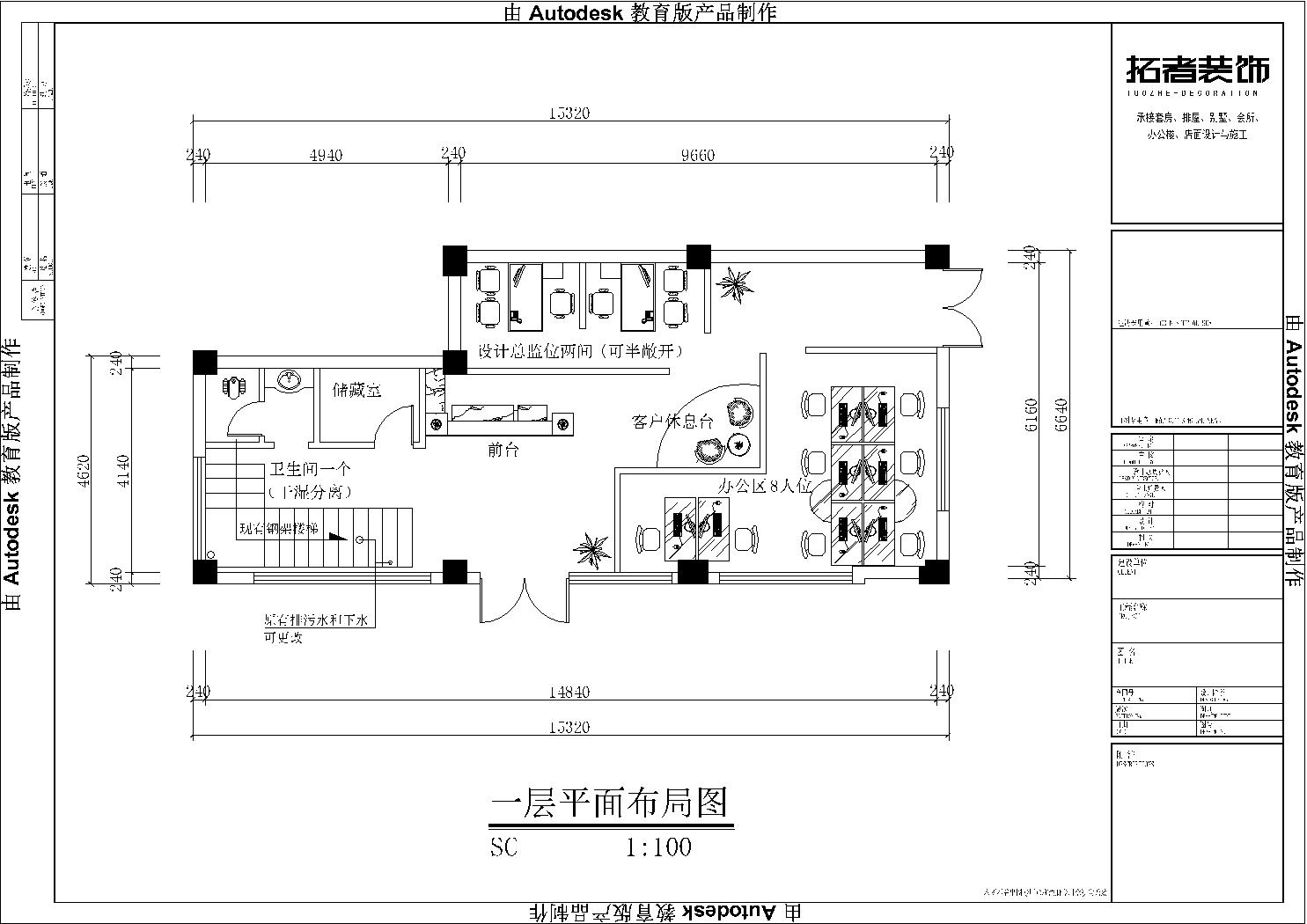
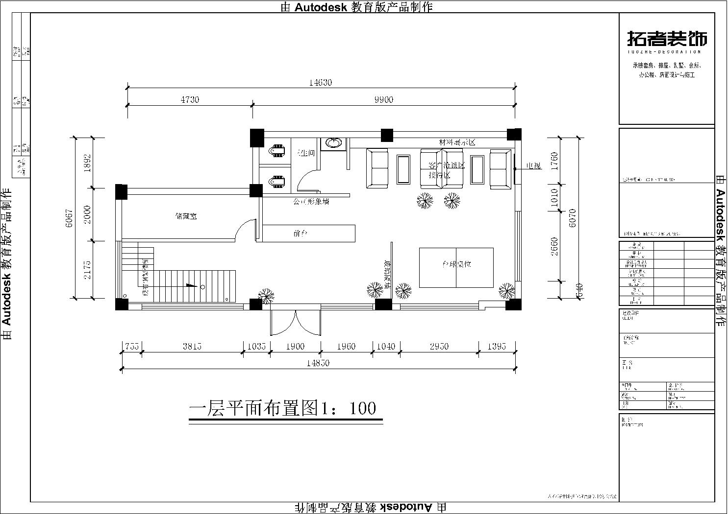
绍兴拓者装饰新设计工作室平面布局大赛,比赛周期为半个月(11.1-11.15日) 请拓者设计吧的朋友们踊跃参加 补充活动规则: 参与方法 直接回复本帖 附上 作品图即可参与,凡参与者奖励200金币! 最终在所有作品中 由绍兴拓者装的负责人 来选出10套优秀作品 进行投票! 最终以票数决定 名次和奖励!在此感谢 热心拓友的积极参与,只做平面布局即可! 一等奖1名:奖金1000元+拓者优秀作品集2015一本 二等奖1名:奖金500+拓者优秀作品集2015一本 三等奖3名:奖励拓者优秀作品集2015一本 凡参与者奖励200金币 为保持帖子的阅读性,未附加作品的回帖将删除! 设计需求: 1.办公区8人位 2.客户洽谈区/接待区 3.会议室 4.设计总监位两间(可半敞开) 5.材料展示区 6.工程部办公室 7.卫生间1个(干湿分离) 8.储藏室 9.台球桌位 10.(其他可自行补充) 注:排污和下水位置可移动,原楼梯位置不变。 一层平面图 一层平面
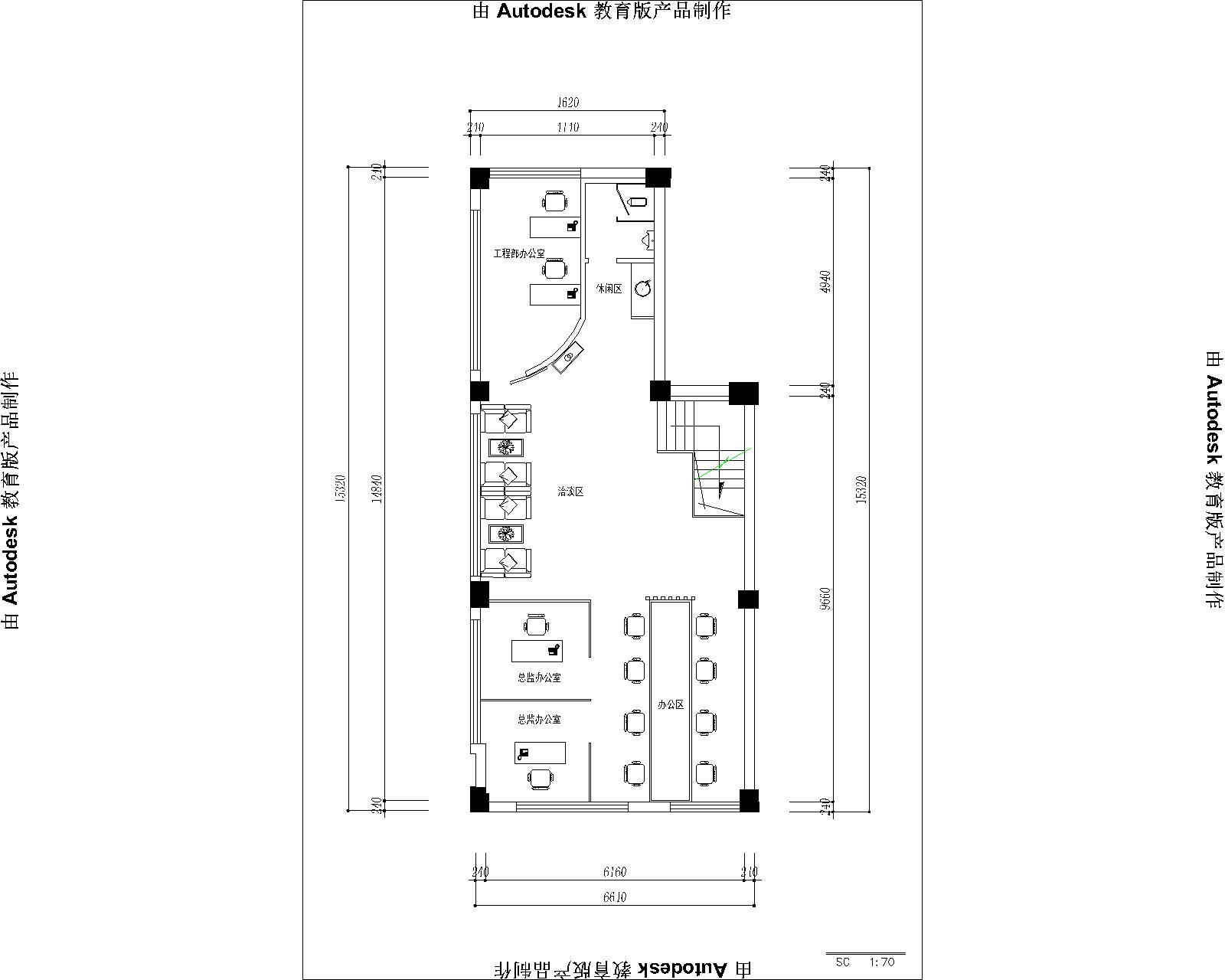
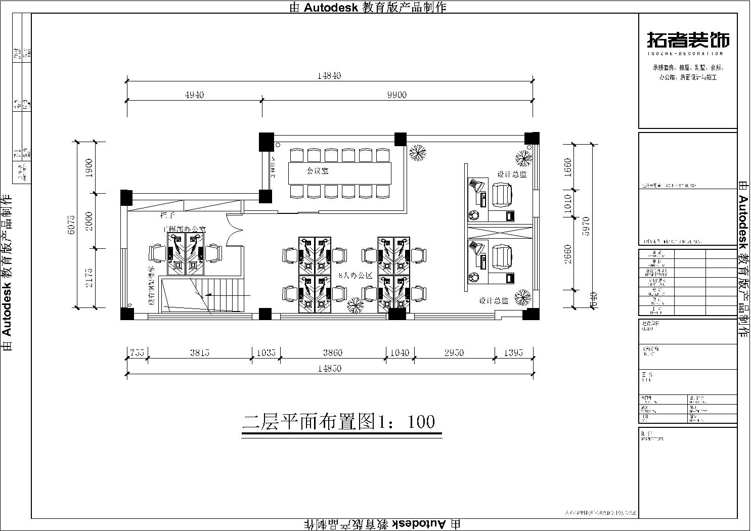
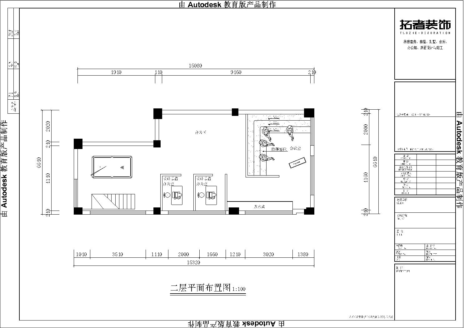
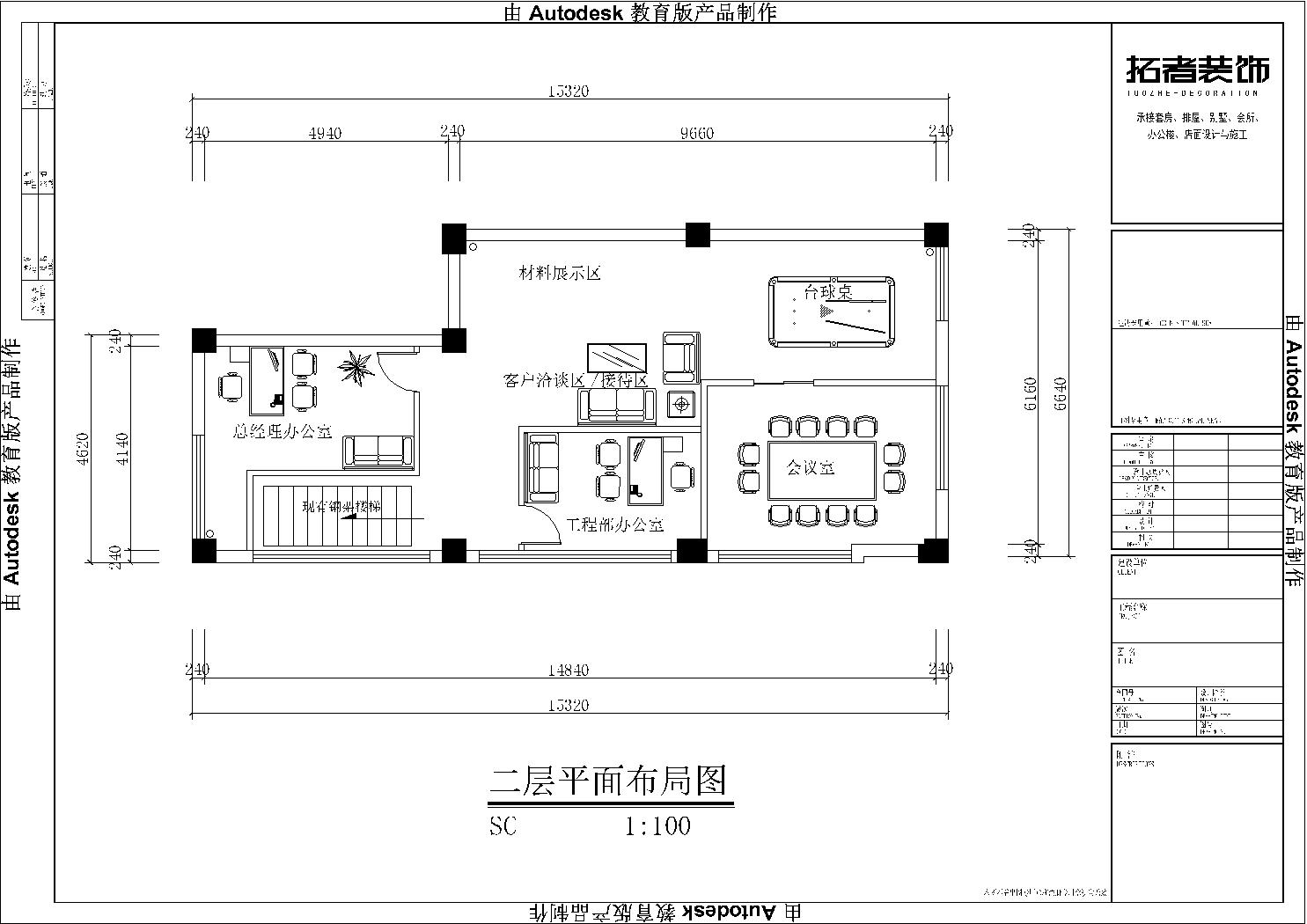
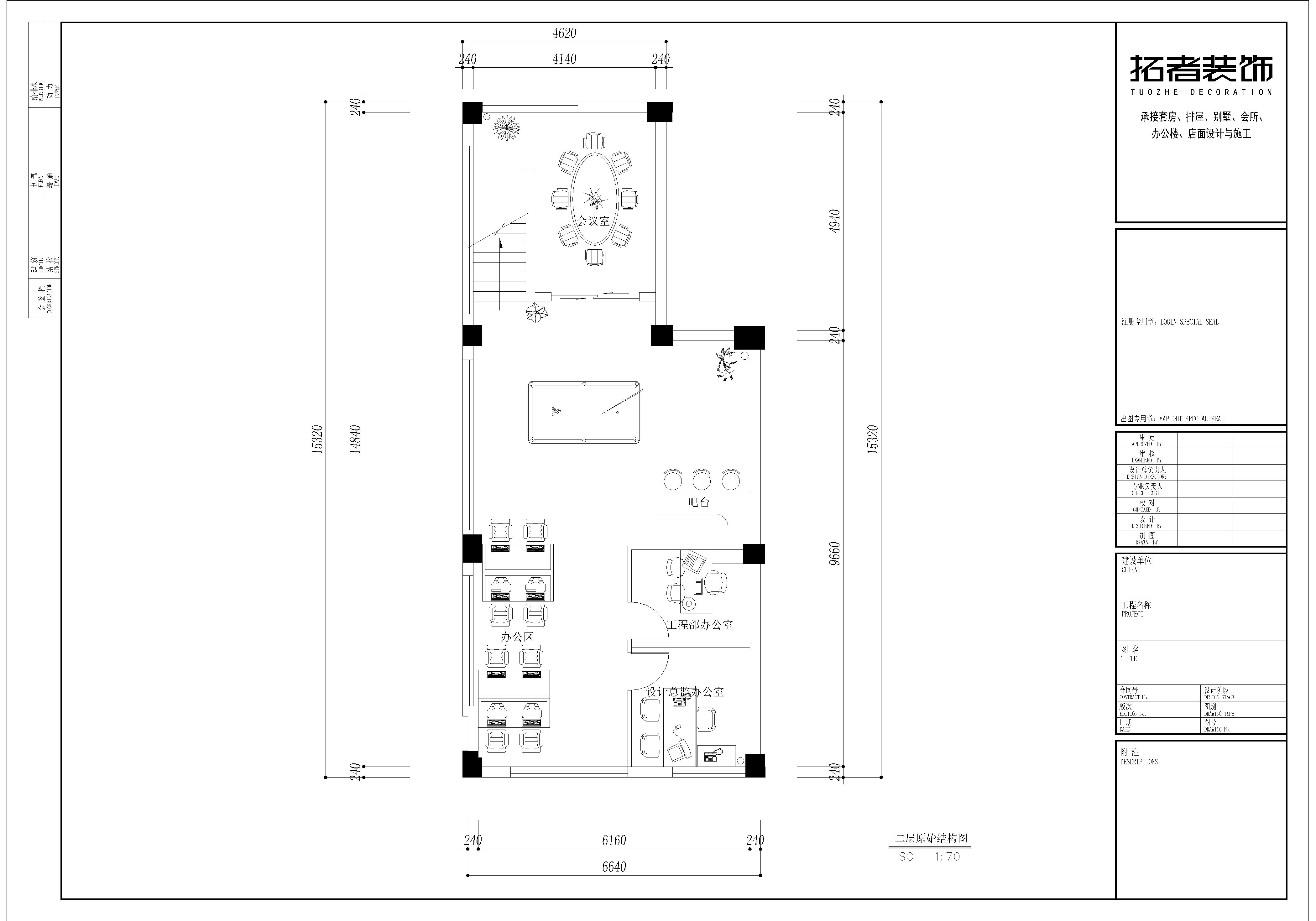
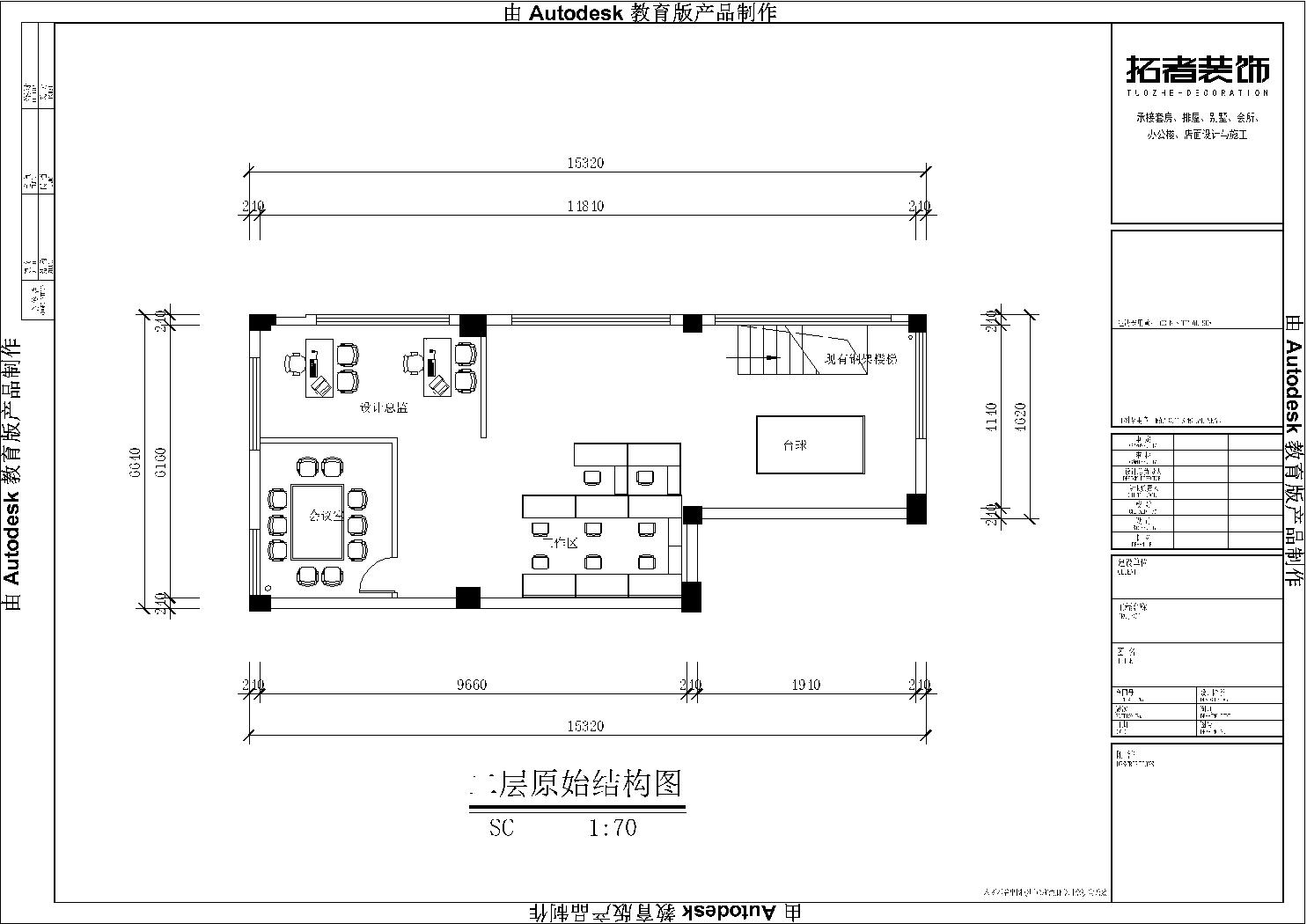
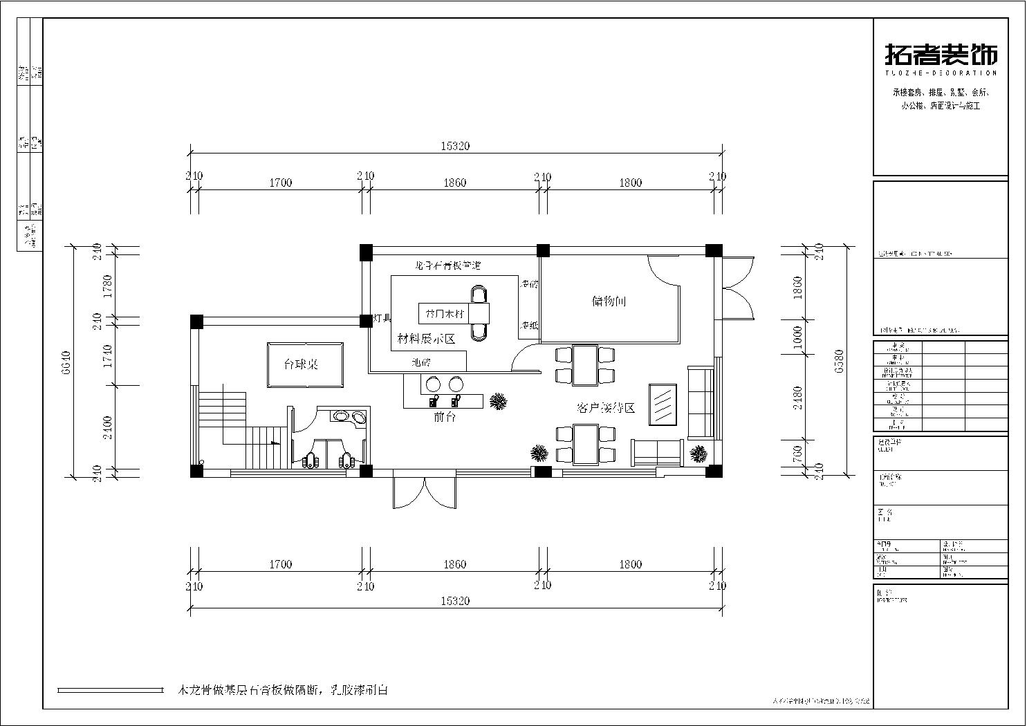
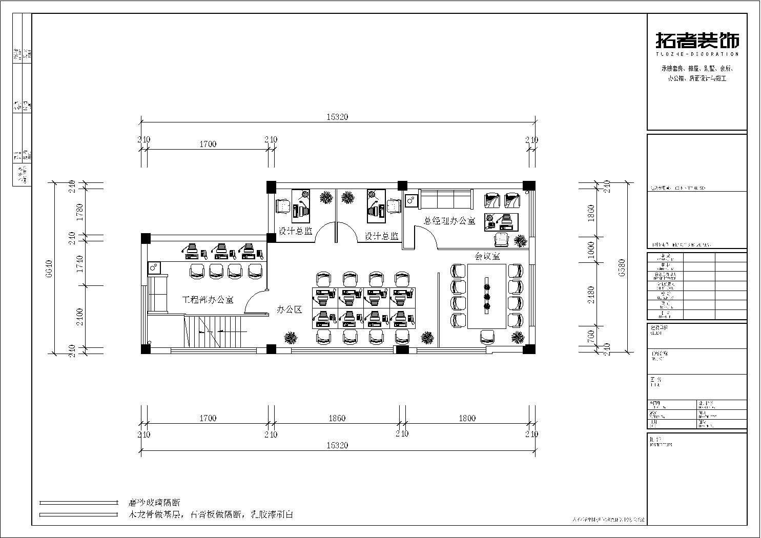
二层平面图 二层平面
CAD文件 下载
CAD文件.rar
(77.4 KB, 下载次数: 1937)
|
精华推荐
换一换
-
yuzhicheng 2015-11-2 11:13:59
shuashuaisonghuasonghuasonghuasonghuasonghuasonghuasonghuasonghua




wodingwodingwodingwodingwoding