-
克里斯坏男孩 2017-2-28 16:20:41
wo46611327 发表于 2017-2-28 15:16
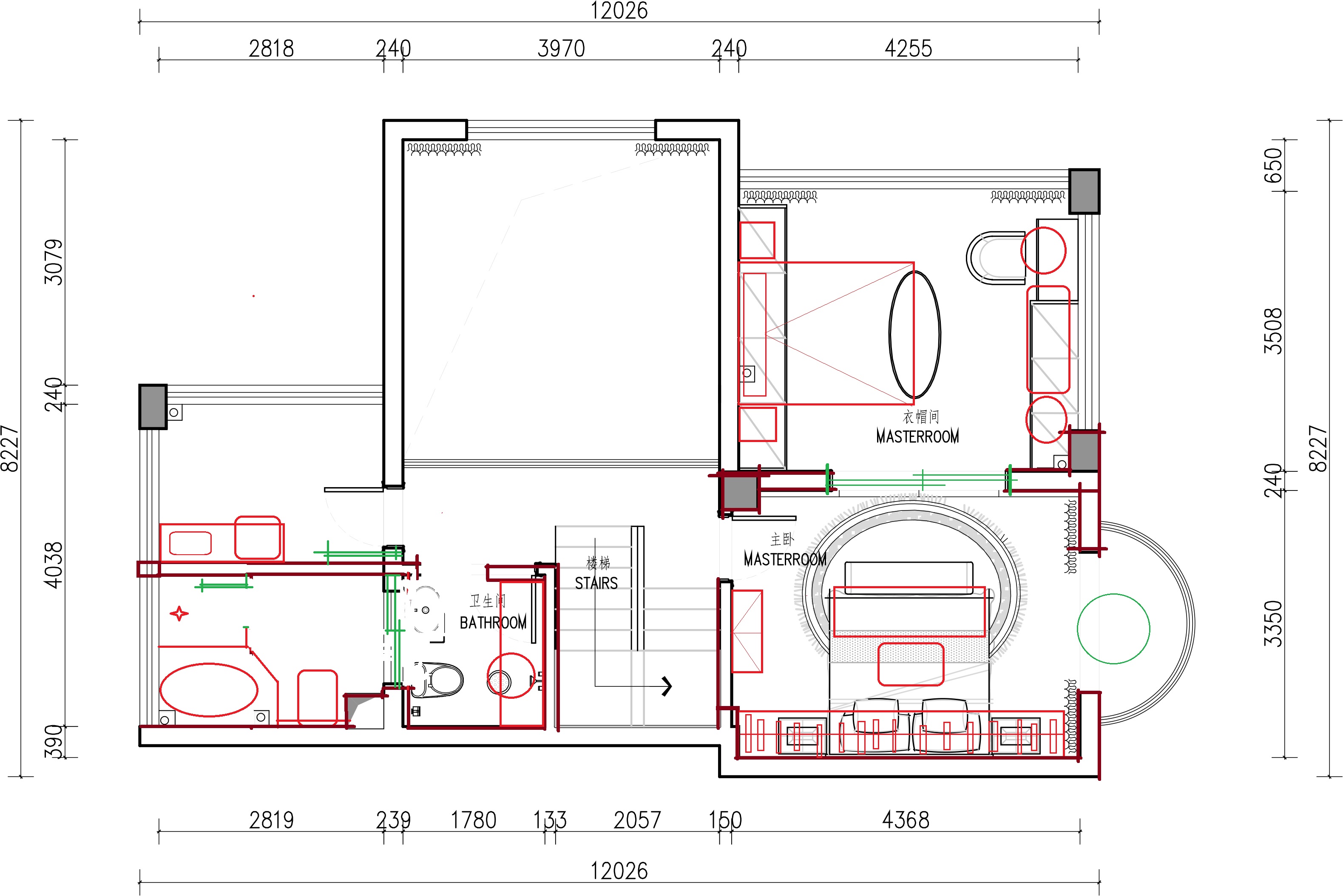
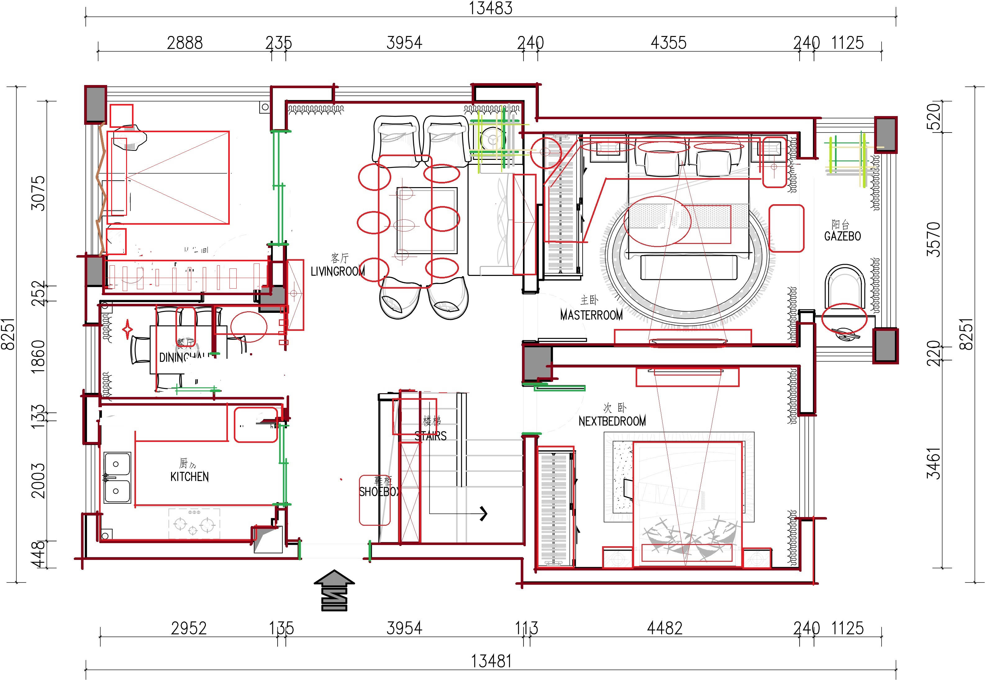
厕所一出来就是餐厅,没谁了
你来给我改个?别人提意见是对你好你不会做隐形门啊?卫生间往里缩,给餐厅腾出位置。你的餐桌位置距离也有问题,你自己做进去试试看能进去不,常识问题,还有厕所出来是餐厅,设计本来就有问题,还不虚心,
-
wo46611327 2017-3-2 18:51:03
克里斯坏男孩 发表于 2017-2-28 16:20
你来给我改个?
把厕所改到楼梯间,压缩旁边的侧卧空间,把你那个厕所变成客厅,再打通客厅
-
克里斯坏男孩 2017-3-13 15:20:21
stao321 发表于 2017-3-1 14:10
把鞋柜撤了,改在楼梯的下面,看你的楼梯14级,层高2.8 的够了,楼梯转角的下面改成个800*2000的储藏室,就 ...

-
克里斯坏男孩 2017-3-13 15:21:21
stao321 发表于 2017-3-1 14:10
把鞋柜撤了,改在楼梯的下面,看你的楼梯14级,层高2.8 的够了,楼梯转角的下面改成个800*2000的储藏室,就 ...
想法不错







表示一楼的卫生间也太大了