(王一户型改造第2期)450平大平层异形户型方案分享!

2021-8-20/ 户型方案/ 精品方案/ 只看大图 阅读模式
仅供分享不做任何商业用途,版权归原作者所有,谢谢配合。

马上注册,结交更多好友,享用更多功能,让你轻松玩转社区。

您需要 登录 才可以下载或查看,没有帐号?注册

x
本帖最后由 流浪的军刀 于 2021-8-20 21:00 编辑


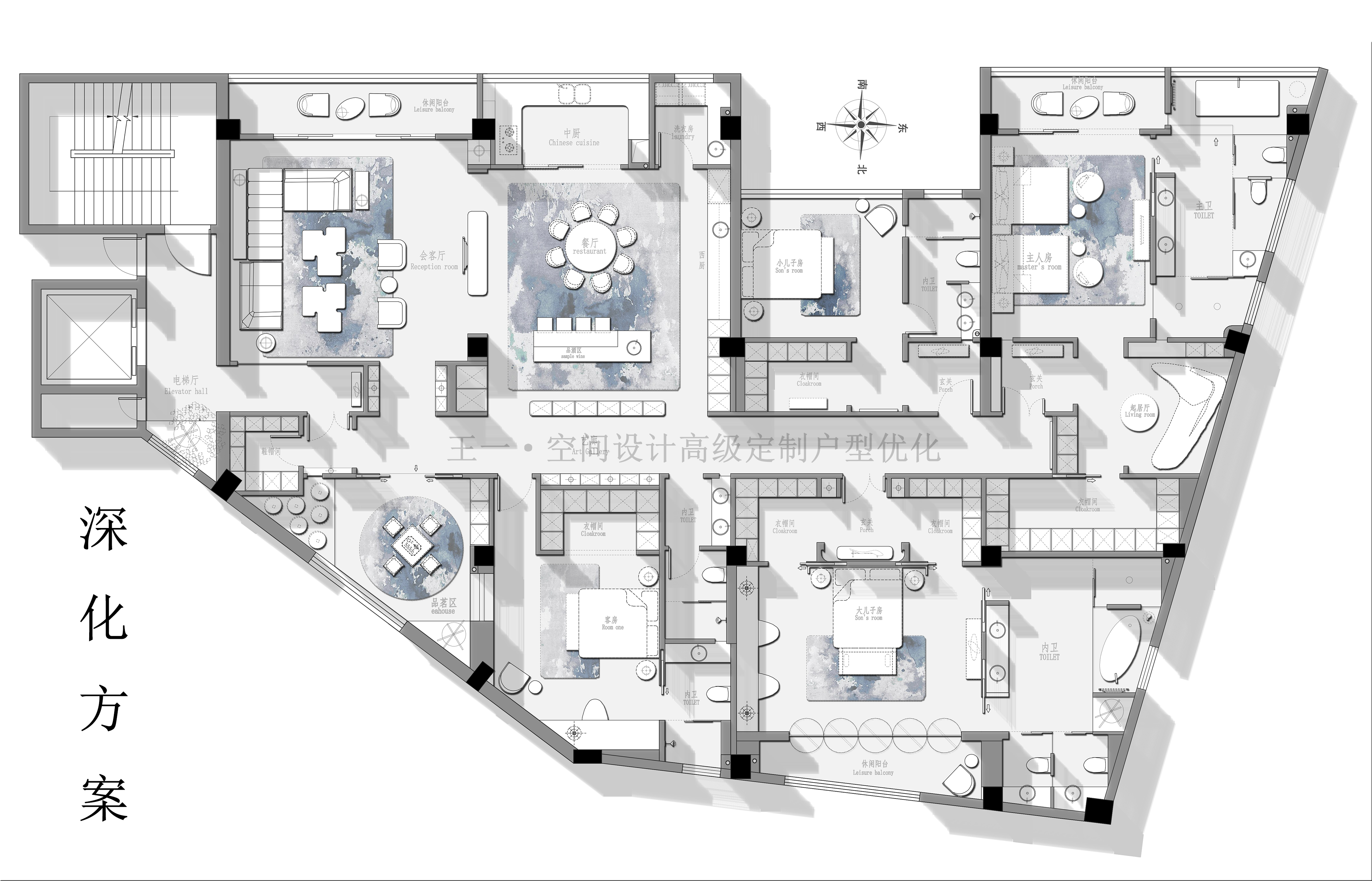
深化1-Model.jpg

QQ图片20210414153932.jpg


000.jpg


客户需求
项目背景:
项目户型为自建房框架结构
项目位于广东某风景优美地区(有山有水,可观日起日落)
项目户型位于顶层南向大平层,楼体共12层,单元门进户。
入户门位置可在范围内进行微调,南向客厅阳台不可封闭。


客户信息:
常驻人口4人
男业主:广东人,50多岁,平时喜欢喝茶。
女业主:广东人,50多岁,家庭主妇。
大儿子:目前在国外生活,准备归国发展。
小儿子:大学在读生,日常少在家,假期才回家居住。

客户需求:
需要一间客房,可带套间,可不带套间。
男业主要求必须有一个可以喝茶的休闲区。



深化1-Model.jpg

 

精华推荐
换一换

发表评论3

  • 四日无忧 2021-8-25 17:06:58

    这个大儿子房是不是有点夸张了。。。
    另外小儿子不会有意见吗?

(王一户型改造第2期)450平大平层异形户型方案分享!
拓者推荐
  • 明星杨采钰的家丨召禾设计
  • 洣图设计 | 国锐白玉茗艺墅!
  • 收纳设计【直播 1月29-31日】
  • 璞辉设计 | 重塑家的软装哲学
  • 柒筑设计|265㎡瓯江之畔
  • 无间-上海汤臣君品合院方案
  • 君品-汤臣金桥花园项目方案
  • 召禾设计-顶级私人豪宅方案
  • HWCD-苏州吴中区280合院
  • 召禾设计-绿城潮鸣东方
  • 2025拓者年费+案例Vip会员说明!
  • 【 拓者年费--CAD图纸】
  • 【 拓者年费--户型方案】
  • 【 拓者年费--豪宅视频】
  • 【 拓者年费--灵感图库】