原始结构图 ▼
改造后的方案一 ▼
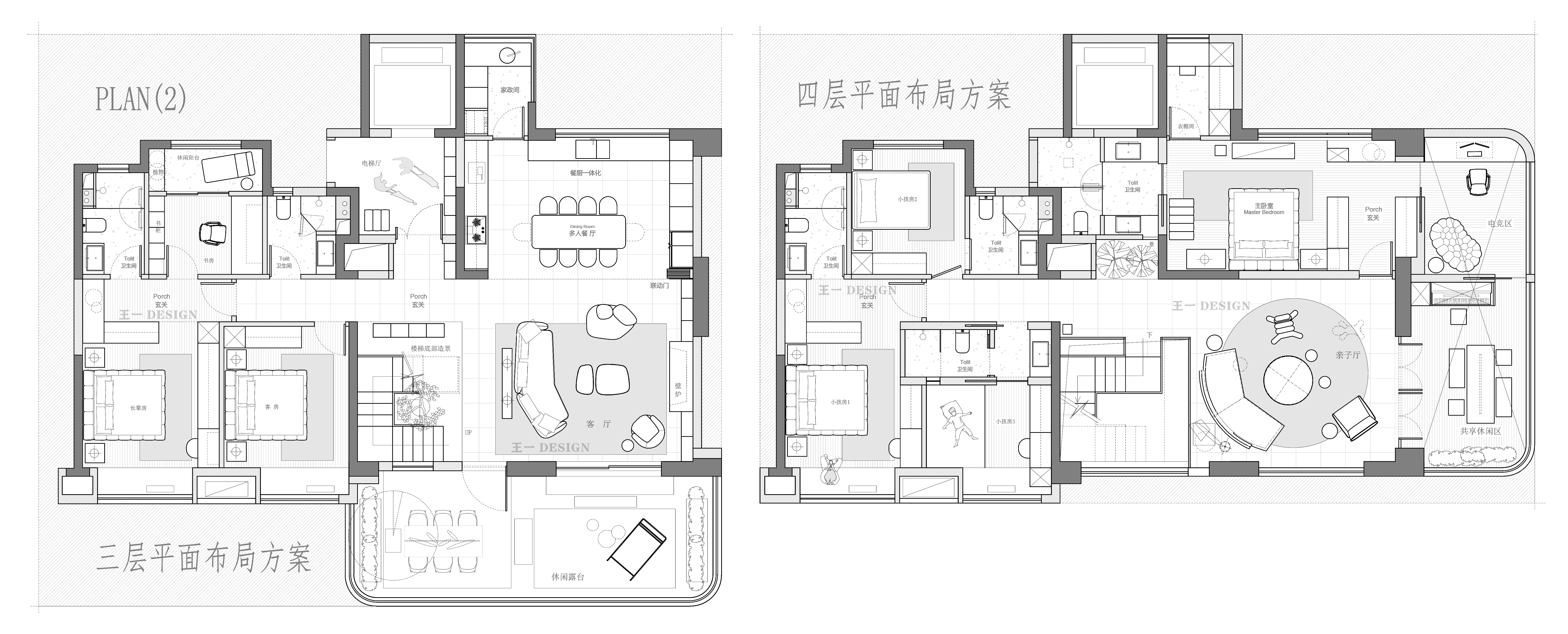
改造后的方案二 ▼
有温度的设计,遇见有爱的人! 对本案感兴趣的小伙伴们可以进我主页,关注微信公众号,有本案深度解析文章! 本文以及方案均为王一原创 禁止转载 分享至其他平台 无偿带徒计划已启动(纯公益),只要你认真好学我带你飞! |
精华推荐
换一换
-
王一户型优化 2026-3-3 11:50:24
回复举报



发表评论2