首页推荐
编辑精选
评论最多
查看最多
設計徒 |学习交流群 方案交流 2
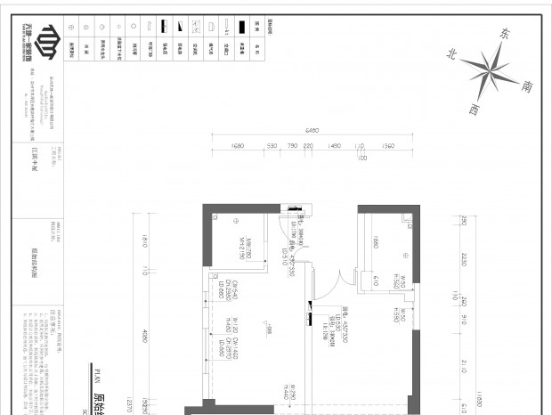
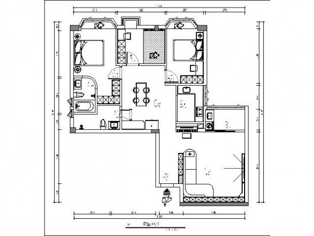
求大神改进下户型
一进门就是厨房 怎么做鞋柜好看
各位大神看一下有什么需要优化的
求大神给点意见,本人小设计师 这是自己房子 完全没有想法
有大神帮忙看看吗。。。
感觉思路打不开了,望有大神能指教点新思路
成都某小区一个方案分享给大家请大家多多指教
一户自建别墅,大主卧,大神帮忙来看看
大神们帮忙看看有什么好的建议
求助 求助 求助
求大神指点别墅布局
【求助贴】110平三房,求助布局问题
求大神分析户型怎么改
户型悬赏:超大面积主卧改套房方案! 求助平面改造大神
求大神看下,比较纠结,自己做的两个方案都达不到自己的期望,看下有没有更好的思路
求大神看下,有点纠结,既不想破坏电视背景,又想空间能最大化的利用起来
小白的提升路还需各位多多提意见,多多补充不足,我会在下次作品改进
一个被风水师限定的户型优化,请各位大神帮忙
求大神帮忙户型优化,谢谢
该给自己设计反而没有灵感了 有点不知所措
有木有好的想法大家一起方案学习
求大神帮忙看看 这个户型怎么优化好
87平两室两厅小户型改造,求大师布局!!!两面墙可以拆,有什么好建议吗?
入户玄关怎么设计,大胆创新
biao 记录365个户型优化案例分享 第九个 (每天更新)
設計徒 |学习交流群 方案交流⒈
户型优化
自家方案久久没能敲定、集思广益、
求大神优化下客厅
感觉太平常了,求大神创意!!
大神在哪里!!!!!三房改四房,没有一个空间是方正滴,等您来挑战哦!!!!!!
这种户型恕在下脑子不好使,求大神解救
新立设计工作室,自己做了个布局不是很满意,求大神不吝赐教。
江阴海岸城商业综合体设计赏析
青影餐厅 | 清新淡雅的主题餐厅 | 杭州品尚设计
练习摆放第3个: 把厨房餐厅进门这一块处理好一点
大家好,第二次发户型图,我自己家的,我想知道攒不住钱。和风水财位是不是有关系....
练习摆放第1个:两房改三房,要求客厅必须在靠阳台位置。不用考虑承重
biao 记录365个户型优化案例分享 第八个 (每天更新)
大脑一片空白,没有好的思路
求大神方案!回复66
两位退休老师的户型优化
求求各位大神帮看看有什么更好的优化方案
求大神来一个,悬赏!!!
3dmax渲染错误
求大神最佳方案
設計徒 |学习交流群 欢迎設計师加入
方案怎么做都不出彩,求大神指点
户型优化,在线急求。
biao 记录365个户型优化案例分享 第七个 (每天更新)
家居平面设计改造,多多交流.
学习交流
求大神 改图
求助大神 需要一个个性亮点的布置
求大神相助!
大神求救
俱舍茶集III TEA SHOP
爆改三房两卫
两厅三房三卫 一书房
如何改成3房 夫妻 两个小孩 不考虑承重结构
求大神帮忙 看下 实在想不到好的方案了
biao 记录365个户型优化案例分享 第六个 (每天更新)
谁能帮我优化一下布局呀.学习学习.谢谢大神们
想不出一个好的方案,小白一个,大佬给点口头指点好不好
一个自建房的方案,希望大神评价评价!!!
求一个更合适的布局方案
求个瑜伽室的方案,急急急
请教一下如何弱化这个客厅柱子的存在感?
难搞的小户型
一楼小院子
久度设计|广东茂名爱群营销中心
刚需户型,还是冰箱跟鞋柜位置,求大神指教?
在线等 急
平面布局 望大神帮忙做下更合理的规划
刚需房,做新中式。有老人孩子。酒柜跟冰箱不知道怎么规划?求大神指教
餐饮空间大神来给点参考意见呗
新手小白求助,请路过的大神指点下
有要求的客户,方案户型求优化
406158
工作日:早9点--晚5点
客服QQ微信:406158
关注拓者设计吧让设计更有范