首页推荐
编辑精选
评论最多
查看最多
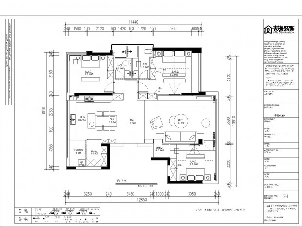
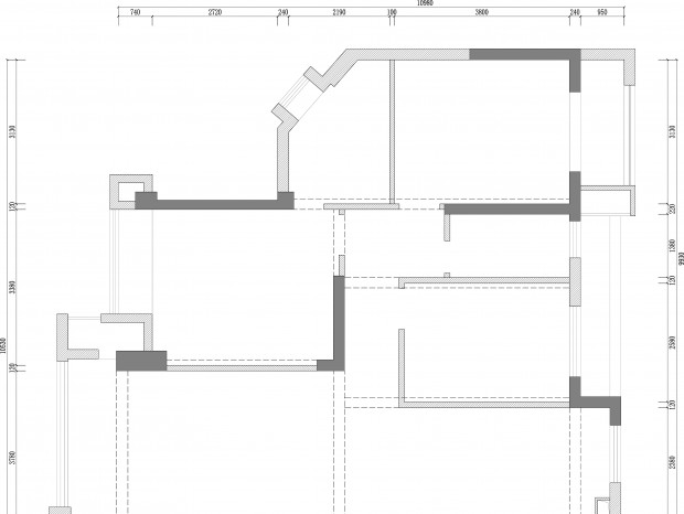
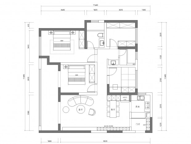
婚房 3房设计方案,请老师们指点,户型几处不合理处
帮朋友做的一个自建房户型优化!
設計徒 |学习交流群 欢迎設計人加入
方案户型讨论 求助优化
纠结的方案!总是觉得不好!
biao 记录365个户型优化案例分享 第五个 (每天更新)
次卧大家有没有什么好的想法呀。
。。。。
126平方户型
126方案户型
第一次发帖,求帮助进门玄关怎么办
实习设计师 普通户型请大师们指导一下错误
40个CAD施工图收口详图下载
试下能不能发图
求助各大神,帮分析下家里的户型
求助大神~~给点这个方案的意见~~
求大神给做个方案,轻奢!谢谢!本人做了一个方案,要求2-3房+书房+更衣室!
弹子石大型购物中心万象汇设计赏析
整理文件发现个去年做的公寓。。。。。
求大神赐教
我实在没办法了!
老房翻新,看各位有没有好的想法
小户型 大家帮我看看
【待完善】各位来指点规划一下这个户型,具体要求没有,自由发挥!
大家有没有好的思路
biao 记录365个户型优化案例分享 第四个 (每天更新)
欢迎设计师加入学习交流群
图画了一半了,剩下的应该怎么布局。
哲也 - 户型优化作品集07期(持续更新)
哪位能帮我规划下 感谢
户型优化记录第之--------------39个。
分享一套之前做过的户型优化
自己家,平米有点小,求大佬帮忙布局下客餐厅
大家能帮我看看这个墙能拆吗
加急!一个三房旧房改造!大神们帮帮忙!
墨咖方案优化——(老杨 )2019.5.15
分享个之前做过的户型优化!
300款CAD天花吊顶图
在论坛上看的一个平面,修改了下,求拍砖
求大神帮忙看看还有没有其他方案 实在想不出来
biao 记录365个户型优化案例分享 第三个 (每天更新)
当方案变成了习作。。。
1991.艺墅 ▎“雅”舍—观澜半山
创建设计师交流学习群一起沟通学习
墨咖方案优化——(老杨 )2019.5.14
前面发错了,从新发一个
请教大佬帮改改,看怎么好用
有没有大神给点建议 方案优化下
手枪户型如何做干湿分离!!!
最新雅布图库内部流出,我也是花钱买的!还有动态图库!放几天就关贴啦!!!速度下载
求大神指点
求大神方案
请求各位大佬帮忙看看自己家吊顶怎么设计,跪谢
方案求助,各位大神,这个顶面如何设计
4房轻奢方案布局,求大神指教优化建议
轻奢户型方案布局,想的脑壳痛
biao 记录365个户型优化案例分享 第二个 (每天更新)
现代简约方案变动
这个户型要做现代简约,哪位大神支招
久度设计|深圳安吉尔大厦
久度设计|深圳皇庭中心
求改方案
手枪户型!急需大神指导
自己的房子求大佬大神女神暴躁狂改
biao 记录365个户型优化案例分享 第一个 (每天更新)
求大师帮忙爆改
哪位大侠帮忙指点
求大师户型优化+设计!
各位平时布置平面有什么技巧和方法可以沟通一下
有空的都来看看 ,户型优化
户型优化,大神出手!!!天下你有!!求解
农村两层自建楼,这样的画法、布局对吗?
刚自学cad,望各位大神指点
各位大神 救命啊
求指教
求助,赏金100!!!布置一下公共卫生间,求大神帮忙随便画一画
户型优化交流群 群求助速稿优化分享案例
406158
工作日:早9点--晚5点
客服QQ微信:406158
关注拓者设计吧让设计更有范