首页推荐
编辑精选
评论最多
查看最多
小户型改动 厨房部分墙砸出去 右侧墙一字型橱柜 左侧想做柜子 外加一个餐桌
小弟在此谢过,布局好难,求各位大哥指点指点
要买房子了,求各位设计大咖指点优化下户型,看值不值得买
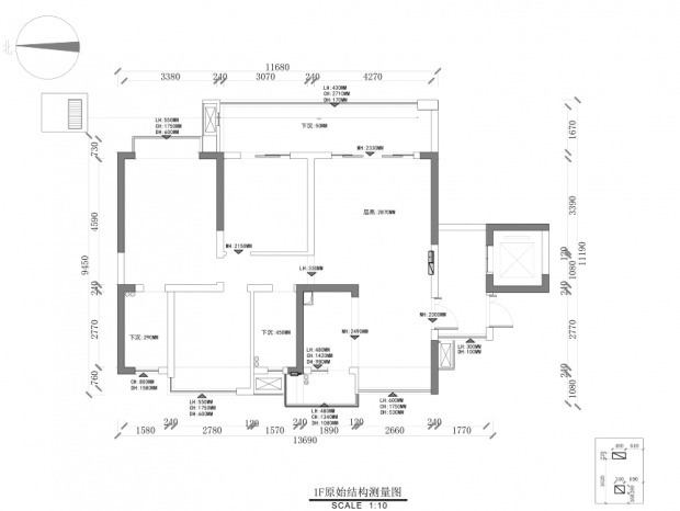
大户小厨无门厅,求解!!!!
没思绪了,求大神指点
进入建材城,体味百态人生|情景设计法16期
1991.艺墅 ▎一条街 一座城 | 我们在网红街等你
请大家帮忙优化一下入户及餐厅
方案交流
很标准的户型,怎样才能有更好的方案?
舒适性住房,一家六口,夫妻,老人,一对双胞胎小孩。男女主人开美容机构,日式风格
小弟不才,求大神帮忙,给点灵感!
求大神优化方案!!!
寻求站内大咖天马行空,各抒己见. 突破常规
请问这个波光粼粼的顶面是什么材料?
板绘10
求主卧衣柜的布置规划
求高手帮忙优化优化,相互学习。
求个与众不同的方案
互相学习一下
急急急!联排别墅,征求方案,有兴趣联系线下号码15157779030.(价格线下谈)
南宁文旅城市综合体融晟天河海悦城设计亮点赏析
大家好魔鬼我又来了
方案优化
有没有大神帮忙看看到底2楼主卧应该怎么布置一下才好,改了半天也没啥好的思绪
刚处于学习阶段,请各位老师优化一下
看抖音学家具单体手绘
做的方案,求各位老师指点
板绘9
一个办公场所
墨咖方案随改——2019.8.12
自己家现有户型,想改造成三房两厅居室
求大神帮忙出一下平面方案
自建房求大神们帮忙提下建议鸭!
户型交流
户型方案练习
一个正方形客餐厅的户型,右上角做开放式书房 其余空间随意布置 主要解决客餐厅布...
主卧要有浴缸 最少保留三房
请大神看看这栋别墅的一楼,沙发和餐桌客户都已经买好了。
额,大佬看看吧。
墨咖方案随改——2019.8.11
求各设计师精英朋友们给出宝贵的设计建议、思路
方案不是特别满意,想请大神帮忙优化下,学习下
感觉自己做的不好,求大神优化指导,个为大神给个回复吧。在线急等
求大神优化下平面方案,
求思路
求大神优化下,画圆圈的地方真的想不出来怎么规划。
求大神深化下方案,感激不敬!
阜阳和华海悦城:独特且个性的海洋主题生活中心
布了几版方案,都不是太满意,望各位有什么好的想法不吝赐教,多多交流,不胜感激!
自建房 要求是 一个卧室 一个客厅 餐厅 厨房 一个公卫 客厅要求要大气 有大神优化下吗
这个复式楼户型优缺点是啥怎么布局请大神们多看看
这个怎么改,大佬们。。。。
各位大神帮忙优化一下
設計徒 |学习交流群 方案交流 8
大家互相交流一下
墨咖方案随改(一个拍摄场景的自述)-2019.8.9
广州愚公神算VI设计案例
颂餐厅- 风雅之颂
求大神教教我吧,问了好多人都不肯帮忙。。大家帮帮我吧,感激不尽
求大神帮忙布置一下
尺寸十分尴尬的户型,求大神指点一下。
求大神们帮忙优化一下平面方案,不胜感激。
久度设计|广东茂名营销中心
希望有大神指点迷津,在下不胜感激!
别墅设计,如何把室内与室外连贯成一体?|情景设计法12期
记录365个户型优化案例分享 第26个(持续更新)
求个平面方案。4个卧室 合理的利用空间
我孤独啊!一个人的时候孤独啊
各位路过的大佬指点一下,想不出来了
墨咖方案随改-2019.8.8
DY-H|T宅
大神帮帮忙,小弟感激不尽
如何思考别墅设计中最易被人忽略的平衡美?|情景设计法11期
希望各位大神不吝赐教!在下的方案请多多指点,想学习一下大佬们的构思,拜谢!
客户总是不满意,一个自助快餐店的设计,请各位大设计大咖指教指教!
交流一下
求救,求大神帮忙优化,打赏260金币,回帖有奖
大佬们来看看吧!求帮忙优化下户型!回帖有奖励!
406158
工作日:早9点--晚5点
客服QQ微信:406158
关注拓者设计吧让设计更有范