首页推荐
编辑精选
评论最多
查看最多
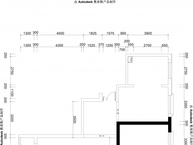
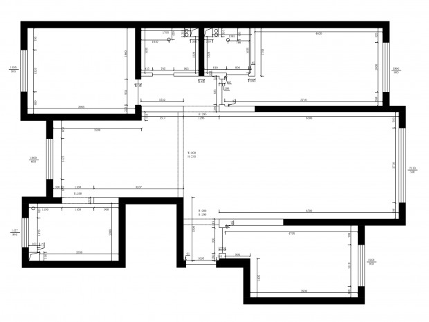
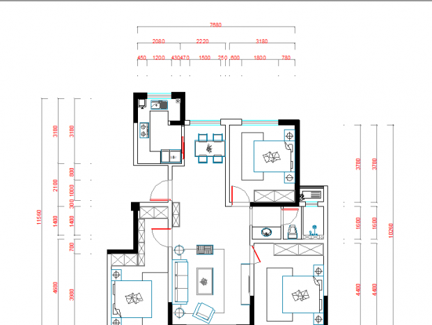
【哲也 - 户型优化作品集 19 期】
求大神优化
一个办公室方案,求大神指点指点
太难了,救救孩子吧
一个人住 准备两三年后结婚也能当新房 希望装的简约也温馨 大神们看看给点意见 谢谢啦
求大神帮忙看一下这个方案有什么可以优化的地方吗?
手绘8
奇葩户型,求各路大神指教、学习!
各位大神,帮看看一个套房的方案,给些建议。
“有温度的雅奢范儿”
思舍全案 |缦沙半岛
客餐厅厨房的关系不知道怎么处理最合理
如何能支取源源不断的设计力量与灵感|情景设计法10期
90平米学区房 各位大神帮忙看看
求大神指点客餐厅怎么规划
复式专题
改成三室一厅
帮优化下方案,探讨,不胜感激!
板绘7
大佬们 看看这个户型怎么改。。。。。
各位大神,帮看看一个办公空间的方案,给些建议。
请求大神指导!急,急 ,急。
正在纠结买哪个户型,烦请各位大神帮忙看看。
看看年薪10万以上的高级设计师如何做设计的
各位大咖 这种平面方案怎么做出来的 我们做的都是CAD的样子
油某人方案历程记录
小户型,方案没有设计感.求指点~不知道说什么才能让你们引起共鸣,既然如此。你过来呀
求大神们指点一下方案,想学习学习各位大佬们的优秀构思
缺角户型,大神看过来
各位前辈 麻烦指导个案子
求大神指导!!!!!!!
求大神神来之笔
设计师如何“说”设计?|情景设计法08期
设计师的朋友给帮帮忙,临沂的户型
各位亲友请支招(厨房太小想大一点有什么颗实施的方案)
帮姐姐做了个方案,请各位大佬优化
久度设计|中山大信海岸花园营销中心
求大神帮忙划分下功能分区
有点想象不出来客餐厅效果是什么样的 哪位大佬能提供一点效果图思路
求大神指教办公室布局,金币感谢!
有没有还在加班的大神,这个方案比较棘手,求大神排忧解难
请各位大佬指导一下 主卧室要卫生间和衣帽间,最好能有一个入户玄关
60㎡小户型爆改三室 请大神帮个忙
各位大神帮忙看看还有什么更好的方案
求大神指导下布局方案,北欧风格
求大神指点
设计师的家你们认为该如何表现
老师们帮我看看吧
记录365个户型优化案例分享 第24-25个(持续更新)
求大神指点怎么改,因为还不懂怎么上传CAD文件就只能截图形式发上来了
求大佬帮分析一下,保留三房183平
有没有大神看下这个方案 怎么改
寻求大神改造方案
求大神们指点一下方案,想学习学习各位大佬们的优秀构思。
大家给指点一下平面方案
求助一下各位大神,帮忙看下门窗展厅咋弄,要有一个阳光房用来会客.
有大佬 有神来之笔嘛
偏向现代 风格 更加注重享受品质 设计不是一成不变的 有的地方还需调整 看不懂吧...
可变性很多,主要想做感觉,储物没有做太多,随便勾了一下
业主不接受开放式厨房,我也不知道咋办了,餐厅太小,动线不好
中介的一个小店铺,要求有办公区和客户洽谈区。空间太小不知如何规划,求大神指引!
求大神指点一下,如何分出四房,求指导
户型方案练习
请各位大佬们帮忙看看
求大神帮忙修改下户型方案
求助帮忙优化下一楼就好了。!!!脑子不好用了
求指教
求大神给点灵感
户型交流
户型方案优化
思舍全案 |晓港名城
求大神改一哈,拜托
板绘6
思舍全案 |别致的现代
重拾东方音乐记忆——成都TEMPO音乐会所空间设计
思舍全案 | 醉美的相遇
求大神优化一下啊
思舍全案 | 繁华下的寂静
求大神帮忙优化红色圈内的方案把自己给难住了
406158
工作日:早9点--晚5点
客服QQ微信:406158
关注拓者设计吧让设计更有范