首页推荐
编辑精选
评论最多
查看最多
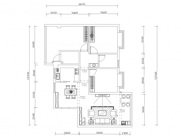
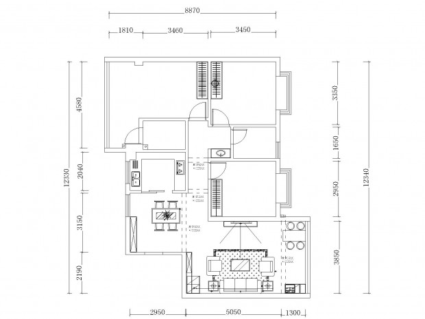
户型正规,需求有点特殊,来大神交流
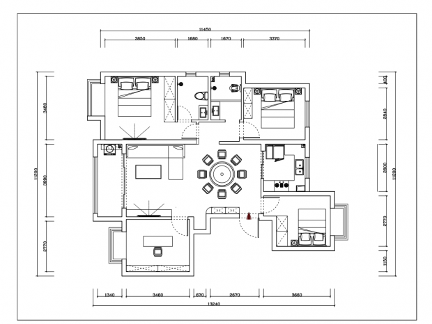
400平方奇葩户型求优化!!
[上海]梁志天—上海东方曼哈顿东地块2号施工图+物料书+实景摄影
自己家 求大神优化
家里房子要装修了。求大佬帮忙规划下,万分感谢了
求大神指点
烦请给为大师指点迷津
请大家看看这个户型,我感觉布局的不合理.
求大佬给给方案!已经困扰了好久了。要求得话就三室一厅。
方案求助 三房间改四房间 能更加舒服
各位大神帮忙指点一下
各路神仙给小白指点指点
复式公寓方案,希望给点建议,谢谢。
各位大佬帮帮忙,【轻奢新中式】,跪求广大大佬意见!!!
求大佬闪现回城,我在泉水等你1
跪求大佬救命
大神指点下有什么新颖想法
求助
学渣求大神优化一下,感激不尽 !业主要求:神台位置不得改变 床头方向位置统一不变
请大神 赐教 户型奇特........
求各位前辈帮忙给一点意见
求各位大神给个布局,卫生间只要一个,3个卧室1个书房,餐厅放中间,谢谢
求大神指点。310平米大平层~布置了一套感觉不尽人意
板绘2
求大神给点意见,新手小白不会布局
各位大佬,求给建议
户型方案优化,一个让人头疼的方案。看各位有没有更好的,。
做了两个方案都不太满意!求高手指点!!!
求大神帮帮忙呀!做个平面方案!感激不尽!!
急需优化大神.回帖有奖励。
四房改五房
路过的大佬帮忙看一下,提一些宝贵的意见!谢谢了!
122平简约平层方案求优化
要三个房间,一个老人,两个小孩,一对夫妻,五口人住,不考虑承重墙,
各位大神们,帮忙看下这个户型如何改动比较好,客餐厅厨房位置是一个痛点,客厅太...
跪求各位大神帮忙!
大神看下怎么优化。家里房子
求助大神 两套房改一套房,脑壳痛!!!
请各位大神帮帮忙小妹,实在头疼,冰箱实在没地方了 ,带阳台的卧室太奇怪
拓者上找的图 做了几个望指正
求各位大神帮忙看看!怎么做方案
户型优化
一起讨论一下吧
設計徒 |学习交流群 方案交流 6
户型优化,大神门有什么想法吗? 回帖有奖励。
户外景观壁炉
方案优化
【哲也 - 户型优化作品集 16 期】
大家帮忙看看还有什么方案布置 自己也做了几个 想不出来了
业主想要改成三房间,自己没点头绪!来求助大家了。
SKB设计手绘交流平台第七期平面优化比赛火热进行中!
平面方案优化 | 彩屏表现3期
小小的家!求各位大神赐教帮忙!
初学者请各位大神指点一下
户型交流一下
【上瑞元筑】无锡湖滨商业街椒艳干锅料理|效果图+施工图+物料|390M
看温州立体城购物中心如何打造江景体验式购物中心设计
求大神帮忙给治一下,一个小的茶室交流相亲性质的
户型交流 思维碰撞 互相学习
求各位大神帮忙给一个创新思路,简单更改一个户型
户型交流
优化高手在哪里?举起你的双手让我看到!
向各位设计大师请教这个户型方案怎么改?
记录个人户型优化案例分享
这个方案做完怎么看都觉得怪,有没有大神帮我看看怎么改合适
异性工装量了房以后怎么花在电脑上求大神讲个好方法
求大神给优化一下户型,不甚感激
求大神帮助 不胜感激
求大神优化一下平面方案,不胜感激。悬赏100金币
求大家指点 感觉自己思维太死
45平方旧房改造 -成都龙瑞苑
第一次做没什么头绪求大神们指导指导1111
第一次做没什么头绪求大神们指导指导111
求大师指点
求大神给点思路(回帖66奖励)
求大神优化下户型
求大神指教,感激不尽,户型采购重金感谢!
406158
工作日:早9点--晚5点
客服QQ微信:406158
关注拓者设计吧让设计更有范