首页推荐
编辑精选
评论最多
查看最多
记录365个户型优化案例分享 第21个(持续更新)
总感觉不是很理想,望大神们指点迷津。
1991.艺墅 ▎沉淀 时光
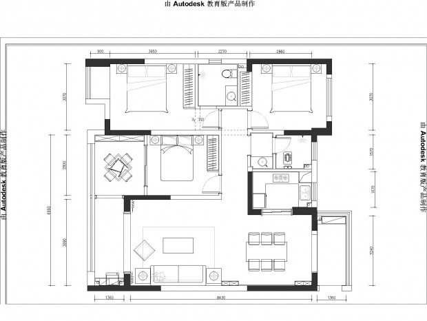
业主只撂了二个字(有钱)有点慌么有思路了,要求3卧室1书房现代感强,大神指点
户型方案交流
【户型优化,求各位大神支招,总感觉客餐厅别扭。】
自已家,客餐厨求个亮点改动
求大神帮忙想一个方案
求大神出方案
求大神们给点意见 回帖有奖励 帮忙优化一下
刚开始布方案,自己布了一个,给点意见,不考虑承重
求大神门优化一下平面方案~
求大神们帮我优化一下方案~
求大手看下客餐厅如何优化 卧室格局业主已定 厨房已定 餐厅如何
拓者的前辈们帮下忙,优化下,小弟刚踏入这个行业
户型优化 采取方案赠送1888金币
求大神们优化一下方案 谢谢
求各位大神优化一下,谢谢各位大神了,抱拳了。。。
求大神优化一下平面方案,不胜感激。
一套老房子一对新婚小夫妻从事平面设计,婚庆策划工作!
各位大神给点建议
方案做了,客户还是不满意,求大神帮忙优化
大佬们好,我又来了,这是今天份的神奇户型.有币
异性房,做了平面布置但是客餐厅有根竖梁无法解决,请大神帮忙设计吊顶。
本人不是专业人员,按照自己的观点设计了一下,求大佬帮忙看看,改进一下,求指点!
求大神不吝赐教
复试方案,求大神指点,一经采用,必重谢
我出了一种方案,不是很满意,请大神指点。谢谢
急求大神指点平面优化
各位前辈,帮下小弟。一点头绪头没有
拓者老师大神们看下给些修改意见,十分感谢
金币求个高手优化。一个比较棘手户型 的客厅和卧室。求大神们给优化下 奖励100金币
做了两个平面,请求各位师傅点评,赐教
平面优化 求大神指点
老房改造40平方,希望各位大神指点,感激不尽
老师交了个户型规划作业,请各位前辈指导一下思路
对于入门一边有墙的房子不是很感冒
求大神指导,不胜感激
改造不限
请大神指点一二,白色墙体为承重墙
讨论交流
讨论交流。。
优化的一个酒店房间展厅
求大神帮忙深化下方案,不胜感激!
求大神帮忙再次深化一下方案
跪求优化方案
求大神户型优化一下小弟万分感谢
户型完善
面积40平方,北欧风,多一些暗藏空间收纳
小户型,怀旧风,回忆往事
请求大神指导思路,现在一塌糊涂~~~~
求大神指点一下思路
记录个人户型优化案例分享
刚需房,小两口住。男主人房地产工作,女主人独立开店。想需求温馨浪漫氛围
求大神指点
自己布好客户感觉不是特别满意 有没有大神指教一下 万分感谢
求优化大神们,谢谢了
户型交流
跪请大佬们帮忙看看能否优化!
求大神支支招,回帖有金币
神奇的户型。大佬们有优化空间没
110方经济型小户型设计
讨论户型优化,大家讨论下这个户型还能怎么优化呀
求大神支招
方案修了又改 ,总是不满意,求大神指点
前辈们请指教下如何优化,谢谢谢谢
记录365个户型优化案例分享 第20个(持续更新)
求安排
欢迎大咖优化一下户型方案
河风幸会日料餐厅空间设计
新手入门方案,还希望各位大神指点,谢谢
自己的房子,自己做到一脸懵圈。希望大神帮忙改造下户型!
求大神帮我看看怎么改三室,好头疼
探讨一下更好的布局方案
求大神指点一下我排的方案 , 感激不尽
老房改造,大神们这个小户型怎么设计?
一房小户型怎么改两房
自己家的户型,求大神修改下,不胜感激~~~
406158
工作日:早9点--晚5点
客服QQ微信:406158
关注拓者设计吧让设计更有范