首页推荐
编辑精选
评论最多
查看最多
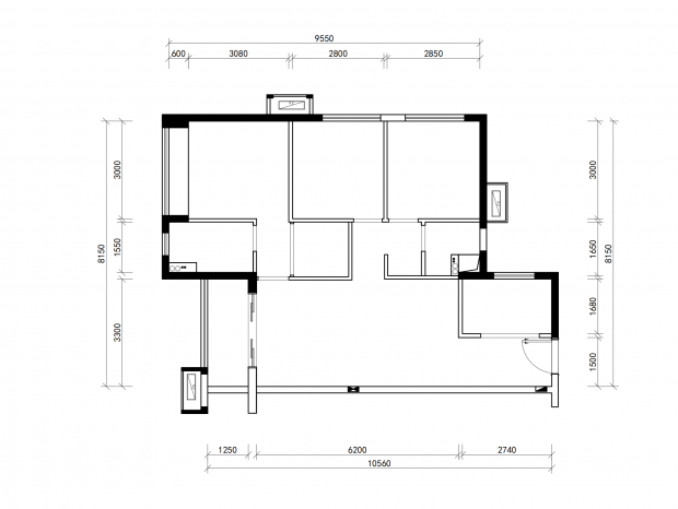
两户打通求大神指点方案
服装办公室,有效回帖奖励10金币
半弧形户型。各位老师能不能帮忙看下~
复式 顶层 请大神指导下 有没有更好的方案
拜求大神指导户型方案设计!比较急!急!急!!!回帖奖励金币
加油
求大神优化一下平面方案,不胜感激
刚入门求老师们指教,谢谢
感觉有瑕疵,但是没有思路了。。
求大神指导优化户型
求大神过来瞅瞅,帮个忙看看这个怎么改动
请问各位 这个户型怎么改 四室啊, 这么多承重墙。
请大神帮忙优化一下,我自己做了一个,业主不满意
一个工装,项目面积330平米。业主对空间就是少硬装,多用软装来搭配。
求大神指点
觉得自己布置的方案比较中规中矩没有新意,求大神方案优化
各位大神,看一下这个户型,需要一个佛堂 一个衣帽间 可以的话要2个卫生间
求助方案,脑子炸了
求大神指点一下,蓝色改为餐厅和厨房,黄色改为书房
求方案
记录365个户型优化案例分享 第23个(持续更新)
求大神给点建议
都市新生活 — 现代简约酒店式公寓设计解析
公园一号,户型讨论谢谢
三视角情景设计法|私宅空间布局,我们是这样思考的
求大神优化下,感觉入户有点浪费,谢谢
求大神指导方案,可塑性很大。
有大神指点下吗 小弟先谢谢了
設計徒 |学习交流群 方案交流 5
一套洋房,年轻夫妇,画着总感觉不对,求各位大神帮助
004
不做彩图,只做设计!
大家帮我看看这个方案还能怎么优化一下
方案户型分享1
求大神给个平方方案或者建议
大神~来个神来之笔
求大神指点,开放厨房,主卧和北次卧做套房
求大神优化一下这个方案,感谢,感谢,感谢
新手求各位大神指点,客户要求三室,入户有点浪费空间,求指点
记录个人户型优化案例分享
003
商业空间玻璃雨棚立面施工图(不喜勿喷,喜欢自取)
大神们看怎么样在优化一下我感觉太过平庸了
大神们帮忙看一下这个户型怎么改进啊 刚学习两个月的设计助理自己画着玩的
求大神指导优化户型方案,太难搞了
第一次做工装,完全不知如何下手。大神救救我!
求大神,帮忙优化下loft公寓方案,层高较矮 粱位神奇
没有要求,想看一下各位大神的平面方案布置图
陆续更新手绘板方案设想
求大神 相互探讨一下这个方案,
一个日常户型练习,大家有空的话提提意见
急急急,顶层旧房改造,一层已标承重墙,二楼格局不变,求大神设计指点!!
奇葩户型 各位大师指点
方案
急急急,顶层旧房改造,一层已标承重墙,二楼格局不变,求大神设计指点!!!
急急急,旧改,一层已标承重墙,二楼格局不变,求大神设计指点!!!
请求大神帮帮忙完全没思路
边套复式公寓,拐角较多,求大神帮看一下。
1111
一小时手绘是怎么做到的?
请求大神爆改一下,水平有限,实在没办法了,客户急要,感谢感谢
002
求大神帮忙优化下方案,急急急
哲也 - 户型优化作品集15期(持续更新)
江湖急救!路过的大神请指点一二,在下不胜感激
希望您们帮忙看看有没有更好的办法
求各位大神优化一个平面方案,不胜感激
平面
求助大神帮忙看看这个户型怎么布局比较合适
请各位指点一下 现代轻奢风格 要求餐厅厨房整体有个性 有吧台 预算五六十万
三房3卫户型,一个客房,需要一个衣帽间
求助大神,帮忙看看这个户型的平面怎么排?给个意见,谢谢
各位大佬,求助
求大神帮忙优化,loft
406158
工作日:早9点--晚5点
客服QQ微信:406158
关注拓者设计吧让设计更有范